AuFeld Homes Stammersdorf - Objektnr. 5656561
ECKDATEN
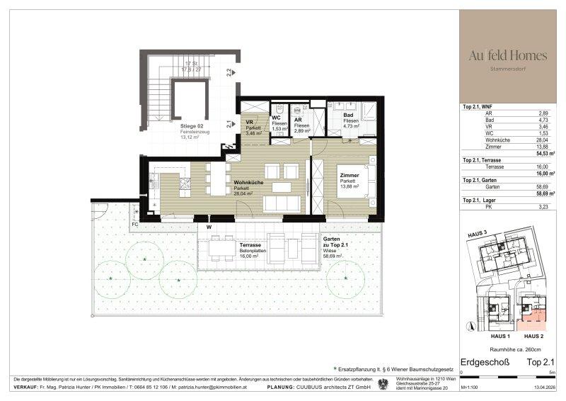
BESCHREIBUNG
KONTAKT
Lasse dich kostenlos vom Anbieter dieser Immobilie zurückrufen.
P.Kornherr Immobilien GmbH
Patrizia Hunter-Kornherr
Patrizia Hunter-Kornherr
Telefonnummer anzeigen
Handy Bearbeiter: +436648512133
Bitte dem Makler die FindMyHome.at - ID bekanntgeben: 5656561
Bitte dem Makler die FindMyHome.at - ID bekanntgeben: 5656561
BEWERTUNGEN DIESES ANBIETERS
BESONDERS
FREUNDLICH
FREUNDLICH
FINDMYHOME.AT
NETIQUETTE
NETIQUETTE
Auch du kannst bewerten! 7 Tage nach deiner Anfrage erhältst du dafür von uns ein Bewertungsmail.
Alle Infos zu unseren Auszeichnungen und dem FINDMYHOME.AT Qualitätsprogramm findest du hier: Übersicht anzeigen
Alle Infos zu unseren Auszeichnungen und dem FINDMYHOME.AT Qualitätsprogramm findest du hier: Übersicht anzeigen
FINANZIERUNG
Du willst wissen, wie viel dein Umzug kosten wird?
Mach gleich den kostenlosen Preisvergleich und schau, welche seriösen Anbieter in deiner Region günstig deinen Umzug organisieren
ZUM UMZUGS-VERGLEICH


















