MEIN ERGEBNIS ANPASSEN

2 Zimmer-Altbauwohnung in gefragter Lage Nähe Augarten - Objektnr. 5653292

1200
Ort
62,69 m²
Fläche
2.0
Zimmer
WEITERE MEDIEN

Dokumente


ECKDATEN
FindMyHome.at // Externe Immobilien-ID5653292 // 93140
ImmobilienartWohnung - Eigentum
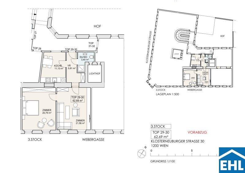
AnschriftWebergasse 19/29-30
1200 Wien
Baujahr1900
Befeuerung
Stock3
Fläche62,69 m²
Zimmer2.0
Bad1
WC1
Kaufpreis:€ 339.000,00
Ratenzahlung:Finanzierungsmöglichkeiten für diese Immobilie anzeigen
Provision: 3% des Kaufpreises zzgl. 20% USt.







BESCHREIBUNG

2 Zimmer-Altbauwohnung in gefragter Lage Nähe Augarten

2 Zimmer-Altbauwohnung mit separater Küche nahe Augarten

Zum Verkauf steht eine gepflegte 2-Zimmer-Wohnung in der 3. Etage eines Altbaus aus dem Jahr 1900. Die Liegenschaft befindet sich in der Webergasse 19, an der Ecke zur Klosterneuburger Straße 30, nur wenige Gehminuten vom beliebten Augarten entfernt. 

Die Wohnung selbst bietet eine praktische Raumaufteilung mit Vorraum, separater Küche, Wohnzimmer, einem Schlafzimmer sowie Badezimmer. Die beiden Zimmer sind mit jeweils etwa 20m² sehr großzügig geschnitten und bieten so viel Gestaltungsfreiraum.

Das Wohnhaus selbst präsentiert sich in einem gepflegten und kürzlich modernisierten Zustand. Der Eingangsbereich wurde stilvoll erneuert und mit einem digitalen schwarzen Brett ausgestattet. Gleichzeitig wurde großer Wert darauf gelegt, den authentischen Altbaucharme zu bewahren: Die originalen Mosaikfliesen, kunstvoll gearbeiteten Stiegenhausgeländer sowie die historischen Bassenas auf den Etagen sind noch erhalten und verleihen dem Haus besonderen Charakter.

Wir dürfen darauf hinweisen, dass das Haus derzeit über keinen Lift verfügt. Der Verkäufer verpflichtet sich jedoch vertraglich zur Errichtung eines Liftes bis spätestens 2028.

 

Die Lage & Infrastruktur

Die Wohnlage punktet durch eine ausgezeichnete Infrastruktur: Zahlreiche Einkaufsmöglichkeiten (Supermärkte, Bäckereien, Apotheken), Cafés und Restaurants befinden sich in unmittelbarer Umgebung. Die Klosterneuburger Straße verbindet urbanes Leben mit entspanntem Wohnen.

Öffentliche Verkehrsmittel: 

  • U-Bahn: U4 Friedensbrücke (ca. 6 Gehminuten)

  • Straßenbahnlinien: 1, 2, 5, 31, 33, O

  • Bus: Linie 5B

Damit ist sowohl die Wiener Innenstadt als auch der Franz-Josefs-Bahnhof oder die U6-Station Jägerstraße schnell erreichbar.

Der Verkauf erfolgt mit einer Vermittlungsprovision in Höhe von 3 % des Kaufpreises.

Der Vermittler ist als Doppelmakler tätig.


Infrastruktur / Entfernungen

Gesundheit
Arzt <150m
Apotheke <225m
Klinik <825m
Krankenhaus <1.400m

Kinder & Schulen
Schule <225m
Kindergarten <75m
Universität <600m
Höhere Schule <775m

Nahversorgung
Supermarkt <50m
Bäckerei <75m
Einkaufszentrum <1.200m

Sonstige
Geldautomat <125m
Bank <125m
Post <300m
Polizei <500m

Verkehr
Bus <75m
U-Bahn <375m
Straßenbahn <75m
Bahnhof <375m
Autobahnanschluss <1.150m

Angaben Entfernung Luftlinie / Quelle: OpenStreetMap

Provision: 3% des Kaufpreises zzgl. 20% USt.


Alle Details anzeigen

KONTAKT






 

Lasse dich kostenlos vom Anbieter dieser Immobilie zurückrufen.







 


 
EHL Wohnen GmbH
Anna Gasienica-Fronek
Telefonnummer anzeigen Telefon Allgemein: +4315127690412
Handy Bearbeiter: +436645483323
 
Bitte dem Makler die FindMyHome.at - ID bekanntgeben: 5653292

Bewertungen dieses Anbieters
Qualitätsmakler
Qualitätsmakler:
Netiquette
Freundlichkeit
82 %

BEWERTUNGEN DIESES ANBIETERS

 
Qualitätsmakler
UNSERE HALL OF FAME DER BESTEN ANBIETER
Qualit�tsmakler
Qualitätsmakler
2012, 2013, 2014, 2015, 2016, 2017, 2018, 2019, 2020, 2021, 22/23, 2024, 2025, 2026
Weiterempfehlung
WIRD GERNE

Freundlichkeit
BESONDERS
FREUNDLICH
Netiquette
FINDMYHOME
NETIQUETTE
Auch du kannst bewerten! 7 Tage nach deiner Anfrage erhältst du dafür von uns ein Bewertungsmail.
Alle Infos zu unseren Auszeichnungen und dem FINDMYHOME.AT Qualitätsprogramm findest du hier: Übersicht anzeigen

FINANZIERUNG
?>

Du willst wissen, wie viel dein Umzug kosten wird?

Mach gleich den kostenlosen Preisvergleich und schau, welche seriösen Anbieter in deiner Region günstig deinen Umzug organisieren


ZUM UMZUGS-VERGLEICH
-->

MYHOME BLOG
SuchAgentin auf FindMyHome.at
Unterschiedlichen Rechtsthemen, köstliche Rezepte, neueste Design-Highlights, sowie aktuelle Technik-Tools für Ihr Eigenheim.


FINDMYHOME.AT SUCHAGENTIN
SuchAgentin auf FindMyHome.at
Hallo, soll ich dir ähnliche Immobilien kostenfrei per E-Mail schicken?


ÄHNLICHE IMMOBILIEN
Aehnliche Immobilie - Vorschaubild 1

Traisengasse 20-22 - Moderner Lebensraum mit Donaublick... - Objektnr. 5479537

52,34 m² - 2.0 Zimmer
311600 €
PLZ: 1200

Mehr anzeigen

Aehnliche Immobilie - Vorschaubild 2

*Sanierungsbedürftiger Familien- oder Pärchenhit in absolute... - Objektnr. 5649089

70,58 m² - 3.0 Zimmer
339900 €
PLZ: 1200

Mehr anzeigen

Aehnliche Immobilie - Vorschaubild 3

Sonniges Wohnen mit beeindruckendem Weitblick in der 13. Eta... - Objektnr. 5653160

64,46 m² - 2.0 Zimmer
299000 €
PLZ: 1200

Mehr anzeigen

Durch die Nutzung unserer Seite erklären Sie sich mit der Verwendung von Cookies zur Verbesserung Ihres Online-Erlebnisses einverstanden. Detaillierte Informationen zu diesem und weiteren Themen erhalten Sie in unserer Datenschutzerklärung.