MEIN ERGEBNIS ANPASSEN

Sonniges Wohnen mit beeindruckendem Weitblick in der 13. Etage! - Objektnr. 5653160


ökologisch beheizt
1200
Ort
64,46 m²
Fläche
2.0
Zimmer

ECKDATEN
FindMyHome.at // Externe Immobilien-ID5653160 // 95438
ImmobilienartWohnung - Eigentum
AnschriftForsthausgasse
1200 Wien
Befeuerung
Fernwärme
Stock13
Fläche64,46 m²
Zimmer2.0
Bad1
WC1
Kaufpreis:€ 299.000,00
Ratenzahlung:Finanzierungsmöglichkeiten für diese Immobilie anzeigen
Provision: 3% des Kaufpreises zzgl. 20% USt.







BESCHREIBUNG

Sonniges Wohnen mit beeindruckendem Weitblick in der 13. Etage!

Sonniges Wohnen mit beeindruckendem Weitblick in der 13. Etage!

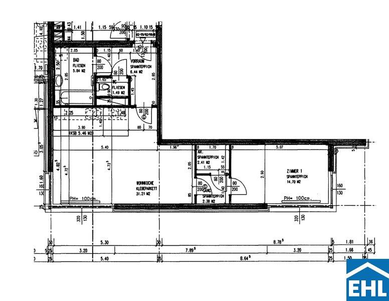
Hoch über den Dächern des 20. Wiener Gemeindebezirks eröffnet sich ein Wohngefühl, das von Licht, Weite und urbaner Lebensqualität geprägt ist. Diese attraktive 2-Zimmer-Wohnung in der 13. Etage eines modernen Wohnhauses bietet auf 64,46 m² Wohnfläche eine durchdachte Raumaufteilung, angenehmen Komfort und einen wundervollen Ausblick über die Stadt.

Die Wohnung überzeugt mit einer harmonischen Kombination aus eleganten Parkett- und Fliesenböden, die ein stilvolles und zugleich gemütliches Wohnambiente schaffen.

Das Herzstück bildet der großzügige und helle Wohnraum mit moderner Einbauküche und allen Geräten. Hier entstehen nicht nur kulinarische Momente, sondern auch ein zentraler Treffpunkt für Alltag und Entspannung. Große Fenster sorgen für viel Tageslicht und unterstreichen das helle, offene Wohngefühl.

Das Schlafzimmer bietet einen ruhigen Rückzugsort in der Wohnung und ist gut abgetrennt vom Wohnzimmer untergebracht.  Ergänzt wird die Wohnung durch ein modern renoviertes Badezimmer mit Dusche und Waschmaschinenanschluss, ein separates WC sowie einen praktischen Vorraum.

Ein besonderes Highlight ist der beeindruckende Weitblick aus der 13. Etage. Ob bei Sonnenaufgang oder abends bei Blick über die Lichter der Stadt diese Aussicht verleiht dem Zuhause eine besondere Atmosphäre.

Die Wohnung wird vollmöbliert verkauft. Küche und Badezimmer wurden kürzlich renoviert, sodass einem sofortigen Einzug nichts im Wege steht. Für das Badezimmer, die Küche sowie alle Möbel werden pauschal EUR 10.000,- zum Kaufpreis hinzugerechnet.

Für zusätzlichen Komfort sorgt ein Personenaufzug, der Sie bequem in die 13. Etage bringt. Ihr Fahrzeug findet Platz in der hauseigenen Garage, wodurch eine sichere und komfortable Parkmöglichkeit gewährleistet ist.

Beheizt wird die Wohnung mittels Fernwärme, die für effiziente und nachhaltige Wärme sorgt.

Diese Wohnung eignet sich ideal für Singles, Paare oder kleine Familien, die urbanes Wohnen mit viel Licht, Ausblick und ausgezeichneter Infrastruktur verbinden möchten.

Highlights auf einen Blick:

  • 2-Zimmer-Wohnung mit ca. 64,46 m²
  • 13. Etage mit beeindruckendem Weitblick
  • Helle Wohnküche mit moderner Einbauküche
  • Separat begehbares Schlafzimmer
  • Renoviertes Badezimmer mit Dusche und Waschmaschinenanschluss
  • Vollmöbliert
  • Lift im Haus
  • Garage im Haus

Lagebeschreibung:

Die Wohnung überzeugt durch eine sehr gute öffentliche Verkehrsanbindung. Die Straßenbahnlinien 2 und 31 sowie die Buslinien 5A und 11A (Station Friedrich-Engels-Platz) sind in etwa 5 Gehminuten erreichbar. Die U-Bahnlinie U6 (Station Jägerstraße bzw. Dresdner Straße) befindet sich rund 1012 Gehminuten entfernt und bietet schnelle Verbindungen zu wichtigen Knotenpunkten wie Spittelau oder Westbahnhof. Die Innenstadt (Stephansplatz) ist mit öffentlichen Verkehrsmitteln in etwa 2025 Minuten erreichbar, der Flughafen Wien-Schwechat liegt rund 2530 Minuten mit dem Auto entfernt. In der Umgebung finden sich zudem zahlreiche Freizeitmöglichkeiten, darunter die Donauinsel und die Donauufer-Radwege, die sich ideal für Sport und Erholung eignen. Für den täglichen Bedarf stehen Supermärkte, Bäckereien und Nahversorger in kurzer Gehdistanz zur Verfügung, während das Einkaufszentrum Millennium City nur wenige Minuten entfernt liegt. Ergänzt wird das Angebot durch eine Vielzahl an Restaurants, Cafés und traditionellen Wiener Gasthäusern in der näheren Umgebung.

Eine attraktive Gelegenheit für alle, die helles Wohnen mit Aussicht und urbanem Komfort verbinden möchten.

Wir weisen darauf hin, dass zwischen dem Vermittler und dem zu vermittelnden Dritten ein familiäres oder wirtschaftliches Naheverhältnis besteht.

Der Vermittler ist als Doppelmakler tätig.


Infrastruktur / Entfernungen

Gesundheit
Arzt <250m
Apotheke <250m
Klinik <1.000m
Krankenhaus <1.250m

Kinder & Schulen
Schule <500m
Kindergarten <250m
Universität <500m
Höhere Schule <1.000m

Nahversorgung
Supermarkt <250m
Bäckerei <250m
Einkaufszentrum <1.000m

Sonstige
Geldautomat <500m
Bank <500m
Post <1.000m
Polizei <750m

Verkehr
Bus <250m
U-Bahn <750m
Straßenbahn <750m
Bahnhof <750m
Autobahnanschluss <500m

Angaben Entfernung Luftlinie / Quelle: OpenStreetMap

Provision: 3% des Kaufpreises zzgl. 20% USt.


Alle Details anzeigen

KONTAKT






 

Lasse dich kostenlos vom Anbieter dieser Immobilie zurückrufen.







 


 
EHL Wohnen GmbH
Ingrid Neugebauer
Telefonnummer anzeigen Telefon Allgemein: +4315127690418
Handy Bearbeiter: +4369915212532
 
Bitte dem Makler die FindMyHome.at - ID bekanntgeben: 5653160

Bewertungen dieses Anbieters
Qualitätsmakler
Qualitätsmakler:
Netiquette
Freundlichkeit
82 %

BEWERTUNGEN DIESES ANBIETERS

 
Qualitätsmakler
UNSERE HALL OF FAME DER BESTEN ANBIETER
Qualit�tsmakler
Qualitätsmakler
2012, 2013, 2014, 2015, 2016, 2017, 2018, 2019, 2020, 2021, 22/23, 2024, 2025, 2026
Weiterempfehlung
WIRD GERNE

Freundlichkeit
BESONDERS
FREUNDLICH
Netiquette
FINDMYHOME
NETIQUETTE
Auch du kannst bewerten! 7 Tage nach deiner Anfrage erhältst du dafür von uns ein Bewertungsmail.
Alle Infos zu unseren Auszeichnungen und dem FINDMYHOME.AT Qualitätsprogramm findest du hier: Übersicht anzeigen

FINANZIERUNG
?>

Du willst wissen, wie viel dein Umzug kosten wird?

Mach gleich den kostenlosen Preisvergleich und schau, welche seriösen Anbieter in deiner Region günstig deinen Umzug organisieren


ZUM UMZUGS-VERGLEICH
-->

MYHOME BLOG
SuchAgentin auf FindMyHome.at
Unterschiedlichen Rechtsthemen, köstliche Rezepte, neueste Design-Highlights, sowie aktuelle Technik-Tools für Ihr Eigenheim.


FINDMYHOME.AT SUCHAGENTIN
SuchAgentin auf FindMyHome.at
Hallo, soll ich dir ähnliche Immobilien kostenfrei per E-Mail schicken?


ÄHNLICHE IMMOBILIEN
Aehnliche Immobilie - Vorschaubild 1

**Hannovermarkt** Sanierungsbedürftige 3-Zimmer Altbauwohnun... - Objektnr. 5640078

68,88 m² - 3.0 Zimmer
263500 €
PLZ: 1200

Mehr anzeigen

Aehnliche Immobilie - Vorschaubild 2

Traisengasse 20-22 - Moderner Lebensraum mit Donaublick... - Objektnr. 5477819

52,93 m² - 2.0 Zimmer
331200 €
PLZ: 1200

Mehr anzeigen

Aehnliche Immobilie - Vorschaubild 3

Charmante Altbauwohnung mit Potenzial in zentraler Lage... - Objektnr. 5374374

61,78 m² - 2 Zimmer
249000 €
PLZ: 1200

Mehr anzeigen

Durch die Nutzung unserer Seite erklären Sie sich mit der Verwendung von Cookies zur Verbesserung Ihres Online-Erlebnisses einverstanden. Detaillierte Informationen zu diesem und weiteren Themen erhalten Sie in unserer Datenschutzerklärung.