MEIN ERGEBNIS ANPASSEN

möblierte Neubauwohnung - schnelle Verbindung ins Zentrum - Objektnr. 5632652

1180
Ort
€ 1.522,03
Gesamtkosten
76,41 m²
Fläche
3.0
Zimmer

ECKDATEN
FindMyHome.at // Externe Immobilien-ID5632652 // 1096/20062
ImmobilienartWohnung - Miete
Anschrift1180 Wien
Baujahr1970
Mietdauer3
Fläche76,41 m²
Zimmer3.0
Bad1
WC1
Brutto-Miete:€ 1.522,03
Betriebskosten (inkl. MwSt):€ 142,03
Mehrwertsteuer:€ 12,91
Monatliche Gesamtkosten:€ 1.522,03
Provision: Gemäß Erstauftraggeberprinzip bezahlt der Abgeber die Provision.




BESCHREIBUNG

möblierte Neubauwohnung - schnelle Verbindung ins Zentrum

möblierte Neubauwohnung nahe dem Gersthofer Platz

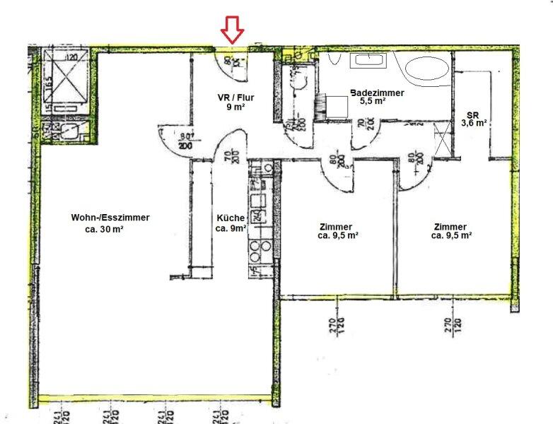
RAUMAUFTEILUNG

  • Vorraum, großes Wohn-Esszimmer mit Arbeitsplatz
  • 2 Schlafzimmer (1 Schlafzimmer mit Schrankraum)
  • voll ausgestattete neue Küche
  • Badezimmer mit Wanne und Bidet
  • extra Toilette mit Handwaschbecken


AUSSTATTUNG

  • Laminat, Fliesen
  • Waschmaschine
  • ausziehbares Schlafsofa
  • moderne Deckenleuchten
  • zentral begehbar
  • Kellerabteil, Lift
  • + Heizung und Warmwasser monatlich ca. € 151,00  (inkl. jeweiliger Mwst.)



Supermärkte, Gersthofer Markt, Apotheke, Putzerei, etc.
sehr gute Infrastruktur mit schneller Verbindung ins Zentrum
Straßenbahn 9, 40, 41, Schnellbahn S 45 und Autobus 10 A, N 41 in unmittelbarer Nähe


furnished Apartment in Gersthof

LAYOUT

  • hall, living-dining room
  • 2 bedrooms (1 bedroom with walk in wardrobe),
  • fully equipped kitchen
  • bathroom with tub and bidet
  • seperate toilet with hand basin


FITTINGS AND FIXTURES

  • laminated and  tiled flooring
  • storage room in basement
  • elevator
  • + heating and hot water € 150,35 (monthly downpayment-not included in rent)


very good infrastructure to the city center
Tram 9, 40, 41, S45 and bus 10A, N41 in the immediate vicinity

Noch nichts gefunden Wir informieren Sie über geeignete Immobilienangebote noch vor allen anderen.
Legen Sie jetzt Ihren individuellen Suchagenten unter folgendem Link an. Wir schicken Ihnen passende Immobilien exklusiv vorab zu.
Suchagent anlegen - https://realkanzlei-hildegard-mayerl-eva-krulis.service.immo/registrieren/de

Wir weisen darauf hin, dass zwischen dem Vermittler und dem zu vermittelnden Dritten ein familiäres oder wirtschaftliches Naheverhältnis besteht.

Der Immobilienmakler erklärt, dass er entgegen dem in der Immobilienwirtschaft üblichen Geschäftsgebrauch des Doppelmaklers einseitig nur für den Vermieter tätig ist.


Infrastruktur / Entfernungen

Gesundheit
Arzt <500m
Apotheke <500m
Klinik <1.000m
Krankenhaus <2.000m

Kinder & Schulen
Schule <500m
Kindergarten <500m
Universität <1.000m
Höhere Schule <500m

Nahversorgung
Supermarkt <500m
Bäckerei <500m
Einkaufszentrum <1.500m

Sonstige
Geldautomat <500m
Bank <500m
Post <500m
Polizei <1.000m

Verkehr
Bus <500m
U-Bahn <1.500m
Straßenbahn <500m
Bahnhof <500m
Autobahnanschluss <3.000m

Angaben Entfernung Luftlinie / Quelle: OpenStreetMap

Provision: Gemäß Erstauftraggeberprinzip bezahlt der Abgeber die Provision.


Alle Details anzeigen

KONTAKT






 

Lasse dich kostenlos vom Anbieter dieser Immobilie zurückrufen.







 


 
MAYERL IMMOBILIEN
Petra Maly
Telefonnummer anzeigen Telefon Allgemein: +431479411715
 
Bitte dem Makler die FindMyHome.at - ID bekanntgeben: 5632652

Bewertungen dieses Anbieters
Netiquette
Freundlichkeit
Antwortszeit
100 %

BEWERTUNGEN DIESES ANBIETERS

 
Antwortzeit
ø 24h ANTWORT
Weiterempfehlung
WIRD SEHR GERNE

Freundlichkeit
BESONDERS
FREUNDLICH
Netiquette
FINDMYHOME
NETIQUETTE
Auch du kannst bewerten! 7 Tage nach deiner Anfrage erhältst du dafür von uns ein Bewertungsmail.
Alle Infos zu unseren Auszeichnungen und dem FINDMYHOME.AT Qualitätsprogramm findest du hier: Übersicht anzeigen


Du willst wissen, wie viel dein Umzug kosten wird?

Mach gleich den kostenlosen Preisvergleich und schau, welche seriösen Anbieter in deiner Region günstig deinen Umzug organisieren


ZUM UMZUGS-VERGLEICH
-->

MYHOME BLOG
SuchAgentin auf FindMyHome.at
Unterschiedlichen Rechtsthemen, köstliche Rezepte, neueste Design-Highlights, sowie aktuelle Technik-Tools für Ihr Eigenheim.


FINDMYHOME.AT SUCHAGENTIN
SuchAgentin auf FindMyHome.at
Hallo, soll ich dir ähnliche Immobilien kostenfrei per E-Mail schicken?


ÄHNLICHE IMMOBILIEN
Aehnliche Immobilie - Vorschaubild 1

Moderne 2-Zimmer-Wohnung in 1180 Wien - Top Lage, Garage & U... - Objektnr. 5617513

75,56 m² - 2.0 Zimmer
1450 €
PLZ: 1180

Mehr anzeigen

Aehnliche Immobilie - Vorschaubild 2

1180 Wien - 3 Zimmerwohnung - Objektnr. 5609541


75,00 m² - 3.0 Zimmer
1398 €
PLZ: 1180

Mehr anzeigen

Aehnliche Immobilie - Vorschaubild 3

Raumwunder am Türkenschanzpark - 3,5 Zimmer-Wohnung mit Balk... - Objektnr. 5604922

78,00 m² - 3.5 Zimmer
1600 €
PLZ: 1180

Mehr anzeigen

Durch die Nutzung unserer Seite erklären Sie sich mit der Verwendung von Cookies zur Verbesserung Ihres Online-Erlebnisses einverstanden. Detaillierte Informationen zu diesem und weiteren Themen erhalten Sie in unserer Datenschutzerklärung.