MEIN ERGEBNIS ANPASSEN

NEUER GRUNDRISS!! 4-Zimmer im Altbau-Erstbezug mit großer Loggia und feinster Qualität + Top Lage! - Objektnr. 5620508

1050
Ort
109,29 m²
Fläche
4.0
Zimmer

ECKDATEN
FindMyHome.at // Externe Immobilien-ID5620508 // 295022
ImmobilienartEigentum
AnschriftAm Hundsturm
1050 Wien
Baujahr1900
Stock1
Geschosse4
Fläche109,29 m²
Zimmer4.0
Bad1
WC2
 Abstellraum
Kaufpreis:€ 769.000,00
Ratenzahlung:Finanzierungsmöglichkeiten für diese Immobilie anzeigen
Provision: 3% des KP zzgl. 20% Ust.







BESCHREIBUNG

NEUER GRUNDRISS!! 4-Zimmer im Altbau-Erstbezug mit großer Loggia und feinster Qualität + Top Lage!

Zuhause ist da, wo nicht nur der Schlüssel passt, sondern sich auch das Herz wohl fühlt

Werfen Sie einen Blick auf dieses wunderschöne Gründerzeithaus und Sie werden Augen machen.

In ruhiger Lage, unmittelbar beim Hundsturm Park gelegen, wird derzeit einem Stilaltbau neues Leben eingehaucht. Im Zuge der Sanierung werden im ersten Schritt 5 Altbauwohnungen rundum erneuert. Hierbei wird auf den Erhalt der Altbauelemente viel Wert gelegt. Angefangen von der gegliederten Fassade, welche sich stilvoll in die ruhige Wohnstraße einfügt, über den neu gestalteten Hauseingang mit Stuckverzierungen bis hin zum frisch sanierten Stiegenhaus mit Personenlift (erwartet in 2026) wird Sie diese Immobilie auf Anhieb überzeugen.

Bei der Gestaltung der einzelnen Wohnungen wurde auf eine intelligente und optimierte Raumgestaltung höchsten Wert gelegt, die sich sowohl für Familien als auch Paaren und Singles ideal anbieten. Hier ist für jede(n) etwas passendes dabei.

Die Wohnungen werden teils durch Freiflächen, welche in den Innenhof gerichtet sind, erweitert. Genießen Sie hier Ihr wohlverdientes Feierabendgetränk nach einem anstrengenden Arbeitstag. Auch die hochwertige Ausstattung überzeugt! Landhausdiele (oder wahlweise Fischgrätparkett) in Eiche, hohe Parkettleisten, geschmackvolle Fliesen sowie hochwertige Armaturen und Keramiken in Bad und WC, hohe Innentüren (2,10m bis 2,2m) in Weiß, bis hin zu neuen 3-fach verglaste Fenster, uvm. verleihen der Wohnung eine warme Atmosphäre. Raumhöhen bis zu vier Meter sorgen für ein angenehmes Wohngefühl!

Lassen Sie sich bereits jetzt schon von diesem großartigen Projekt mit viel Liebe zum Detail überzeugen und vereinbaren Sie noch heute Ihren persönlichen Besichtigungstermin! 

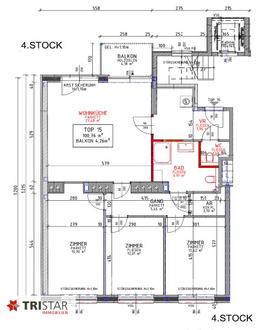
TOP 8 - Nord-Süd ausgerichtete 4-Zimmer-Wohnung mit Loggia im Innenhof

Diese Wohnung beeindruckt mit einem großzügigen Raumangebot. Viel Platz für gemütliche Abende mit Familie und Freunden finden Sie in dem ca. 37 Quadratmeter großen Wohn/Essbereich und der optimal integrierten Küche, die die Herzen von Hobbyköchen mit Sicherheit höher schlagen lässt. Drei wunderbar geschnittene Zimmer, die sich ideal als Schlafzimmer, Kinderzimmer oder Arbeitszimmer nutzen lassen, ein modern gestaltetes Badezimmer, eine Gästetoilette und ein praktischer Abstellraum ergänzen das Raumangebot dieser neu gestalteten Wohnung. Vom zentralen Kochbereich aus gelangen Sie auf die herrliche, ca. 12 Quadratmeter große und ruhige Loggia im Innenhof. Raus aus der Wohnung und direkt hinein in den wunderbar angelegten Hundsturm Park, mit seinen zahlreichen Bäumen und Grünflächen. So wohnt man gerne!

Hier gehts zur Projekt Webseite: www.ah11.at

Kaufpreis: EUR 769.000,-

Wir weisen darauf hin, dass es sich bei den Innenraum Fotos um Fotos von vergleichbaren Projekten des Bauträgers handelt. Aktuell wir gerade fleißig für Sie saniert. 

Nebenkosten: 

  • Provision: 3% des KP zzgl. 20% Ust.
  • Aktuelle Betriebskosten: ca. netto € 1,86/m².

 

Bei konkretem Interesse senden wir Ihnen sehr gerne weiterführende Dokumente zu, wie:

o Grundbuchauszug

o Wohnungseigentumsvertrag

o Nutzwertgutachten

o Eigentümerversammlungsprotokoll (Falls vorhanden) etc...

 

Unser Service für Sie: Wenn Sie sich für diese Immobilie entschieden haben, begleiten wir Sie gerne vom Kaufanbot weg inkl. Klärung von Sonderwünschen und der Vertragsunterzeichnung über die Wohnungsübergabe bis hin zu diversen Ummeldungen wie Strom und Gas. Entsprechende Formulare oder auch Meldezettel stellen wir Ihnen sehr gerne zur Verfügung.

Gerne unterstützen wir Sie auch bei der Finanzierung Ihres Traumobjekts und finden mit unseren langjährigen Partnern die besten Konditionen für Sie.

Vereinbaren Sie noch heute einen Termin, wir beraten Sie gerne!

Sie wollen Ihre Immobilie verkaufen Dann sind Sie bei uns goldrichtig! Gerne beraten wir Sie kostenlos bei der Bewertung Ihrer Immobilie und präsentieren Ihnen die dafür entscheidenden Informationen und Unterlagen unverbindlich. 

www.schantl-ith.at

Wir weisen darauf hin, dass zwischen dem Vermittler und dem zu vermittelnden Dritten ein familiäres oder wirtschaftliches Naheverhältnis besteht.

Der Vermittler ist als Doppelmakler tätig.


Infrastruktur / Entfernungen

Gesundheit
Arzt <250m
Apotheke <250m
Klinik <500m
Krankenhaus <750m

Kinder & Schulen
Schule <250m
Kindergarten <250m
Universität <1.000m
Höhere Schule <1.000m

Nahversorgung
Supermarkt <250m
Bäckerei <250m
Einkaufszentrum <1.250m

Sonstige
Geldautomat <250m
Bank <250m
Post <250m
Polizei <750m

Verkehr
Bus <250m
U-Bahn <250m
Straßenbahn <500m
Bahnhof <500m
Autobahnanschluss <4.000m

Angaben Entfernung Luftlinie / Quelle: OpenStreetMap

Objekt ist für eine Wohngemeinschaft geeignet
Kabel/SAT/TV: JA
Provision: 3% des Kaufpreises zzgl. 20% USt.


Alle Details anzeigen

KONTAKT






 

Lasse dich kostenlos vom Anbieter dieser Immobilie zurückrufen.







 


 
Schantl ITH Immobilientreuhand GmbH
Mark Prettenthaler
Telefonnummer anzeigen Telefon Allgemein: +436643070009
Handy Bearbeiter: +436505675611
 
Bitte dem Makler die FindMyHome.at - ID bekanntgeben: 5620508

Bewertungen dieses Anbieters
Qualitätsmakler
Qualitätsmakler:
2015, 2016, 2018, 2019, 2020, 2021, 2023 , 2024, 2025,
Netiquette
Freundlichkeit
80 %

BEWERTUNGEN DIESES ANBIETERS

 
Qualit�tsmakler
Qualitätsmakler
2015, 2016, 2018, 2019, 2020, 2021, 22/23, 2024, 2025
Antwortzeit
ø 48h ANTWORT
Weiterempfehlung
WIRD GERNE

Freundlichkeit
BESONDERS
FREUNDLICH
Netiquette
FINDMYHOME
NETIQUETTE
Auch du kannst bewerten! 7 Tage nach deiner Anfrage erhältst du dafür von uns ein Bewertungsmail.
Alle Infos zu unseren Auszeichnungen und dem FINDMYHOME.AT Qualitätsprogramm findest du hier: Übersicht anzeigen

FINANZIERUNG
?>

Du willst wissen, wie viel dein Umzug kosten wird?

Mach gleich den kostenlosen Preisvergleich und schau, welche seriösen Anbieter in deiner Region günstig deinen Umzug organisieren


ZUM UMZUGS-VERGLEICH
-->

MYHOME BLOG
SuchAgentin auf FindMyHome.at
Unterschiedlichen Rechtsthemen, köstliche Rezepte, neueste Design-Highlights, sowie aktuelle Technik-Tools für Ihr Eigenheim.


FINDMYHOME.AT SUCHAGENTIN
SuchAgentin auf FindMyHome.at
Hallo, soll ich dir ähnliche Immobilien kostenfrei per E-Mail schicken?


ÄHNLICHE IMMOBILIEN
Aehnliche Immobilie - Vorschaubild 1

NEU! ERSTBEZUG EXKLUSIVE 3-4 ZIMMER-WOHNUNGEN BALKON/TERR... - Objektnr. 5619216

91,66 m² - 4.0 Zimmer
680000 €
PLZ: 1050

Mehr anzeigen

Aehnliche Immobilie - Vorschaubild 2

NEU! 6 EXKLUSIVE DG-WOHNUNGEN MIT WEITBLICK SOFORT BEZIEH... - Objektnr. 5594425

115,21 m² - 3.0 Zimmer
849000 €
PLZ: 1050

Mehr anzeigen

Aehnliche Immobilie - Vorschaubild 3

"AH11" - Erstbezug deluxe: Qualität, Lage & Preis im Einklan... - Objektnr. 5620503

98,78 m² - 4.0 Zimmer
740877 €
PLZ: 1050

Mehr anzeigen

Durch die Nutzung unserer Seite erklären Sie sich mit der Verwendung von Cookies zur Verbesserung Ihres Online-Erlebnisses einverstanden. Detaillierte Informationen zu diesem und weiteren Themen erhalten Sie in unserer Datenschutzerklärung.