MEIN ERGEBNIS ANPASSEN

NEU! Erstbezug 6 DG-Wohnungen Weitblick 1050 Wien - Objektnr. 5594425


ökologisch beheizt
1050
Ort
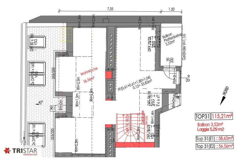
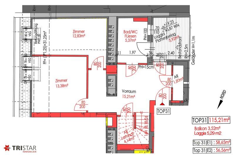
115,21 m²
Fläche
3.0
Zimmer

ECKDATEN
FindMyHome.at // Externe Immobilien-ID5594425 // 28312
ImmobilienartEigentum
Anschrift/31
1050 Wien
Baujahr2024
Befeuerung
Luftwärmepumpe
Stock6
Geschosse7
Fläche115,21 m²
Terrassen1 (9,00 m²)
Zimmer3.0
Bad1
WC1
Kaufpreis:€ 838.900,00
Ratenzahlung:Finanzierungsmöglichkeiten für diese Immobilie anzeigen
Provision: 3% des Kaufpreises zzgl. 20% USt.







BESCHREIBUNG

NEU! Erstbezug 6 DG-Wohnungen Weitblick 1050 Wien

  • GEBÜHRENBEFREIUNG BIS 1.7.2026:

Sichern Sie sich jetzt noch bis 30. Juni 2026 (nach aktuellem Stand) die Gebührenbefreiung für die Eintragung des Eigentumsrechts sowie im Falle einer Finanzierung auch die Befreiung der Pfandrechtsgebühr.

Maßgeblich hierfür ist die rechtzeitige Einbringung des Grundbuchsgesuchs durch den jeweiligen Vertragserrichter bzw. Rechtsanwalt und nicht das Kaufvertrags- oder Angebotsdatum

Die konkreten Voraussetzungen, Bedingungen sowie die maximale Höhe der möglichen Gebührenbefreiung erläutern wir Ihnen gerne auf Anfrage.

  • 6 EXKLUSIVE DACHGESCHOSSWOHNUNGEN MIT WIENBLICK:

Zum Verkauf gelangen 6 neu ausgebaute, topmoderne Dachgeschosswohnungen, die ab sofort bezugsfertig sind.

Die Wohnungen befinden sich in der Nähe des legendären Siebenbrunnenplatzes im 5. Wiener Gemeindebezirk und überzeugen durch eine ausgezeichnete Infrastruktur sowie ideale Verkehrsanbindung.

Der Dachgeschossausbau wurde in einem wunderschönen Wiener Eckaltbau realisiert.

Im Zuge dessen wurden die allgemeinen Teile des Hauses (Fassade, Stiegenhaus, Hofseite, Keller und Aufzug) umfassend modernisiert bzw. saniert. Die Wohnungen bieten großzügige Terrassen, lichtdurchflutete Räume und einen fantastischen Ausblick über Wien.

------------------------------

  • ÜBERBLICK

------------------------------

  • Top 28:  VERKAUFT!
  •  
  • Top 29:  VERKAUFT!
  •  
  • Top 30: VERKAUFT!
  •  
  • Top 31: Wohnfläche ca. 115,21m² + Terrasse ca. 3,52m² + Loggia ca. 5,97m²,  EUR 849.000
  •  
  • Top 32: Wohnfläche ca. 123,19m² + Loggia/Terrasse ca. 5,50m²,  EUR 949.000  
  •  
  • Top 33: RESERVIERT!

----------------------------------------------------

  • AUSSTATTUNG

Diese fünf topmodernen Dachgeschosswohnungen überzeugen durch eine hochwertige Ausstattung mit Fokus auf Qualität, Design und Funktionalität.

  • Böden/Wände:   Eichen-Landhausdiele in Wohnräumen, Keramikfliesen (120x120 cm, grau) in Sanitär, wasserbeständige Latexfarbe.
  • Türen/Fenster:   WK-3-Sicherheitstüren mit 4-fach-Verriegelung, weiße Innentüren, Alu-Fenster/Terrassentüren mit 3-fach-Verglasung, Schallschutz, elektrische Rolläden. VELUX-Dachfenster mit Klappfunktion, Außenrollos. mit Solar-Antrieb!
  • Sanitär:    Fußbodenheizung in Bädern, Wand-WC (Tiefspüler), Handwaschbecken (43x34 cm), Waschtisch (120x46 cm), Chrom-Armaturen, Duschkopf, Mischer, Handbrause.
  • Heizung/Warmwasser:    Luft-Wärmepumpe mit Fußbodenheizung, Bad-Heizkörper, öffentliche Versorgung.
  • Elektro/Multimedia:    Schalter (weiß matt) mit Steckdosen, Netzwerk/Koax/Jalousie, Video-Sprechanlage, Internet-Vorbereitung.
  • Klima:    Mono-Split-Klimaanlage für Luftkühlung.
  • Sonstiges:    Lüftung mit Filtern, Sonnenschutz, WPC-Terrassendielen (dunkelgrau), pulverbeschichtete Geländer, WLAN-Thermostate, Unterputz-Touch-Radio.

----------------------------------------------------

  • HINWEIS:

Die Möblierung auf einzelnen Bildern wurde mittels KI (künstlicher Intelligenz) generiert und dient ausschließlich der Veranschaulichung.

----------------------------------------------------

VERMITTLUNGSPROVISION / DOPPELMAKLERTÄTIGKEIT:

Der Ordnung halber wird darauf hingewiesen, dass die Vermittlungsprovision 3 % des Kaufpreises zuzüglich 20 % USt. (insgesamt 3,6 %) beträgt und mit Zustandekommen des vermittelten Rechtsgeschäfts (Annahme des Kaufanbots ohne aufschiebende Bedingungen durch den Verkäufer) fällig wird. Der Makler ist als Doppelmakler tätig.

NEU! Erstbezug 6 DG-Wohnungen Weitblick 1050 Wien

Wir weisen darauf hin, dass zwischen dem Vermittler und dem zu vermittelnden Dritten ein familiäres oder wirtschaftliches Naheverhältnis besteht.

Der Vermittler ist als Doppelmakler tätig.

Objekt ist für eine Wohngemeinschaft geeignet
Klimaanlage: JA
Provision: 3% des Kaufpreises zzgl. 20% USt.


Alle Details anzeigen

KONTAKT






 

Lasse dich kostenlos vom Anbieter dieser Immobilie zurückrufen.







 


 
TRISTAR Immobilien
TRISTAR Immobilien
Telefonnummer anzeigen Handy Bearbeiter: +436769017374
 
Bitte dem Makler die FindMyHome.at - ID bekanntgeben: 5594425

Bewertungen dieses Anbieters
Qualitätsmakler
Qualitätsmakler:
2017, 2019, 2020, 2021,
Netiquette
Freundlichkeit

BEWERTUNGEN DIESES ANBIETERS

 
Qualit�tsmakler
Qualitätsmakler
2017, 2019, 2020, 2021
Freundlichkeit
BESONDERS
FREUNDLICH
Netiquette
FINDMYHOME
NETIQUETTE
Auch du kannst bewerten! 7 Tage nach deiner Anfrage erhältst du dafür von uns ein Bewertungsmail.
Alle Infos zu unseren Auszeichnungen und dem FINDMYHOME.AT Qualitätsprogramm findest du hier: Übersicht anzeigen

FINANZIERUNG
?>

Du willst wissen, wie viel dein Umzug kosten wird?

Mach gleich den kostenlosen Preisvergleich und schau, welche seriösen Anbieter in deiner Region günstig deinen Umzug organisieren


ZUM UMZUGS-VERGLEICH
-->

MYHOME BLOG
SuchAgentin auf FindMyHome.at
Unterschiedlichen Rechtsthemen, köstliche Rezepte, neueste Design-Highlights, sowie aktuelle Technik-Tools für Ihr Eigenheim.


FINDMYHOME.AT SUCHAGENTIN
SuchAgentin auf FindMyHome.at
Hallo, soll ich dir ähnliche Immobilien kostenfrei per E-Mail schicken?


ÄHNLICHE IMMOBILIEN
Aehnliche Immobilie - Vorschaubild 1

AH11 - Ein prachtvolles Gründerzeithaus erstrahlt in neuem G... - Objektnr. 5677646

98,78 m² - 4.0 Zimmer
840877 €
PLZ: 1050

Mehr anzeigen

Aehnliche Immobilie - Vorschaubild 2

NEU! Erstbezug 6 DG-Wohnungen Weitblick 1050 Wien... - Objektnr. 5495435

123,19 m² - 3.0 Zimmer
938900 €
PLZ: 1050

Mehr anzeigen

Aehnliche Immobilie - Vorschaubild 3

++NEW++ extraordinary 4-room penthouse apartment with a 360°... - Objektnr. 5661019

116,42 m² - 4.0 Zimmer
999000 €
PLZ: 1050

Mehr anzeigen