MEIN ERGEBNIS ANPASSEN

**Stadt - Land** Terrassen-Maisonette mit kl. Garten in idyllischer Ruhelage - AB MÄRZ!!! - Objektnr. 5607933

  • Bild (2)
  • Bild (3)
  • Bild (1)
  • Bild (4)
  • Bild (5)
  • Bild (6)
  • Bild (7)
  • Bild (8)
  • Bild (9)
  • Bild (10)
  • Bild (11)
  • Bild (12)
  • Bild (13)
  • Bild (14)
  • Bild (15)
  • Bild (18)
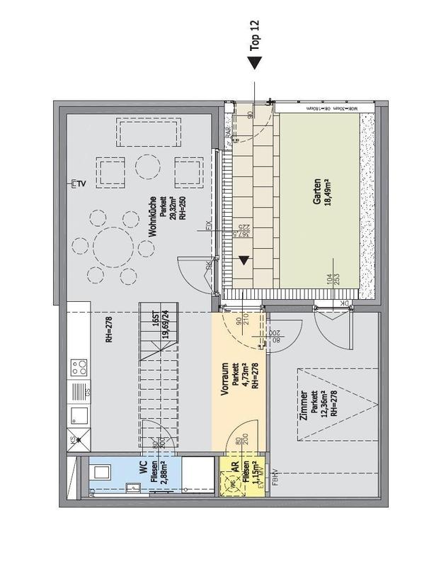
  • Plan 12 EG
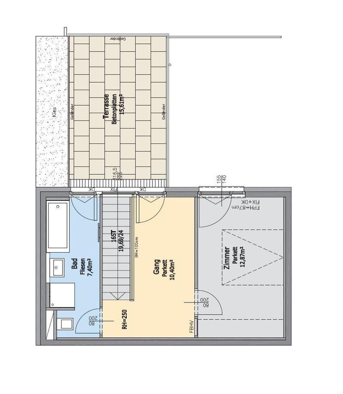
  • Plan 12 OG
  • Außenansicht
  • Parkplatz und Garage
  • IMMY Preisträger
1210
Ort
€ 1.560,16
Gesamtkosten
81,11 m²
Fläche
3.0
Zimmer

ECKDATEN
FindMyHome.at // Externe Immobilien-ID5607933 // 3610/5733
ImmobilienartWohnung - Miete
Anschrift1210 Wien
Baujahr2017
NäheStrebersdorf, Stammersdorf
HeizungFußbodenheizung
Liftja
KellerJa
Beziehbar ab01.03.2026
Mietdauer10.0
Fläche81,11 m²
Gartenfläche19,00 m²
Terrassen1 (16,00 m²)
Zimmer3.0
Bad1
WC2
Kaution:€ 4.685,00
sonstige Kosten (inkl. MwSt):€ 266,45
Mehrwertsteuer:€ 1.559,16
Monatliche Gesamtkosten:€ 1.560,16




BESCHREIBUNG

**Stadt - Land** Terrassen-Maisonette mit kl. Garten in idyllischer Ruhelage - AB MÄRZ!!!

Zur Vermietung gelangt diese moderne 3-Zimmer Maisonette in wunderschöner, ruhiger Lage in der Fritz-Kandl-Gasse im Bezirk Strebersdorf.
Durch den Innenhof, vorbei am eigenen kleinen Garten gelangt man zu dieser schönen Neubauwohnung, die vor allem auch mit einer sehr hochwertigen Ausstattung punkten kann.
Auf jeder Wohnebene steht Ihnen ein WC zur Verfügung. Ein weiteres Highlight ist die große Terrasse im Obergeschoß.

Wichtige Entfernungen:
- BILLA - 650m
- Spar 1500m
- Busstation 32A - 350m (Mühlweg)
- Straßenbahnline 26 - 350m (Edward-Hawranek-Platz)

RAUMAUFTEILUNG IN STICHWORTEN (EG)
? Vorraum
? Zimmer
? Abstellraum mit Waschmaschinenanschluss
? Wohnzimmer mit offener Küche
? WC mit Waschbecken
? Garten und Terrassenweg

RAUMAUFTEILUNG IN STICHWORTEN (OG)
? Vorraum
? Schlafzimmer
? Bad mit Badewanne, Dusche, Waschbecken und WC
? großer Terrasse


HIGHLIGHTS UND AUSSTATTUNGSMERKMALE
? absolut neuwertig
? Fußbodenheizung
? hochwertige Einbauküche
? elektr. Außenjalousien
? Sicherheitswohnungseingangstüren
? hochwertiger Parkettboden (Eiche)
? sehr gute Raumaufteilung
? Fahrradraum und eigenes Kellerabteil
? 26 überdachte Stellplätze separat anmietbar (je nach Verfügbarkeit)
? 19m² Eigengarten
? große Terrasse im OG.

SEHR GUTE ÖFFENTLICHE VERKEHRSANBINDUNG
? Autobuslinie: 32A
? Straßenbahnlinie: 26
? S-Bahn: Bahnhof Strebersdorf (1,3km)
? Regionalbus: 510, 850

ERSTZAHLUNG
? 3 BMM Kaution
? erste Monatsmiete im Voraus

ZUSÄTZLICHE MONATLICHE KOSTEN
? Wasser, Heizung... werden von der ISTA nach tatsächlichem Verbrauch abgerechnet
? Strom - wird direkt nach Verbrauch abgerechnet (Wien Energie bzw. Netznutzung Wiener Netze)
? ggf. TV/Internet, Haushaltsversicherung, GIS, o.Ä.

VERTRAGSBEDINGUNGEN
? Befristung: 10 Jahre
? Kündigungsverzicht: 12 Monate (mieterseitig)
? Kündigungsfrist: 3 Monate
? gefordertes Mindestnettoeinkommen (Haushalt): € 3900,--


ICH BIN IHR MAKLER
Herr Robert Fried
Mobil: +43 664 88 296 010
Email: robert.fried@hubner-immobilien.com

Falls Sie Fragen haben oder einen Besichtigungstermin vereinbaren möchten, stehen wir Ihnen selbstverständlich sehr gerne zur Verfügung. Wir freuen uns auf Ihre Kontaktaufnahme!

___Angaben gemäß gesetzlichem Erfordernis:
Miete €1176,1 zzgl 10% USt.Betriebskosten €242,23 zzgl 10% USt.Umsatzsteuer €141,83------------------------------------------------------------------Gesamtbetrag €1560,16------------------------------------------------------------------Heizwärmebedarf:35.16 kWh/(m²a)Klasse Heizwärmebedarf:BFaktor Gesamtenergieeffizienz:0.84Klasse Faktor Gesamtenergieeffizienz:AGartennutzung: JA


Alle Details anzeigen

KONTAKT






 

Lasse dich kostenlos vom Anbieter dieser Immobilie zurückrufen.







 


 
Hubner Immobilien GmbH
Robert Fried
Telefonnummer anzeigen Telefon Allgemein: +4366488296010
 
Bitte dem Makler die FindMyHome.at - ID bekanntgeben: 5607933

Bewertungen dieses Anbieters
Qualitätsmakler
Qualitätsmakler:
2014, 2015, 2016, 2018, 2019, 2020, 2021 , 2025,
Netiquette
Freundlichkeit
83 %

BEWERTUNGEN DIESES ANBIETERS

 
Qualit�tsmakler
Qualitätsmakler
2014, 2015, 2016, 2018, 2019, 2020, 2021 2025
Weiterempfehlung
WIRD GERNE

Freundlichkeit
BESONDERS
FREUNDLICH
Netiquette
FINDMYHOME
NETIQUETTE
Auch du kannst bewerten! 7 Tage nach deiner Anfrage erhältst du dafür von uns ein Bewertungsmail.
Alle Infos zu unseren Auszeichnungen und dem FINDMYHOME.AT Qualitätsprogramm findest du hier: Übersicht anzeigen


Du willst wissen, wie viel dein Umzug kosten wird?

Mach gleich den kostenlosen Preisvergleich und schau, welche seriösen Anbieter in deiner Region günstig deinen Umzug organisieren


ZUM UMZUGS-VERGLEICH
-->

MYHOME BLOG
SuchAgentin auf FindMyHome.at
Unterschiedlichen Rechtsthemen, köstliche Rezepte, neueste Design-Highlights, sowie aktuelle Technik-Tools für Ihr Eigenheim.


FINDMYHOME.AT SUCHAGENTIN
SuchAgentin auf FindMyHome.at
Hallo, soll ich dir ähnliche Immobilien kostenfrei per E-Mail schicken?


ÄHNLICHE IMMOBILIEN
Aehnliche Immobilie - Vorschaubild 1

Koffer packen und einziehen - Objektnr. 5606463


83,90 m² - 3.0 Zimmer
1250 €
PLZ: 1210

Mehr anzeigen

Aehnliche Immobilie - Vorschaubild 2

FAMILIENFREUNDLICHER ERSTBEZUG in kleiner Wohnanlage | RUHIG... - Objektnr. 5606739

70,28 m² - 3.0 Zimmer
1420 €
PLZ: 1210

Mehr anzeigen

Aehnliche Immobilie - Vorschaubild 3

ab 1.3.26 in der Hopfengasse: 3-Zimmer-GARTENWOHNUNG mit 40m... - Objektnr. 5604843

70,00 m² - 3.0 Zimmer
1299 €
PLZ: 1210

Mehr anzeigen

Durch die Nutzung unserer Seite erklären Sie sich mit der Verwendung von Cookies zur Verbesserung Ihres Online-Erlebnisses einverstanden. Detaillierte Informationen zu diesem und weiteren Themen erhalten Sie in unserer Datenschutzerklärung.