MEIN ERGEBNIS ANPASSEN

ab 1.3.26 in der Hopfengasse: 3-Zimmer-GARTENWOHNUNG mit 40m² Außenfläche! - Objektnr. 5604843

  • Gartenwohnungen-Innenhof
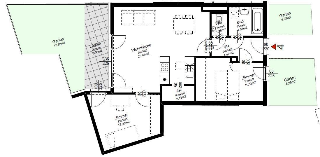
  • GRUNDRISS Top 3-04
  • Lage im Haus
  • Lageplan mit Öffis
  • Außenansicht
  • Außenansicht
  • Fahrradraum
  • Garage
  • Garage
  • Garage
  • Kellerabteile
  • Kellerabteile
  • Waschküche
  • Außenansicht
  • IMMY Preisträger
1210
Ort
€ 1.299,00
Gesamtkosten
70,00 m²
Fläche
3.0
Zimmer

ECKDATEN
FindMyHome.at // Externe Immobilien-ID5604843 // 3610/8204
ImmobilienartWohnung - Miete
Anschrift1210 Wien
Baujahr2015
NähePrager Straße, Trillerpark, S-Bahn Jedlersdorf
HeizungZentralheizung mit Gas
StockEG
Liftja
KellerJa
Beziehbar ab01.03.2026
Mietdauer5.0
Fläche70,00 m²
Gartenfläche32,95 m²
Loggia1 (8,06 m²)
Zimmer3.0
Bad1
WC1
Kaution:€ 3.900,00
sonstige Kosten (inkl. MwSt):€ 280,59
Mehrwertsteuer:€ 1.298,00
Monatliche Gesamtkosten:€ 1.299,00




BESCHREIBUNG

ab 1.3.26 in der Hopfengasse: 3-Zimmer-GARTENWOHNUNG mit 40m² Außenfläche!

Hopfengasse beim FAC-Platz! 3-Zimmer Neubauwohnung mit 74,18m² Nutzfläche, davon 8,06m² Loggia!
Zuzüglich Gartenfläche (32,95m²)!
Top-Ausstattung! Optimale Infrastruktur!!

In weniger als 5min erreichen Sie fußläufig den Bahnhof Jedlersdorf, von wo die S-Bahn Sie in nur 17min gemütlich nach WIEN MITTE bringt.
Lassen Sie uns gemeinsam Ihr neues Zuhause finden!

RAUMAUFTEILUNG IN STICHWORTEN
? Vorraum
? Wohnzimmer mit offener Küche
? Abstellraum / Speis
? Zimmer 1
? Zimmer 2
? Bad mit Badewanne mit Duschmöglichkeit, Waschtisch, Waschmaschinenanschluss und Handtuchheizkörper
? WC mit Waschbecken
? Loggia
? Garten
? Kellerabteil

HIGHLIGHTS AUF EINEN BLICK
? Garten + Terrasse
? Gaszentralheizung
? außenliegende Beschattung
? Sicherheitswohnungseingangstüren
? hochwertiger Parkettboden (Eiche)
? Markenküche mit hochwertigen Elektrogeräten (E-Herd, Cerankochfeld, Geschirrspüler, Kühl-Gefrier-Kombination, Dunstabzug und Spüle)
? hochwertige Ausstattung auch im Badezimmer / WC (Laufen, Grohe), Badwannen mit Glasduschwänden
? sehr gute Raumaufteilung
? effiziente Grundrisse
? zentrale Schließanlage
? Fahrrad- und Kinderwagenabstellraum
? großzügige Aufzüge
? sehr gute Energiekennzahlen
? optimale Infrastruktur
? GARAGENPLÄTZE DIREKT IM HAUS

UMGEBUNG UND INFRASTRUKTUR
? diverse Supermärkte in Gehnähe (Hofer, Billa, Interspar etc.)
? Trillerpark & Shopping Center Nord mit unzähligen Einkaufsmöglichkeiten zu Fuß erreichbar
? Freizeiteinrichtungen: Kino, Fitnessstudio, Fußball, Tennis etc.
? Naherholungsgebiet Donauinsel
? gute Erreichbarkeit in die Innenstadt

SEHR GUTE ÖFFENTLICHE VERKEHRSANBINDUNG
? S-Bahn: Jedlersdorf (<5min)
? WIEN MITTE in 17min (S3)
? Autobuslinie: 36A, 36B
? Straßenbahnlinie: 26
? Regionalbus: 850
? U-Bahn: U6 Floridsdorf (ca. 12min mit Linie 26)

ERSTZAHLUNG
? 3 BMM Kaution
? erste Monatsmiete im Voraus
? Mietvertragserrichtung EUR 349,-

WEITERE MONATLICHE KOSTEN
? Wasser, Heizung... werden nach tatsächlichem Verbrauch abgerechnet
? Strom - wird direkt nach Verbrauch abgerechnet (Wien Energie bzw. Netznutzung Wiener Netze)
? ggf. TV/Internet, Haushaltsversicherung, o.Ä.

VERTRAGSBEDINGUNGEN
? Befristung: 5 Jahre
? Kündigungsverzicht: 12 Monate (mieterseitig)
? Kündigungsfrist: 3 Monate
? gefordertes Mindestnettoeinkommen (Haushalt): EUR 3250,-

BENÖTIGTE UNTERLAGEN FÜR ANMIETUNG
? Mietanbot (Vorlage erhalten Sie von uns)
? Selbstauskunft (Vorlage erhalten Sie von uns)
? Kopie Reisepass oder Personalausweis
? Kopie Bankomatkarte (nur IBAN relevant)
? Einkommensnachweis (letzte 3 Lohnzettel, Einkommenssteuerbescheid oder bei Berufswechsel unterzeichneter Dienstvertrag)
? Meldezettel
? Haushaltsrechnung (Vorlage erhalten Sie von uns)


IHRE MAKLERIN
Frau Kerstin Fried
Email: kerstin.fried@hubner-immobilien.com

Falls Sie Fragen haben oder einen Besichtigungstermin vereinbaren möchten, stehen wir Ihnen selbstverständlich sehr gerne zur Verfügung. Wir freuen uns auf Ihre Kontaktaufnahme!Angaben gemäß gesetzlichem Erfordernis:
Miete €925,83 zzgl 10% USt.Betriebskosten €255,08 zzgl 10% USt.Umsatzsteuer €118,09------------------------------------------------------------------Gesamtbetrag €1299------------------------------------------------------------------Heizwärmebedarf:27.43 kWh/(m²a)Klasse Heizwärmebedarf:BFaktor Gesamtenergieeffizienz:0.79Klasse Faktor Gesamtenergieeffizienz:AGartennutzung: JA


Alle Details anzeigen

KONTAKT






 

Lasse dich kostenlos vom Anbieter dieser Immobilie zurückrufen.







 


 
Hubner Immobilien GmbH
Kerstin Fried
Telefonnummer anzeigen Telefon Allgemein: +4315121956
Handy Bearbeiter: +4366488730881
 
Bitte dem Makler die FindMyHome.at - ID bekanntgeben: 5604843

Bewertungen dieses Anbieters
Qualitätsmakler
Qualitätsmakler:
2014, 2015, 2016, 2018, 2019, 2020, 2021 , 2025,
Netiquette
Freundlichkeit
83 %

BEWERTUNGEN DIESES ANBIETERS

 
Qualit�tsmakler
Qualitätsmakler
2014, 2015, 2016, 2018, 2019, 2020, 2021 2025
Weiterempfehlung
WIRD GERNE

Freundlichkeit
BESONDERS
FREUNDLICH
Netiquette
FINDMYHOME
NETIQUETTE
Auch du kannst bewerten! 7 Tage nach deiner Anfrage erhältst du dafür von uns ein Bewertungsmail.
Alle Infos zu unseren Auszeichnungen und dem FINDMYHOME.AT Qualitätsprogramm findest du hier: Übersicht anzeigen


Du willst wissen, wie viel dein Umzug kosten wird?

Mach gleich den kostenlosen Preisvergleich und schau, welche seriösen Anbieter in deiner Region günstig deinen Umzug organisieren


ZUM UMZUGS-VERGLEICH
-->

MYHOME BLOG
SuchAgentin auf FindMyHome.at
Unterschiedlichen Rechtsthemen, köstliche Rezepte, neueste Design-Highlights, sowie aktuelle Technik-Tools für Ihr Eigenheim.


FINDMYHOME.AT SUCHAGENTIN
SuchAgentin auf FindMyHome.at
Hallo, soll ich dir ähnliche Immobilien kostenfrei per E-Mail schicken?


ÄHNLICHE IMMOBILIEN
Aehnliche Immobilie - Vorschaubild 1

3-Zimmer-Neubauwohnung mit 32,43m² AUSSENFLÄCHE - Sonnig und... - Objektnr. 5601583

80,00 m² - 3.0 Zimmer
1445.01 €
PLZ: 1210

Mehr anzeigen

Aehnliche Immobilie - Vorschaubild 2

2-Zimmer Galeriewohnung mit Terrasse - Nähe Donauinsel & U-B... - Objektnr. 5606733

59,70 m² - 2.0 Zimmer
1149 €
PLZ: 1210

Mehr anzeigen

Aehnliche Immobilie - Vorschaubild 3

Traumhafte 3-Zimmer Gartenwohnung in 1210 nahe der Donauinse... - Objektnr. 5607503

73,85 m² - 3.0 Zimmer
1482.91 €
PLZ: 1210

Mehr anzeigen

Durch die Nutzung unserer Seite erklären Sie sich mit der Verwendung von Cookies zur Verbesserung Ihres Online-Erlebnisses einverstanden. Detaillierte Informationen zu diesem und weiteren Themen erhalten Sie in unserer Datenschutzerklärung.