MEIN ERGEBNIS ANPASSEN

CANAVESE - Erstbezug 4-Zimmer-Maisonette mit 4 Balkonen im grünen Liesing - PROVISIONSFREI - Objektnr. 5605680

1230
Ort
110,49 m²
Fläche
4.0
Zimmer

ECKDATEN
FindMyHome.at // Externe Immobilien-ID5605680 // 62476
ImmobilienartEigentum
Anschrift/7
1230 Wien
Baujahr2027
Stock1
Geschosse4
Fläche110,49 m²
Zimmer4.0
Bad1
WC1
Kaufpreis:€ 642.000,00
Ratenzahlung:Finanzierungsmöglichkeiten für diese Immobilie anzeigen
Provision:







BESCHREIBUNG

CANAVESE - Erstbezug 4-Zimmer-Maisonette mit 4 Balkonen im grünen Liesing - PROVISIONSFREI

In der Canavesegasse 4, eingebettet in eine ruhige und beliebte Wohngegend des 23. Wiener Gemeindebezirks, entsteht mit CANAVESE ein hochwertiges Neubauprojekt der Chronos Wohnbau Gruppe. Die Lage verbindet angenehme Zurückgezogenheit mit sehr guter urbaner Anbindung und bietet eine Wohnqualität, die Ruhe, Grün und Infrastruktur in ausgewogener Weise vereint.

Atzgersdorf steht für gewachsene Strukturen, Grünräume und ein entspanntes Wohnumfeld bei gleichzeitig guter Erreichbarkeit des Stadtzentrums. Ein Standort für Menschen, die bewusst wohnen möchten und Wert auf Alltagstauglichkeit legen.

Architektur und Projektkonzept

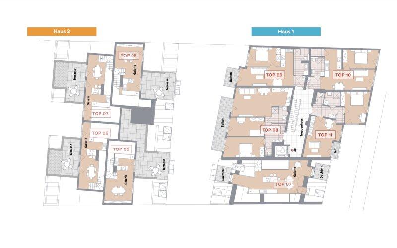
Zwei architektonisch klar gestaltete Baukörper fügen sich harmonisch in das bestehende Ortsbild ein. Das Projekt umfasst 18 Eigentumswohnungen sowie 4 hochwertig integrierte Gewerbeflächen im Erdgeschoss. Die gewählte Projektgröße trägt zu einem ruhigen Wohngefühl und einer nachhaltigen Nachbarschaftsstruktur bei.

Die Wohnungen reichen von Gartenwohnungen über großzügige Familienwohnungen bis hin zu durchdacht geplanten Dachgeschosswohnungen. Ein Großteil der Einheiten verfügt über private Freiflächen  Eigengärten, Terrassen oder Balkone und schafft damit wertvolle Außenräume für den Alltag.

Individuelle Gestaltungsmöglichkeiten

Sie können Ihr zukünftiges Zuhause in vielen Bereichen persönlich mitgestalten.
Dazu zählen sofern gewünscht

  • die Auswahl von Bodenbelägen und Fliesen 
  • die Festlegung von Sanitärausstattung und Armaturen,
  • die Abstimmung von Details des Innenausbaus wie Türen und Schalterprogramme,
  • sowie die Anpassung von Grundriss und Raumaufteilung an individuelle Wohnbedürfnisse

Die Wohnungsbilder im Inserat beziehen sich auf Top 2, Top 8 sowie Top 11 und geben einen wundervollen ersten Eindruck in die Lebensqualität des Projekts.

Ausstattung und Wohnqualität

Klare Linien, großzügige Fensterflächen und eine durchdachte Raumorganisation prägen das Wohngefühl. Fußbodenheizung, moderne Haustechnik, hochwertige Sanitärausstattung und langlebige Materialien bilden die Grundlage für zeitlosen Wohnkomfort und nachhaltige Wertbeständigkeit.

Die Grundrisse sind vielseitig nutzbar und eignen sich für unterschiedliche Lebenssituationen  vom ersten Eigenheim über die Familienzeit bis hin zur langfristigen Vorsorge.

Lage und Umgebung

Die Umgebung bietet einen hohen Freizeit- und Erholungswert. Die Liesing, der Lainzer Tiergarten sowie die Perchtoldsdorfer Heide befinden sich in unmittelbarer Nähe. Nahversorgung, Schulen, Kindergärten und öffentliche Verkehrsmittel sind gut erreichbar. Die Wiener Innenstadt erreichen Sie in rund 25 Minuten.

Zeitplan

Der Baustart ist für Sommer 2026 vorgesehen, die Fertigstellung für Herbst 2027. Die klare Projektstruktur, die hochwertige Planung und die Möglichkeit zur individuellen Abstimmung bieten eine verlässliche Grundlage für Eigennutzer wie auch für Anleger.

CANAVESE steht für

Ruhiges Wohnen. Durchdachte Planung. Individuelle Gestaltung. Langfristige Nutzbarkeit.

Ein Neubauprojekt für Menschen, die bewusst wählen
und Wert auf Qualität, Ruhe und Substanz legen.

Gerne übermitteln wir Ihnen auf Anfrage auch die Preisliste für Anleger.

 

Objektbeschreibung

Top 7 in Haus 1 erstreckt sich über das 1. und 2. Obergeschoss und überzeugt als hochwertig geplante Maisonettewohnung mit klarer Raumtrennung und vielseitigen Nutzungsmöglichkeiten.

Mit ca. 110,49 m² Wohnnutzfläche bietet die Wohnung eine komfortable 4-Zimmer-Aufteilung, die sich ideal für Familien, Paare mit Platzbedarf oder Wohnen und Arbeiten unter einem Dach eignet.

Im 1. Obergeschoss befindet sich der offen gestaltete Wohnbereich, der gemeinsam mit zwei Schlafzimmern, einem Badezimmer und einem separaten WC den Hauptwohnbereich der Wohnung bildet. Zwei Balkone erweitern diese Ebene ins Freie und sorgen für zusätzlichen Wohnkomfort.

Das 2. Obergeschoss ist als großzügige Galerieebene ausgeführt und beherbergt den offen gestalteten Ess- und Kochbereich, der als kommunikativer Mittelpunkt der Wohnung dient. Diese Ebene eignet sich ideal für geselliges Kochen und Essen oder als zusätzlicher Aufenthaltsbereich. Weitere Balkoneschaffen auch hier einen attraktiven Außenbezug und unterstreichen das luftige, offene Wohngefühl.

Die klare Trennung zwischen Schlaf- und Wohnzonen verleiht der Wohnung ein besonders hochwertiges, ruhiges und zugleich modernes Wohnambiente.

Highlights auf einen Blick

  • ca. 110,49 m² Wohnnutzfläche
  • 4-Zimmer-Maisonettewohnung
  • Wohnbereich im 1. Obergeschoss
  • Ess- und Kochbereich auf Galerieebene
  • mehrere Balkone
  • 2 Schlafzimmer auf separater Ebene
  • Bad & separates WC

 

Der Vermittler ist als Doppelmakler tätig.


Infrastruktur / Entfernungen

Gesundheit
Arzt <1.000m
Apotheke <500m
Klinik <500m
Krankenhaus <2.000m

Kinder & Schulen
Schule <500m
Kindergarten <500m
Universität <5.000m
Höhere Schule <4.500m

Nahversorgung
Supermarkt <500m
Bäckerei <500m
Einkaufszentrum <2.000m

Sonstige
Geldautomat <500m
Bank <500m
Post <2.000m
Polizei <2.000m

Verkehr
Bus <500m
U-Bahn <2.000m
Straßenbahn <2.000m
Bahnhof <500m
Autobahnanschluss <2.500m

Angaben Entfernung Luftlinie / Quelle: OpenStreetMap

Barrierefrei: JA
Provision:


Alle Details anzeigen

KONTAKT






 

Lasse dich kostenlos vom Anbieter dieser Immobilie zurückrufen.







 


 
AKKADIA Immobilienvermittlung GmbH
Lia Seidel
Telefonnummer anzeigen Handy Bearbeiter: +436604035828
 
Bitte dem Makler die FindMyHome.at - ID bekanntgeben: 5605680

Bewertungen dieses Anbieters
Netiquette
Freundlichkeit

BEWERTUNGEN DIESES ANBIETERS

 
Freundlichkeit
BESONDERS
FREUNDLICH
Netiquette
FINDMYHOME
NETIQUETTE
Auch du kannst bewerten! 7 Tage nach deiner Anfrage erhältst du dafür von uns ein Bewertungsmail.
Alle Infos zu unseren Auszeichnungen und dem FINDMYHOME.AT Qualitätsprogramm findest du hier: Übersicht anzeigen

FINANZIERUNG
?>

Du willst wissen, wie viel dein Umzug kosten wird?

Mach gleich den kostenlosen Preisvergleich und schau, welche seriösen Anbieter in deiner Region günstig deinen Umzug organisieren


ZUM UMZUGS-VERGLEICH
-->

MYHOME BLOG
SuchAgentin auf FindMyHome.at
Unterschiedlichen Rechtsthemen, köstliche Rezepte, neueste Design-Highlights, sowie aktuelle Technik-Tools für Ihr Eigenheim.


FINDMYHOME.AT SUCHAGENTIN
SuchAgentin auf FindMyHome.at
Hallo, soll ich dir ähnliche Immobilien kostenfrei per E-Mail schicken?


ÄHNLICHE IMMOBILIEN
Aehnliche Immobilie - Vorschaubild 1

Komfortable 3-Zimmer-Wohnung mit Garten und separater Arbeit... - Objektnr. 5569136

102,33 m² - 3.5 Zimmer
696000 €
PLZ: 1230

Mehr anzeigen

Aehnliche Immobilie - Vorschaubild 2

CANAVESE - Erstbezug 4-Zimmer-Dachgeschosswohnung mit Balkon... - Objektnr. 5605674

95,01 m² - 4.0 Zimmer
598900 €
PLZ: 1230

Mehr anzeigen

Aehnliche Immobilie - Vorschaubild 3

CANAVESE - Erstbezug 5-Zimmer-Maisonette mit Balkon & Terras... - Objektnr. 5605670

98,79 m² - 5.0 Zimmer
585400 €
PLZ: 1230

Mehr anzeigen

Durch die Nutzung unserer Seite erklären Sie sich mit der Verwendung von Cookies zur Verbesserung Ihres Online-Erlebnisses einverstanden. Detaillierte Informationen zu diesem und weiteren Themen erhalten Sie in unserer Datenschutzerklärung.