MEIN ERGEBNIS ANPASSEN

CANAVESE - Erstbezug 5-Zimmer-Maisonette mit Balkon & Terrasse im grünen Liesing - PROVISIONSFREI - Objektnr. 5605670

1230
Ort
98,79 m²
Fläche
5.0
Zimmer

ECKDATEN
FindMyHome.at // Externe Immobilien-ID5605670 // 62505
ImmobilienartEigentum
Anschrift/8
1230 Wien
Baujahr2027
Stock1
Geschosse4
Fläche98,79 m²
Terrassen1 (36,00 m²)
Zimmer5.0
Bad1
WC1
 Abstellraum
Kaufpreis:€ 585.400,00
Ratenzahlung:Finanzierungsmöglichkeiten für diese Immobilie anzeigen
Provision:







BESCHREIBUNG

CANAVESE - Erstbezug 5-Zimmer-Maisonette mit Balkon & Terrasse im grünen Liesing - PROVISIONSFREI

In der Canavesegasse 4, eingebettet in eine ruhige und beliebte Wohngegend des 23. Wiener Gemeindebezirks, entsteht mit CANAVESE ein hochwertiges Neubauprojekt der Chronos Wohnbau Gruppe. Die Lage verbindet angenehme Zurückgezogenheit mit sehr guter urbaner Anbindung und bietet eine Wohnqualität, die Ruhe, Grün und Infrastruktur in ausgewogener Weise vereint.

Atzgersdorf steht für gewachsene Strukturen, Grünräume und ein entspanntes Wohnumfeld bei gleichzeitig guter Erreichbarkeit des Stadtzentrums. Ein Standort für Menschen, die bewusst wohnen möchten und Wert auf Alltagstauglichkeit legen.

Architektur und Projektkonzept

Zwei architektonisch klar gestaltete Baukörper fügen sich harmonisch in das bestehende Ortsbild ein. Das Projekt umfasst 18 Eigentumswohnungen sowie 4 hochwertig integrierte Gewerbeflächen im Erdgeschoss. Die gewählte Projektgröße trägt zu einem ruhigen Wohngefühl und einer nachhaltigen Nachbarschaftsstruktur bei.

Die Wohnungen reichen von Gartenwohnungen über großzügige Familienwohnungen bis hin zu durchdacht geplanten Dachgeschosswohnungen. Ein Großteil der Einheiten verfügt über private Freiflächen  Eigengärten, Terrassen oder Balkone und schafft damit wertvolle Außenräume für den Alltag.

Individuelle Gestaltungsmöglichkeiten

Sie können Ihr zukünftiges Zuhause in vielen Bereichen persönlich mitgestalten.
Dazu zählen sofern gewünscht

  • die Auswahl von Bodenbelägen und Fliesen 
  • die Festlegung von Sanitärausstattung und Armaturen,
  • die Abstimmung von Details des Innenausbaus wie Türen und Schalterprogramme,
  • sowie die Anpassung von Grundriss und Raumaufteilung an individuelle Wohnbedürfnisse

Die Wohnungsbilder im Inserat beziehen sich auf Top 2, Top 8 sowie Top 11 und geben einen wundervollen ersten Eindruck in die Lebensqualität des Projekts.

Ausstattung und Wohnqualität

Klare Linien, großzügige Fensterflächen und eine durchdachte Raumorganisation prägen das Wohngefühl. Fußbodenheizung, moderne Haustechnik, hochwertige Sanitärausstattung und langlebige Materialien bilden die Grundlage für zeitlosen Wohnkomfort und nachhaltige Wertbeständigkeit.

Die Grundrisse sind vielseitig nutzbar und eignen sich für unterschiedliche Lebenssituationen  vom ersten Eigenheim über die Familienzeit bis hin zur langfristigen Vorsorge.

Lage und Umgebung

Die Umgebung bietet einen hohen Freizeit- und Erholungswert. Die Liesing, der Lainzer Tiergarten sowie die Perchtoldsdorfer Heide befinden sich in unmittelbarer Nähe. Nahversorgung, Schulen, Kindergärten und öffentliche Verkehrsmittel sind gut erreichbar. Die Wiener Innenstadt erreichen Sie in rund 25 Minuten.

Zeitplan

Der Baustart ist für Sommer 2026 vorgesehen, die Fertigstellung für Herbst 2027. Die klare Projektstruktur, die hochwertige Planung und die Möglichkeit zur individuellen Abstimmung bieten eine verlässliche Grundlage für Eigennutzer wie auch für Anleger.

CANAVESE steht für

Ruhiges Wohnen. Durchdachte Planung. Individuelle Gestaltung. Langfristige Nutzbarkeit.

Ein Neubauprojekt für Menschen, die bewusst wählen
und Wert auf Qualität, Ruhe und Substanz legen.

Gerne übermitteln wir Ihnen auf Anfrage auch die Preisliste für Anleger.

 

Objektbeschreibung

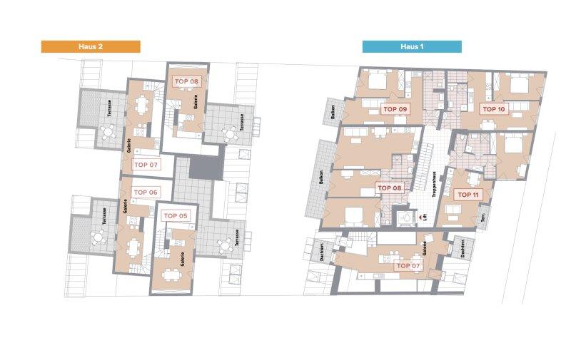
Top 8 in Haus 2 erstreckt sich über das 1. und 2. Obergeschoss und überzeugt durch eine besonders großzügige Raumaufteilung sowie attraktive Außenflächen.

Mit ca. 98,79 m² Wohnnutzfläche bietet die Wohnung eine komfortable 5-Zimmer-Struktur, die sich ideal für Familien, Paare mit erhöhtem Platzbedarf oder Wohnen und Arbeiten unter einem Dach eignet.

Im 1. Obergeschoss befinden sich der Wohn-/Ess-/Kochbereich, drei separat begehbare Schlafzimmer, ein Badezimmer, ein separates WC, ein Abstellraum sowie ein Vorraum. Ein großzügiger Balkon sorgt für zusätzlichen Freiraum und eine helle Wohnatmosphäre.

Das 2. Obergeschoss ist als Galerieebene ausgeführt und eignet sich ideal als zusätzlicher Wohnbereich, Homeoffice oder Rückzugszone. Von hier aus gelangt man direkt auf die Terrasse, die einen hochwertigen Freibereich mit viel Privatsphäre bietet.

Die Kombination aus mehreren Schlafzimmern, Galerie und großzügigen Außenflächen verleiht dieser Wohnung ein besonders hochwertiges und vielseitiges Wohnambiente.

Highlights auf einen Blick

  • ca. 98,79 m² Wohnnutzfläche
  • 5-Zimmer-Maisonettewohnung
  • Wohn-/Ess-/Kochbereich
  • Galerieebene mit vielseitiger Nutzung
  • Balkon
  • Terrasse
  • 3 Schlafzimmer auf Wohnebene
  • Bad & separates WC
  • Abstellraum
  • großzügige Raumstruktur & hohe Wohnqualität

 

Der Vermittler ist als Doppelmakler tätig.


Infrastruktur / Entfernungen

Gesundheit
Arzt <1.000m
Apotheke <500m
Klinik <500m
Krankenhaus <2.000m

Kinder & Schulen
Schule <500m
Kindergarten <500m
Universität <5.000m
Höhere Schule <4.500m

Nahversorgung
Supermarkt <500m
Bäckerei <500m
Einkaufszentrum <2.000m

Sonstige
Geldautomat <500m
Bank <500m
Post <2.000m
Polizei <2.000m

Verkehr
Bus <500m
U-Bahn <2.000m
Straßenbahn <2.000m
Bahnhof <500m
Autobahnanschluss <2.500m

Angaben Entfernung Luftlinie / Quelle: OpenStreetMap

Barrierefrei: JA
Provision:


Alle Details anzeigen

KONTAKT






 

Lasse dich kostenlos vom Anbieter dieser Immobilie zurückrufen.







 


 
AKKADIA Immobilienvermittlung GmbH
Lia Seidel
Telefonnummer anzeigen Handy Bearbeiter: +436604035828
 
Bitte dem Makler die FindMyHome.at - ID bekanntgeben: 5605670

Bewertungen dieses Anbieters
Netiquette
Freundlichkeit

BEWERTUNGEN DIESES ANBIETERS

 
Freundlichkeit
BESONDERS
FREUNDLICH
Netiquette
FINDMYHOME
NETIQUETTE
Auch du kannst bewerten! 7 Tage nach deiner Anfrage erhältst du dafür von uns ein Bewertungsmail.
Alle Infos zu unseren Auszeichnungen und dem FINDMYHOME.AT Qualitätsprogramm findest du hier: Übersicht anzeigen

FINANZIERUNG
?>

Du willst wissen, wie viel dein Umzug kosten wird?

Mach gleich den kostenlosen Preisvergleich und schau, welche seriösen Anbieter in deiner Region günstig deinen Umzug organisieren


ZUM UMZUGS-VERGLEICH
-->

MYHOME BLOG
SuchAgentin auf FindMyHome.at
Unterschiedlichen Rechtsthemen, köstliche Rezepte, neueste Design-Highlights, sowie aktuelle Technik-Tools für Ihr Eigenheim.


FINDMYHOME.AT SUCHAGENTIN
SuchAgentin auf FindMyHome.at
Hallo, soll ich dir ähnliche Immobilien kostenfrei per E-Mail schicken?


ÄHNLICHE IMMOBILIEN
Aehnliche Immobilie - Vorschaubild 1

CANAVESE - Erstbezug 4-Zimmer-Gartenwohnung mit 2 Terrassen ... - Objektnr. 5605685

114,79 m² - 4.0 Zimmer
589600 €
PLZ: 1230

Mehr anzeigen

Aehnliche Immobilie - Vorschaubild 2

Komfortable 3-Zimmer-Wohnung mit Garten und separater Arbeit... - Objektnr. 5569136

102,33 m² - 3.5 Zimmer
696000 €
PLZ: 1230

Mehr anzeigen

Aehnliche Immobilie - Vorschaubild 3

ERSTBEZUG | DG-Terrassenwohnung mit 3 Zimmern | über 3m Raum... - Objektnr. 5561545

83,60 m² - 3.0 Zimmer
557907 €
PLZ: 1230

Mehr anzeigen

Durch die Nutzung unserer Seite erklären Sie sich mit der Verwendung von Cookies zur Verbesserung Ihres Online-Erlebnisses einverstanden. Detaillierte Informationen zu diesem und weiteren Themen erhalten Sie in unserer Datenschutzerklärung.