Exklusive Dachgeschoss-Maisonette- 4 Zimmer- 2 Terrassen - Objektnr. 5591092
ECKDATEN
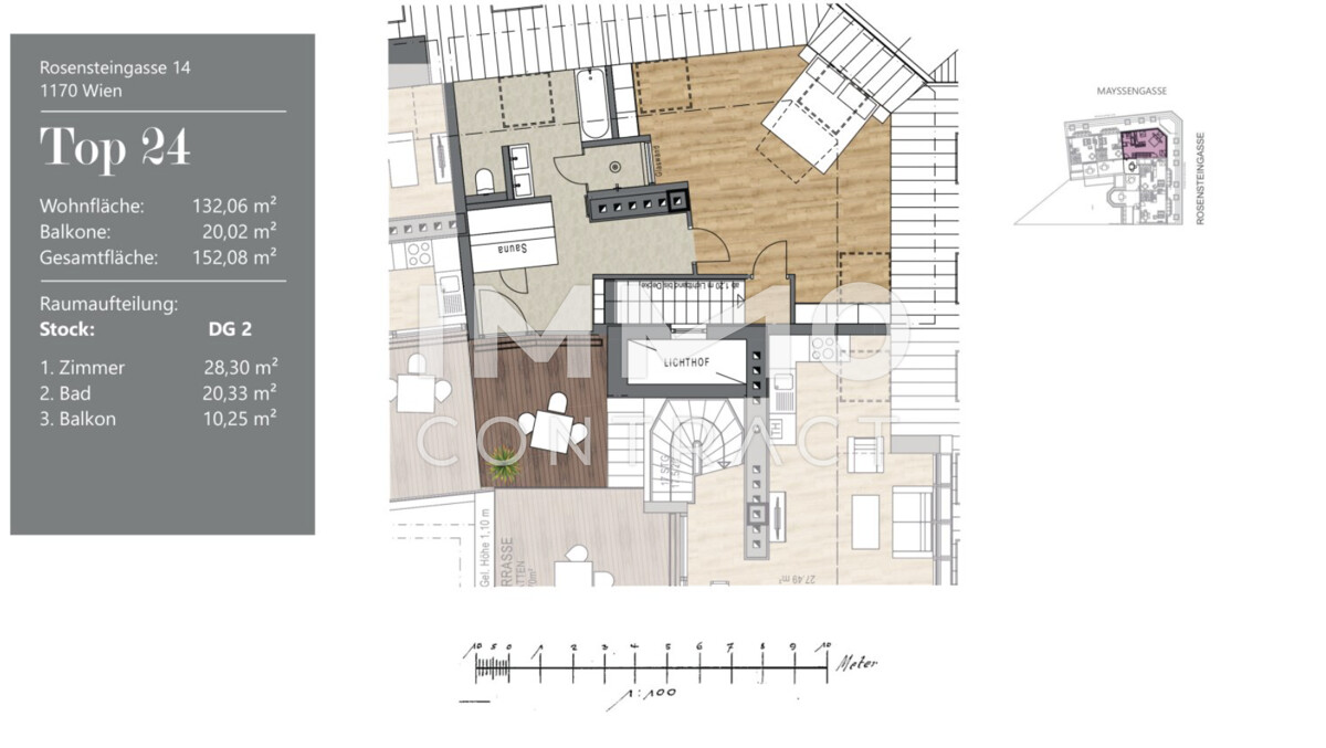
BESCHREIBUNG
KONTAKT
Lasse dich kostenlos vom Anbieter dieser Immobilie zurückrufen.
IMMOcontract Immobilien Vermittlung GmbH
Heidi Danninger
Heidi Danninger
Telefonnummer anzeigen
Telefon Allgemein: +436649639404
Bitte dem Makler die FindMyHome.at - ID bekanntgeben: 5591092
Bitte dem Makler die FindMyHome.at - ID bekanntgeben: 5591092
Bewertungen dieses Anbieters
Qualitätsmakler:
2016, 2018, 2020, 2021, 2023, 2024,
2016, 2018, 2020, 2021, 2023, 2024,
BEWERTUNGEN DIESES ANBIETERS
Qualitätsmakler
2016, 2018, 2020, 2021, 22/23, 2024
2016, 2018, 2020, 2021, 22/23, 2024
BESONDERS
FREUNDLICH
FREUNDLICH
FINDMYHOME.AT
NETIQUETTE
NETIQUETTE
Auch du kannst bewerten! 7 Tage nach deiner Anfrage erhältst du dafür von uns ein Bewertungsmail.
Alle Infos zu unseren Auszeichnungen und dem FINDMYHOME.AT Qualitätsprogramm findest du hier: Übersicht anzeigen
Alle Infos zu unseren Auszeichnungen und dem FINDMYHOME.AT Qualitätsprogramm findest du hier: Übersicht anzeigen
FINANZIERUNG
Du willst wissen, wie viel dein Umzug kosten wird?
Mach gleich den kostenlosen Preisvergleich und schau, welche seriösen Anbieter in deiner Region günstig deinen Umzug organisieren
ZUM UMZUGS-VERGLEICH

































