MEIN ERGEBNIS ANPASSEN

Großzügige 3 Zimmer in der Donaustadt - Lebensqualität inklusive! - Objektnr. 5573069


ökologisch beheizt
1220
Ort
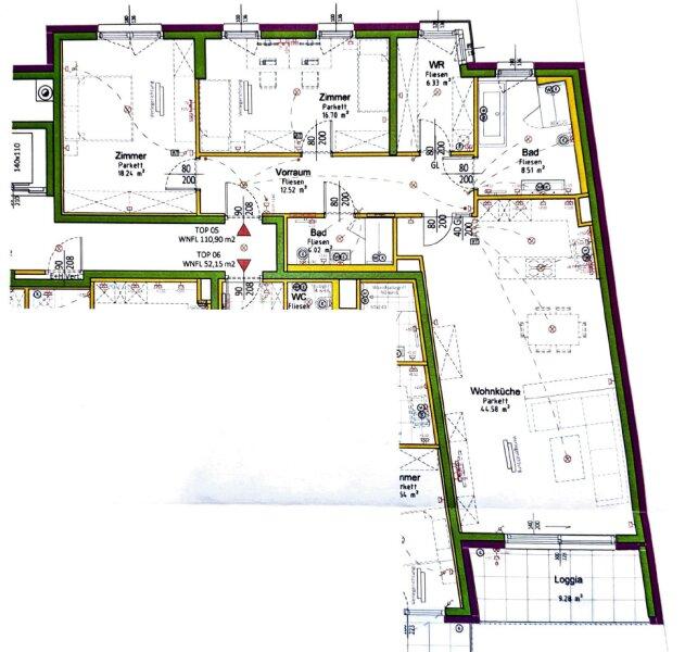
110,90 m²
Fläche

ECKDATEN
FindMyHome.at // Externe Immobilien-ID5573069 // 7191/230
ImmobilienartWohnung - Eigentum
Anschrift1220 Wien
Baujahr2018
Befeuerung
Fernwärme
Stock1
Fläche110,90 m²
Bad2
WC2
Kaufpreis:€ 599.000,00
Ratenzahlung:Finanzierungsmöglichkeiten für diese Immobilie anzeigen
Provision: 3% des Kaufpreises zzgl. 20% USt.







BESCHREIBUNG

Großzügige 3 Zimmer in der Donaustadt - Lebensqualität inklusive!

Willkommen in Ihrem neuen Zuhause in der Donaustadt!

 

Diese neuwertige Wohnung bietet Ihnen alles, was Sie sich für ein modernes und komfortables Wohnen wünschen. Mit einer großzügigen Wohnfläche von 110,9 m² und einer durchdachten Raumaufteilung werden Sie sich hier sofort wohlfühlen.

Die Wohnung befindet sich in der 1. Etage eines gepflegten, von Glorit errichteten,  Mehrfamilienhauses und überzeugt durch ihre Helligkeit und den durchdachten Grundriss. Der großzügige Wohnbereich ist der perfekte Ort, um entspannte Abende mit Familie und Freunden zu verbringen. Genießen Sie die Sonne auf Ihrem eigenen Südbalkon, der Ihnen nicht nur einen Platz zum verweilen, sondern auch einen idealen Ort für Ihre persönlichen Rückzugsmomente bietet.

Die moderne Einbauküche ist mit hochwertigen Miele - Geräten ausgestattet und lädt zum Kochen und Genießen ein. Hier können Sie Ihrer Kreativität freien Lauf lassen und kulinarische Köstlichkeiten zaubern. Zwei gut geschnittene Bäder, eines mit Badewanne und das andere mit Dusche, sowie zwei integrierte WCs sorgen für zusätzlichen Komfort und Flexibilität ideal für Familien und Gäste.

Die Fußbodenheizung und die zentrale Heizungsanlage garantieren ein angenehmes Raumklima zu jeder Jahreszeit. Ein Personenaufzug erleichtert den Zugang zu Ihrer Wohnung und sorgt für zusätzlichen Komfort.

Die Lage dieser Immobilie ist unschlagbar. In der näheren Umgebung finden Sie alles, was Sie für den täglichen Bedarf benötigen: Ärzte, Apotheken, Schulen, Kindergärten, Supermärkte und Bäckereien sind nur einen kurzen Spaziergang entfernt. Auch die Verkehrsanbindung ist hervorragend eine Bushaltestelle befindet sich in unmittelbarer Nähe, sodass Sie schnell und unkompliziert in die Innenstadt oder zu anderen wichtigen Punkten in Wien gelangen.

Diese Wohnung vereint modernen Wohnkomfort mit urbaner Lage und ist somit der perfekte Ort für Paare, Familien oder als Investition. Ein Kauf dieser Wohnung ist nicht nur eine Investition in Ihre Zukunft, sondern auch in Ihre Lebensqualität.

Zögern Sie nicht, sich diese Traumwohnung näher anzusehen. Vereinbaren Sie noch heute einen Besichtigungstermin und lassen Sie sich von dieser einzigartigen Immobilie begeistern! Ihr neues Zuhause in Wien wartet auf Sie.

 

Ihr Ansprechpartner:
Robert Holzmann, dipl. IM
Konzessionierter Immobilienmakler
Staatlich geprüfter Finanzierungsspezialist
+43 664 99 96 09 96

 


Infrastruktur / Entfernungen

Gesundheit
Arzt <500m
Apotheke <500m
Klinik <1.500m
Krankenhaus <2.500m

Kinder & Schulen
Schule <1.000m
Kindergarten <1.000m
Universität <1.500m
Höhere Schule <1.500m

Nahversorgung
Supermarkt <500m
Bäckerei <1.000m
Einkaufszentrum <4.000m

Sonstige
Geldautomat <500m
Bank <500m
Post <1.000m
Polizei <1.500m

Verkehr
Bus <500m
U-Bahn <1.500m
Straßenbahn <1.500m
Bahnhof <1.500m
Autobahnanschluss <3.500m

Angaben Entfernung Luftlinie / Quelle: OpenStreetMap

Kabel/SAT/TV: JA
Barrierefrei: JA
Provision: 3% des Kaufpreises zzgl. 20% USt.


Alle Details anzeigen

KONTAKT






 

Lasse dich kostenlos vom Anbieter dieser Immobilie zurückrufen.







 


 
Hillinger Immobilien GmbH
Robert Holzmann
Telefonnummer anzeigen Telefon Allgemein: +4366499960996
 
Bitte dem Makler die FindMyHome.at - ID bekanntgeben: 5573069

Bewertungen dieses Anbieters
Freundlichkeit
100 %

BEWERTUNGEN DIESES ANBIETERS

 
Weiterempfehlung
WIRD SEHR GERNE

Freundlichkeit
BESONDERS
FREUNDLICH
Auch du kannst bewerten! 7 Tage nach deiner Anfrage erhältst du dafür von uns ein Bewertungsmail.
Alle Infos zu unseren Auszeichnungen und dem FINDMYHOME.AT Qualitätsprogramm findest du hier: Übersicht anzeigen

FINANZIERUNG
?>

Du willst wissen, wie viel dein Umzug kosten wird?

Mach gleich den kostenlosen Preisvergleich und schau, welche seriösen Anbieter in deiner Region günstig deinen Umzug organisieren


ZUM UMZUGS-VERGLEICH
-->

MYHOME BLOG
SuchAgentin auf FindMyHome.at
Unterschiedlichen Rechtsthemen, köstliche Rezepte, neueste Design-Highlights, sowie aktuelle Technik-Tools für Ihr Eigenheim.


FINDMYHOME.AT SUCHAGENTIN
SuchAgentin auf FindMyHome.at
Hallo, soll ich dir ähnliche Immobilien kostenfrei per E-Mail schicken?


ÄHNLICHE IMMOBILIEN
Aehnliche Immobilie - Vorschaubild 1

Hof am Park - 4-Zimmer-Wohnung mit attraktiver West-Ausricht... - Objektnr. 5548390

103,10 m² - 4 Zimmer
598000 €
PLZ: 1220

Mehr anzeigen

Aehnliche Immobilie - Vorschaubild 2

Neuwertige Maisonette in 1220 Wien: 4 Zimmer, Balkon, Terras... - Objektnr. 5569317

89,53 m² - 4.0 Zimmer
590000 €
PLZ: 1220

Mehr anzeigen

Aehnliche Immobilie - Vorschaubild 3

++ DG-MAISONETTE mit WEITBLICK ++ im PROJEKT KARL74 ... - Objektnr. 5591825

107,46 m² - 4 Zimmer
660000 €
PLZ: 1220

Mehr anzeigen

Durch die Nutzung unserer Seite erklären Sie sich mit der Verwendung von Cookies zur Verbesserung Ihres Online-Erlebnisses einverstanden. Detaillierte Informationen zu diesem und weiteren Themen erhalten Sie in unserer Datenschutzerklärung.