MEIN ERGEBNIS ANPASSEN

BALKONWOHNUNG! 2-Zimmer Wohnung in 1210 Wien zu vermieten! - Objektnr. 5571300

1210
Ort
€ 931,62
Gesamtkosten
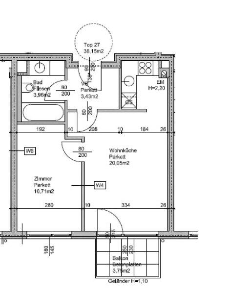
38,15 m²
Fläche
2.0
Zimmer

ECKDATEN
FindMyHome.at // Externe Immobilien-ID5571300 // 16086
ImmobilienartWohnung - Miete
Anschrift1210 Wien
Befeuerung
Stock2
Mietdauer5
Fläche38,15 m²
Zimmer2.0
Bad1
WC1
 Abstellraum
Brutto-Miete:€ 931,62
Betriebskosten (inkl. MwSt):€ 92,32
Mehrwertsteuer:€ 84,69
Monatliche Gesamtkosten:€ 931,62
Provision: Gemäß Erstauftraggeberprinzip bezahlt der Abgeber die Provision.




BESCHREIBUNG

BALKONWOHNUNG! 2-Zimmer Wohnung in 1210 Wien zu vermieten!

Moderne 2-Zimmer-Wohnung mit Balkon Brünner Straße 10, 1210 Wien

Zur Vermietung gelangt eine helle, modern ausgestattete 2-Zimmer-Wohnung mit einer Wohnfläche von rund 36,15 m² sowie einem Balkon mit ca. 3,75 m², gelegen im 2. Obergeschoss eines gepflegten Neubaus in der Brünner Straße 10.
Die Wohnung überzeugt durch ihre durchdachte Raumaufteilung, hochwertige Ausstattung und die ausgezeichnete Anbindung im beliebten Wiener Bezirk Floridsdorf.


Raumaufteilung

  • Vorraum (ca. 3,43 m²) zentral begehbar, mit Platz für Garderobe oder Kommode

  • Wohnküche (ca. 20,05 m²) großzügig gestaltet, mit moderner Einbauküche und ausreichend Platz für Wohn- und Essbereich

  • Schlafzimmer (ca. 10,71 m²) ruhig gelegen und gut möblierbar

  • Badezimmer (ca. 3,96 m²) mit Badewanne, Waschbecken, WC und Waschmaschinenanschluss

  • Balkon (ca. 3,75 m²) nach außen orientiert, ideal zum Entspannen an warmen Tagen

Diese Wohnung besticht durch ihre helle Atmosphäre, den klar strukturierten Grundriss und eignet sich perfekt für Singles oder Paare, die modernen Wohnkomfort mit urbaner Lage verbinden möchten.


Ausstattung

  • Hochwertige Einbauküche mit modernen Geräten

  • Parkettboden in Wohn- und Schlafbereich, Fliesen in den Nassräumen

  • Fußbodenheizung für angenehmes Raumklima

  • Moderne Fenster mit Wärmeschutzverglasung

  • Lift im Haus, barrierefreier Zugang

  • Effizienter Neubau-Standard mit geringem Energieverbrauch


Lage & Infrastruktur

Die Wohnung liegt in der Brünner Straße 10, einer verkehrsgünstigen und zugleich lebenswerten Lage im Herzen von Floridsdorf.
In der unmittelbaren Umgebung befinden sich zahlreiche Supermärkte (Billa, Hofer, Lidl), Apotheken, Ärzte, Restaurants, Cafés sowie das beliebte Shopping Center Nord.
Für Freizeit und Erholung sorgen die Donauinsel, der Floridsdorfer Wasserpark und die Alte Donau, die allesamt rasch erreichbar sind.


Öffentliche Verkehrsanbindung

Die Lage bietet eine hervorragende Anbindung an das öffentliche Verkehrsnetz:

  • Straßenbahnlinien 30 und 31 direkt vor der Haustür, mit schneller Verbindung zur U6 (Floridsdorf) und ins Stadtzentrum

  • Buslinien 30A, 36A, 36B mit Verbindung Richtung Strebersdorf, Leopoldau und Floridsdorf Bahnhof

  • Bahnhof Floridsdorf in wenigen Minuten erreichbar (U6, S-Bahn, Regionalzüge)

  • Rasche Anbindung an die A22 Donauuferautobahn und die B3 Richtung Innenstadt

Nebenkosten:

  • 3 Bruttomonatsmieten Kaution

Wir möchten Sie höflichst darauf hinweisen, dass der Mietvertrag jährlich an den Verbraucherpreisindex angepasst wird.

 

Maklervereinbarung: Wir ersuchen um Verständnis, dass wir bei Anfragen zur Objektadresse, bzw. Besichtigungstermin aufgrund neuer gesetzlicher Bestimmungen Unterlagen erst dann zusenden können, wenn Sie vorab bestätigen, dass Sie unser sofortiges Tätigwerden wünschen und über Ihre Rücktrittsrechte aufgeklärt wurden. Sie bekommen nach Ihrer schriftlichen Anfrage mit vollständiger Angabe des Namens, Anschrift und Telefonnummer ein Email, in dem Sie diese Punkte bestätigen müssen.


Haftungsausschluss: Wir weisen darauf hin, dass sämtliche Daten im vorliegenden Angebot sowie die von unserem Büro an Sie weitergegebenen Auskünfte, vom Eigentümer der Immobilie zur Verfügung gestellt wurden. Ebenso sind Informationen von Dritten (z.B. behördliche Informationen) eingeholt worden, auch für diese können wir unsererseits keinerlei Haftung für deren uneingeschränkte Richtigkeit übernehmen.

Wir weisen darauf hin, dass zwischen dem Vermittler und dem zu vermittelnden Dritten ein familiäres oder wirtschaftliches Naheverhältnis besteht.

Der Immobilienmakler erklärt, dass er entgegen dem in der Immobilienwirtschaft üblichen Geschäftsgebrauch des Doppelmaklers einseitig nur für den Vermieter tätig ist.

Barrierefrei: JA
Provision: Gemäß Erstauftraggeberprinzip bezahlt der Abgeber die Provision.


Alle Details anzeigen

KONTAKT






 

Lasse dich kostenlos vom Anbieter dieser Immobilie zurückrufen.







 


 
Moritz Immobilien
Nicolas Büttner
Telefonnummer anzeigen Handy Bearbeiter: +436606365858
 
Bitte dem Makler die FindMyHome.at - ID bekanntgeben: 5571300

Bewertungen dieses Anbieters
Netiquette

BEWERTUNGEN DIESES ANBIETERS

 
Netiquette
FINDMYHOME.AT
NETIQUETTE
Auch du kannst bewerten! 7 Tage nach deiner Anfrage erhältst du dafür von uns ein Bewertungsmail.
Alle Infos zu unseren Auszeichnungen und dem FINDMYHOME.AT Qualitätsprogramm findest du hier: Übersicht anzeigen


Du willst wissen, wie viel dein Umzug kosten wird?

Mach gleich den kostenlosen Preisvergleich und schau, welche seriösen Anbieter in deiner Region günstig deinen Umzug organisieren


ZUM UMZUGS-VERGLEICH
-->

MYHOME BLOG
SuchAgentin auf FindMyHome.at
Unterschiedlichen Rechtsthemen, köstliche Rezepte, neueste Design-Highlights, sowie aktuelle Technik-Tools für Ihr Eigenheim.


FINDMYHOME.AT SUCHAGENTIN
SuchAgentin auf FindMyHome.at
Hallo, soll ich dir ähnliche Immobilien kostenfrei per E-Mail schicken?


ÄHNLICHE IMMOBILIEN
Aehnliche Immobilie - Vorschaubild 1

GARTENWOHNUNG mit 2-Zimmer-Wohnung und Erdwärme - Objektnr. 5573222

42,45 m² - 2.0 Zimmer
970.6 €
PLZ: 1210

Mehr anzeigen

Aehnliche Immobilie - Vorschaubild 2

2-Zimmer Dachgeschoßwohnung mit großem Balkon! Nahe der Dona... - Objektnr. 5588012

44,40 m² - 2.0 Zimmer
979.19 €
PLZ: 1210

Mehr anzeigen

Aehnliche Immobilie - Vorschaubild 3

| ZWEI ZIMMER | WESTEN | IM GRÜNEN | BALKON | 3. STOCK | AM ... - Objektnr. 5557249

40,05 m² - 2.0 Zimmer
1102.3 €
PLZ: 1210

Mehr anzeigen

Durch die Nutzung unserer Seite erklären Sie sich mit der Verwendung von Cookies zur Verbesserung Ihres Online-Erlebnisses einverstanden. Detaillierte Informationen zu diesem und weiteren Themen erhalten Sie in unserer Datenschutzerklärung.