MEIN ERGEBNIS ANPASSEN

Gemütliche 2-Zimmer-Wohnung in 1210 Wien - Objektnr. 5594612

1210
Ort
€ 987,68
Gesamtkosten
44,45 m²
Fläche
2.0
Zimmer

ECKDATEN
FindMyHome.at // Externe Immobilien-ID5594612 // 16134
ImmobilienartWohnung - Miete
Anschrift1210 Wien
Befeuerung
Stock2
Mietdauer5
Fläche44,45 m²
Zimmer2.0
Bad1
WC1
 Abstellraum
Brutto-Miete:€ 987,68
Betriebskosten (inkl. MwSt):€ 107,57
Mehrwertsteuer:€ 89,79
Monatliche Gesamtkosten:€ 987,68
Provision: Gemäß Erstauftraggeberprinzip bezahlt der Abgeber die Provision.




BESCHREIBUNG

Gemütliche 2-Zimmer-Wohnung in 1210 Wien

Zeitgemäßer Wohnkomfort mit perfekter Anbindung 2-Zimmer-Wohnung in der Brünner Straße 10, 1210 Wien

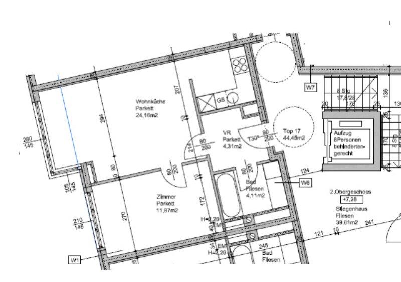
Zur Vermietung gelangt eine helle und effizient geschnittene 2-Zimmer-Wohnung mit ca. 44,45 m² Wohnfläche im 2. Obergeschoss eines gepflegten Neubaus in der Brünner Straße 10, 1210 Wien.

Die Wohnung überzeugt durch ihre moderne Ausstattung, einen optimal durchdachten Grundriss sowie ihre westliche Ausrichtung, die für ein angenehmes Tageslicht sorgt. Sie eignet sich ideal für Singles, Paare oder Berufspendler, die modernen Wohnkomfort mit ausgezeichneter Infrastruktur verbinden möchten.


Raumaufteilung

  • Vorraum (ca. 4,31 m²) zentral begehbar, mit Platz für Garderobe

  • Wohnküche (ca. 24,16 m²) großzügig gestaltet, mit moderner Einbauküche und ausreichend Raum für Wohn- und Essbereich

  • Schlafzimmer (ca. 11,57 m²) gut möblierbar und ruhig gelegen

  • Badezimmer (ca. 4,11 m²) mit Badewanne, Waschbecken und Waschmaschinenanschluss

  • Separates WC funktional vom Badezimmer getrennt

Der funktionale Grundriss ermöglicht eine optimale Nutzung der Wohnfläche und schafft ein angenehmes Raumgefühl.


Ausstattung

  • Hochwertiger Parkettboden in den Wohnräumen

  • Fliesen in den Nassbereichen

  • Moderne Einbauküche inklusive Geräten

  • Fußbodenheizung für angenehmes Wohnklima

  • Große Fensterflächen mit westlicher Ausrichtung

  • Barrierefreier Lift

  • Neubau-Standard mit effizienter Energieversorgung


Lage & Infrastruktur

Die Wohnung befindet sich in zentraler Lage im 21. Bezirk, direkt an der Brünner Straße einer der wichtigsten Verkehrs- und Geschäftsachsen von Floridsdorf.

In unmittelbarer Umgebung befinden sich zahlreiche Nahversorger wie Billa, Hofer und Lidl, Apotheken, Ärzte, Schulen, Kindergärten sowie Cafés und Restaurants. Das Shopping Center Nord bietet zusätzliche Einkaufsmöglichkeiten.

Für Erholung und Freizeit stehen der Floridsdorfer Wasserpark, die Alte Donau sowie die Donauinsel in kurzer Distanz zur Verfügung.


Öffentliche Verkehrsanbindung

Die Anbindung an das öffentliche Verkehrsnetz ist ausgezeichnet:

  • Straßenbahnlinien 30 und 31 direkte Verbindung zur U6 und in die Innenstadt

  • Buslinien 30A, 36A, 36B

  • Bahnhof Wien Floridsdorf mit U6, S-Bahn, Regionalzügen und Busverbindungen

Auch die A22 Donauuferautobahn sowie die B3 Richtung Zentrum sind rasch erreichbar.


Nebenkosten

  • 3 Bruttomonatsmieten Kaution

Indexierung: Der Mietvertrag wird jährlich an den Verbraucherpreisindex angepasst.

 

Kontakt
Für weitere Informationen oder zur Vereinbarung eines Besichtigungstermins kontaktieren Sie bitte
Frau Julia Koch persönlich unter +43 660 664 7444 oder per E-Mail an koch@moritz-immobilien.at.

Unser Büro erreichen Sie unter office@moritz-immobilien.at.

 

 

Maklervereinbarung: Wir ersuchen um Verständnis, dass wir bei Anfragen zur Objektadresse, bzw. Besichtigungstermin aufgrund neuer gesetzlicher Bestimmungen Unterlagen erst dann zusenden können, wenn Sie vorab bestätigen, dass Sie unser sofortiges Tätigwerden wünschen und über Ihre Rücktrittsrechte aufgeklärt wurden. Sie bekommen nach Ihrer schriftlichen Anfrage mit vollständiger Angabe des Namens, Anschrift und Telefonnummer ein Email, in dem Sie diese Punkte bestätigen müssen.


Haftungsausschluss: Wir weisen darauf hin, dass sämtliche Daten im vorliegenden Angebot sowie die von unserem Büro an Sie weitergegebenen Auskünfte, vom Eigentümer der Immobilie zur Verfügung gestellt wurden. Ebenso sind Informationen von Dritten (z.B. behördliche Informationen) eingeholt worden, auch für diese können wir unsererseits keinerlei Haftung für deren uneingeschränkte Richtigkeit übernehmen.

Wir weisen darauf hin, dass zwischen dem Vermittler und dem zu vermittelnden Dritten ein familiäres oder wirtschaftliches Naheverhältnis besteht.

Der Immobilienmakler erklärt, dass er entgegen dem in der Immobilienwirtschaft üblichen Geschäftsgebrauch des Doppelmaklers einseitig nur für den Vermieter tätig ist.

Barrierefrei: JA
Provision: Gemäß Erstauftraggeberprinzip bezahlt der Abgeber die Provision.


Alle Details anzeigen

KONTAKT






 

Lasse dich kostenlos vom Anbieter dieser Immobilie zurückrufen.







 


 
Moritz Immobilien
Julia Koch
Telefonnummer anzeigen Telefon Allgemein: +436606647444
 
Bitte dem Makler die FindMyHome.at - ID bekanntgeben: 5594612

Bewertungen dieses Anbieters
Netiquette
Freundlichkeit
100 %

BEWERTUNGEN DIESES ANBIETERS

 
Weiterempfehlung
WIRD SEHR GERNE

Freundlichkeit
BESONDERS
FREUNDLICH
Netiquette
FINDMYHOME
NETIQUETTE
Auch du kannst bewerten! 7 Tage nach deiner Anfrage erhältst du dafür von uns ein Bewertungsmail.
Alle Infos zu unseren Auszeichnungen und dem FINDMYHOME.AT Qualitätsprogramm findest du hier: Übersicht anzeigen


Du willst wissen, wie viel dein Umzug kosten wird?

Mach gleich den kostenlosen Preisvergleich und schau, welche seriösen Anbieter in deiner Region günstig deinen Umzug organisieren


ZUM UMZUGS-VERGLEICH
-->

MYHOME BLOG
SuchAgentin auf FindMyHome.at
Unterschiedlichen Rechtsthemen, köstliche Rezepte, neueste Design-Highlights, sowie aktuelle Technik-Tools für Ihr Eigenheim.


FINDMYHOME.AT SUCHAGENTIN
SuchAgentin auf FindMyHome.at
Hallo, soll ich dir ähnliche Immobilien kostenfrei per E-Mail schicken?


ÄHNLICHE IMMOBILIEN
Aehnliche Immobilie - Vorschaubild 1

Charmante 2-Zimmer-Wohnung in 1210 Wien mit Südbalkon und mo... - Objektnr. 5571300

38,15 m² - 2.0 Zimmer
931.62 €
PLZ: 1210

Mehr anzeigen

Aehnliche Immobilie - Vorschaubild 2

360° TOUR // TERRASSEN ERSTBEZUG WOHNUNG / FIRST LETTING BAL... - Objektnr. 5537052

43,79 m² - 2.0 Zimmer
960 €
PLZ: 1210

Mehr anzeigen

Aehnliche Immobilie - Vorschaubild 3

| ZWEI ZIMMER | WESTEN | IM GRÜNEN | BALKON | 3. STOCK | AM ... - Objektnr. 5557249

40,05 m² - 2.0 Zimmer
1102.3 €
PLZ: 1210

Mehr anzeigen

Durch die Nutzung unserer Seite erklären Sie sich mit der Verwendung von Cookies zur Verbesserung Ihres Online-Erlebnisses einverstanden. Detaillierte Informationen zu diesem und weiteren Themen erhalten Sie in unserer Datenschutzerklärung.