MEIN ERGEBNIS ANPASSEN

KTG 44, Nachhaltige Architektur trifft auf urbane Lebensqualität! - Objektnr. 5562832


ökologisch beheizt
virtuell besichtigen
1210
Ort
54,17 m²
Fläche
2.0
Zimmer
WEITERE MEDIEN

Virtuelle Rundgänge


ECKDATEN
FindMyHome.at // Externe Immobilien-ID5562832 // 18864
ImmobilienartWohnung - Eigentum
Anschrift1210 Wien
Baujahr2025
Befeuerung
Luftwärmepumpe
Stock1
Geschosse6
Fläche54,17 m²
Zimmer2.0
Bad1
WC1
Kaufpreis:€ 295.000,00
Ratenzahlung:Finanzierungsmöglichkeiten für diese Immobilie anzeigen
Provision: 3% des Kaufpreises zzgl. 20% USt.







BESCHREIBUNG

KTG 44, Nachhaltige Architektur trifft auf urbane Lebensqualität!

Perfekte Balance zwischen Ruhe und urbanem Leben Nachhaltig, komfortabel, zentral: Ihr neues Zuhause in der Kantnergasse!

Sie sind durch unser YouTube-Video auf dieses Objekt aufmerksam geworden Hier finden Sie alle weiteren Details zur Immobilie -  Zum Video auf YouTube

Das Wohnhaus in der Kantnergasse 44, 1210 Wien, ist ein modernes und hochwertiges Bauprojekt mit insgesamt 20 exklusiven Wohnungen sowie 11 Garagenstellplätzen. Die Architektur verbindet zeitgemäßes Design mit funktionaler Raumgestaltung und schafft eine harmonische Balance zwischen urbanem Wohnen und entspannter Lebensqualität. Besonders hervorzuheben ist die nachhaltige Energieversorgung des Gebäudes: Eine effiziente Luft- und Wasserwärmepumpe in Kombination mit einer Solaranlage sorgt für eine umweltfreundliche Beheizung und Warmwasseraufbereitung, wodurch Energiekosten gesenkt und Ressourcen geschont werden. Die Immobilie richtet sich an anspruchsvolle Käufer, die Wert auf Komfort, Qualität und eine ruhige, aber dennoch zentrale Wohnlage legen.

Lagebeschreibung

Das Wohnhaus befindet sich im dynamischen 21. Wiener Gemeindebezirk Floridsdorf, einer Gegend mit ausgezeichneter Infrastruktur, zahlreichen Grünflächen und hoher Familienfreundlichkeit. Dank der guten Anbindung an den öffentlichen Nahverkehr (U6-Station Floridsdorf sowie Straßenbahnen 30, 31 und Buslinien wie 30A, 31A, 32A) sind das Stadtzentrum und weitere Bezirke schnell erreichbar. Die nahegelegene Donauinsel bietet vielseitige Freizeitmöglichkeiten, von Sport über Erholung bis hin zu Gastronomieangeboten.

Die Kantnergasse liegt in einer ruhigen Wohngegend mit optimaler Nahversorgung. Supermärkte, Schulen, Kindergärten, Arztpraxen, Restaurants und Cafés befinden sich in unmittelbarer Nähe. Zudem ist das Donauzentrum, eines der größten Einkaufszentren Österreichs, in wenigen Minuten erreichbar. Durch die nahegelegene A22-Autobahn besteht eine schnelle Anbindung an das Umland Wiens, während zahlreiche Parks, wie der Nationalpark Donau-Auen, eine hohe Lebensqualität garantieren.

Das Wohnhaus umfasst 20 Wohneinheiten, verteilt auf das Erdgeschoss, drei Obergeschosse sowie zwei Dachgeschosse. Die Wohnungen bieten unterschiedliche Grundrisse und Größen, um verschiedenen Bedürfnissen gerecht zu werden, und variieren zwischen 41,31 m² und 83,31 m². Die Preise für die Wohnungen beginnen bei ca. € 245.000 und reichen bis ca. € 499.000. Jede Wohnung ist mit einer voll ausgestatteten Einbauküche versehen, die moderne Geräte umfasst. Einige Wohnungen verfügen über zusätzliche Flächen wie Balkone, Terrassen oder Gärten. Zudem ist jeder Wohnung ein Kellerabteil zugeordnet.

Garagenstellplätze

Im Kellergeschoss stehen 11 Garagenstellplätze zur Verfügung. Der Kaufpreis pro Stellplatz beträgt zwischen 27.000 €.

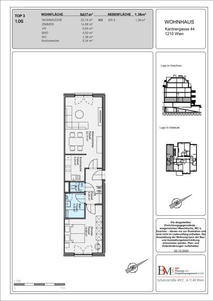
Eckdaten der Top 3: 

  • Kaufpreis € 295.000,00
  • 1. Obergeschoss
  • 54,17 m² Wohnfläche
  • 1,36 m² Keller ER 3

Ausstattung

Die hochwertige Ausstattung der Wohnungen umfasst moderne Materialien und energieeffiziente Technik. Ein besonderes Highlight ist die nachhaltige Luft- und Wasserwärmepumpe in Kombination mit einer Solaranlage, die für eine kostensparende und umweltfreundliche Beheizung sorgt. Weitere Details zu Fenstern, Beschattungssystemen und spezifischen Ausstattungsmerkmalen können individuell hinzugefügt werden.

Nebenkosten beim Kauf

  • 3,5% Grunderwerbsteuer
  • 1,1% Eintragungsgebühr, ausgenommen Befreiung bei Erfüllung der Voraussetzungen
  • 1,5% Vertragserrichtungskosten zuzüglich eventuell anfallender Barauslagen und 20% USt bei Rechtsanwalt Mag. Johann Galanda
  • 3% zzgl. 20% MwSt. Käuferprovision

Interesse geweckt

Kontaktieren Sie uns gerne für weitere Informationen oder eine Besichtigung.

  • Telefon: +43 699 1929 3025
  • E-Mail: anfragen@immoagency.at

Wir weisen darauf hin, dass zwischen dem Vermittler und dem zu vermittelnden Dritten ein familiäres oder wirtschaftliches Naheverhältnis besteht.

Der Vermittler ist als Doppelmakler tätig.

Kabel/SAT/TV: JA
Barrierefrei: JA
Provision: 3% des Kaufpreises zzgl. 20% USt.


Alle Details anzeigen

KONTAKT






 

Lasse dich kostenlos vom Anbieter dieser Immobilie zurückrufen.







 


 
IMMO AGENCY GmbH
IMMO AGENCY
Telefonnummer anzeigen Handy Bearbeiter: +4369919293025
 
Bitte dem Makler die FindMyHome.at - ID bekanntgeben: 5562832

Bewertungen dieses Anbieters
Qualitätsmakler
Qualitätsmakler:
2015, 2016, 2017, 2019, 2020, 2021, 2023 , 2024,
Netiquette
Freundlichkeit
75 %

BEWERTUNGEN DIESES ANBIETERS

 
Qualit�tsmakler
Qualitätsmakler
2015, 2016, 2017, 2019, 2020, 2021, 22/23 2024
Weiterempfehlung
WIRD GERNE

Freundlichkeit
BESONDERS
FREUNDLICH
Netiquette
FINDMYHOME
NETIQUETTE
Auch du kannst bewerten! 7 Tage nach deiner Anfrage erhältst du dafür von uns ein Bewertungsmail.
Alle Infos zu unseren Auszeichnungen und dem FINDMYHOME.AT Qualitätsprogramm findest du hier: Übersicht anzeigen

FINANZIERUNG
?>

Du willst wissen, wie viel dein Umzug kosten wird?

Mach gleich den kostenlosen Preisvergleich und schau, welche seriösen Anbieter in deiner Region günstig deinen Umzug organisieren


ZUM UMZUGS-VERGLEICH
-->

MYHOME BLOG
SuchAgentin auf FindMyHome.at
Unterschiedlichen Rechtsthemen, köstliche Rezepte, neueste Design-Highlights, sowie aktuelle Technik-Tools für Ihr Eigenheim.


FINDMYHOME.AT SUCHAGENTIN
SuchAgentin auf FindMyHome.at
Hallo, soll ich dir ähnliche Immobilien kostenfrei per E-Mail schicken?


ÄHNLICHE IMMOBILIEN
Aehnliche Immobilie - Vorschaubild 1

NordGlück - gut geschnittene 2-Zimmer Wohnung - Top 01-040... - Objektnr. 5548321

50,10 m² - 2 Zimmer
269000 €
PLZ: 1210

Mehr anzeigen

Aehnliche Immobilie - Vorschaubild 2

Helle Wohnung mit Balkon und Lebensqualität - Objektnr. 5549936

57,39 m²
330000 €
PLZ: 1210

Mehr anzeigen

Aehnliche Immobilie - Vorschaubild 3

Ihr Weg zum Eigenheim in den "Flori Flats"! - Objektnr. 5552921

43,83 m² - 2.0 Zimmer
266000 €
PLZ: 1210

Mehr anzeigen

Durch die Nutzung unserer Seite erklären Sie sich mit der Verwendung von Cookies zur Verbesserung Ihres Online-Erlebnisses einverstanden. Detaillierte Informationen zu diesem und weiteren Themen erhalten Sie in unserer Datenschutzerklärung.