MEIN ERGEBNIS ANPASSEN

Helle Wohnung mit Balkon und Lebensqualität - Objektnr. 5549936

virtuell besichtigen
1210
Ort
57,39 m²
Fläche
WEITERE MEDIEN

Virtuelle Rundgänge


ECKDATEN
FindMyHome.at // Externe Immobilien-ID5549936 // 60474
ImmobilienartWohnung - Eigentum
Anschrift1210 Wien
Baujahr2025
Stock2
Geschosse3
Fläche57,39 m²
Kaufpreis:€ 349.000,00
Ratenzahlung:Finanzierungsmöglichkeiten für diese Immobilie anzeigen
Provision: 3% des Kaufpreises zzgl. 20% USt.







BESCHREIBUNG

Helle Wohnung mit Balkon und Lebensqualität

Das Projekt umfasst die Errichtung einer modernen Wohnanlage mit insgesamt 12 Einheiten, die durch eine klare Architektur, hochwertige Bauweise und durchdachte Grundrisse überzeugen. Besonderes Augenmerk wurde auf großzügige Fensterflächen gelegt, die für helle Räume und eine angenehme Wohnatmosphäre sorgen. Jede Wohnung verfügt über private Freiflächen sei es ein Balkon, eine Terrasse oder ein Eigengarten , wodurch die Bewohner die Möglichkeit haben, ihren Wohnraum ins Freie zu erweitern und den Alltag mit einem Plus an Lebensqualität zu genießen.

Die Anlage bietet eine ideale Mischung aus urbanem Komfort und ruhigem Rückzugsort. Die Wohnungen sind so konzipiert, dass sie unterschiedliche Bedürfnisse abdecken: kompakte Einheiten für Singles und Paare ebenso wie familienfreundlichere Wohnungen mit mehr Platz. Alle zeichnen sich durch eine hochwertige Ausstattung, funktionale Raumaufteilung und ein modernes Wohngefühl aus.

Für Anleger eröffnet dieses Projekt eine attraktive Gelegenheit, in ein zukunftssicheres Immobilieninvestment zu investieren. Der Markt zeigt, dass in dieser Lage Nettomieten zwischen 13 und 15 Euro pro Quadratmeter realistisch erzielbar sind. Auf Basis dieser Mietniveaus können Bruttorenditen im Bereich von 3,5 bis 4 Prozent erwartet werden, womit sich das Projekt als solide und wertbeständige Kapitalanlage darstellt. Die stabile Nachfrage nach Wohnraum und die Kombination aus Freiflächen, zeitgemäßer Architektur und optimaler Größe der Einheiten schaffen beste Voraussetzungen für eine langfristig hohe Vermietbarkeit.

Die Wohnanlage ist somit nicht nur ein modernes Zuhause für künftige Bewohner, sondern auch ein nachhaltiges Investment mit attraktiven Erträgen. Die Verbindung von Qualität, Lebensgefühl und wirtschaftlicher Stabilität macht dieses Projekt zu einer Investition, die gleichermaßen Herz und Verstand anspricht.

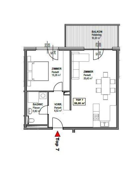
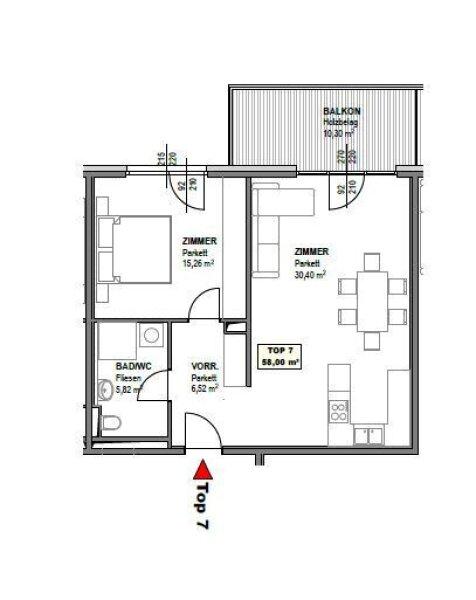
Auf rund 57 Quadratmetern Wohnfläche bietet diese Wohnung eine durchdachte Raumaufteilung mit zwei Zimmern, die durch große Fensterflächen stets lichtdurchflutet sind. Der Balkon mit über zehn Quadratmetern schafft zusätzlichen Wohnkomfort, ergänzt durch eine kleine Terrasse, die den Außenbereich abrundet. Hier lässt sich der Alltag wunderbar ins Freie verlagern sei es beim Frühstück im Sonnenschein oder bei einem Glas Wein am Abend. Die Wohnung eignet sich hervorragend für junge Paare oder Singles, die ein modernes, helles und zugleich gemütliches Zuhause suchen.


Infrastruktur / Entfernungen

Gesundheit
Arzt <1.000m
Apotheke <1.000m
Klinik <2.500m
Krankenhaus <1.500m

Kinder & Schulen
Schule <500m
Kindergarten <1.000m
Universität <500m
Höhere Schule <4.000m

Nahversorgung
Supermarkt <500m
Bäckerei <1.500m
Einkaufszentrum <2.500m

Sonstige
Bank <1.500m
Geldautomat <1.500m
Post <2.000m
Polizei <1.500m

Verkehr
Bus <500m
U-Bahn <2.000m
Straßenbahn <1.000m
Bahnhof <2.000m
Autobahnanschluss <3.000m

Angaben Entfernung Luftlinie / Quelle: OpenStreetMap

Provision: 3% des Kaufpreises zzgl. 20% USt.


Alle Details anzeigen

KONTAKT






 

Lasse dich kostenlos vom Anbieter dieser Immobilie zurückrufen.







 


 
AKKADIA Immobilienvermittlung GmbH
Josef Ahmed
Telefonnummer anzeigen Handy Bearbeiter: +436763476048
 
Bitte dem Makler die FindMyHome.at - ID bekanntgeben: 5549936

Bewertungen dieses Anbieters
Netiquette
Freundlichkeit

BEWERTUNGEN DIESES ANBIETERS

 
Freundlichkeit
BESONDERS
FREUNDLICH
Netiquette
FINDMYHOME
NETIQUETTE
Auch du kannst bewerten! 7 Tage nach deiner Anfrage erhältst du dafür von uns ein Bewertungsmail.
Alle Infos zu unseren Auszeichnungen und dem FINDMYHOME.AT Qualitätsprogramm findest du hier: Übersicht anzeigen

FINANZIERUNG
?>

Du willst wissen, wie viel dein Umzug kosten wird?

Mach gleich den kostenlosen Preisvergleich und schau, welche seriösen Anbieter in deiner Region günstig deinen Umzug organisieren


ZUM UMZUGS-VERGLEICH
-->

MYHOME BLOG
SuchAgentin auf FindMyHome.at
Unterschiedlichen Rechtsthemen, köstliche Rezepte, neueste Design-Highlights, sowie aktuelle Technik-Tools für Ihr Eigenheim.


FINDMYHOME.AT SUCHAGENTIN
SuchAgentin auf FindMyHome.at
Hallo, soll ich dir ähnliche Immobilien kostenfrei per E-Mail schicken?


ÄHNLICHE IMMOBILIEN
Aehnliche Immobilie - Vorschaubild 1

Hirschfeld - Ihr neues Zuhause im Grünen - besichtigen und e... - Objektnr. 5451025

46,00 m² - 2.0 Zimmer
289000 €
PLZ: 1210

Mehr anzeigen

Aehnliche Immobilie - Vorschaubild 2

NordGlück - Kompakte 3-Zimmer-Wohnung ideal aufgeteilt, zum ... - Objektnr. 5548355

62,16 m² - 3 Zimmer
348000 €
PLZ: 1210

Mehr anzeigen

Aehnliche Immobilie - Vorschaubild 3

Hirschfeld - Ihr neues Zuhause im Grünen - besichtigen und e... - Objektnr. 5451006

65,55 m² - 3.0 Zimmer
415000 €
PLZ: 1210

Mehr anzeigen

Durch die Nutzung unserer Seite erklären Sie sich mit der Verwendung von Cookies zur Verbesserung Ihres Online-Erlebnisses einverstanden. Detaillierte Informationen zu diesem und weiteren Themen erhalten Sie in unserer Datenschutzerklärung.