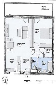
Moderne CITYGATE-Wohnung in U1-Nähe!!! Sensationelle 16,55m² Außenfläche!!! - Objektnr. 5549303
WEITERE MEDIEN
ECKDATEN
BESCHREIBUNG
KONTAKT
Lasse dich kostenlos vom Anbieter dieser Immobilie zurückrufen.
Hubner Immobilien GmbH
Kerstin Fried
Kerstin Fried
Telefonnummer anzeigen
Telefon Allgemein: +4315121956
Handy Bearbeiter: +4366488730881
Bitte dem Makler die FindMyHome.at - ID bekanntgeben: 5549303
Handy Bearbeiter: +4366488730881
Bitte dem Makler die FindMyHome.at - ID bekanntgeben: 5549303
Bewertungen dieses Anbieters
Qualitätsmakler:
2014, 2015, 2016, 2018, 2019, 2020, 2021 , 2025, 2026,
2014, 2015, 2016, 2018, 2019, 2020, 2021 , 2025, 2026,
84
%
BEWERTUNGEN DIESES ANBIETERS
UNSERE HALL OF FAME DER BESTEN ANBIETER
Qualitätsmakler
2014, 2015, 2016, 2018, 2019, 2020, 2021, 2025, 2026
2014, 2015, 2016, 2018, 2019, 2020, 2021, 2025, 2026
WIRD GERNE
WEITEREMPFOHLEN
WEITEREMPFOHLEN
BESONDERS
FREUNDLICH
FREUNDLICH
FINDMYHOME.AT
NETIQUETTE
NETIQUETTE
Auch du kannst bewerten! 7 Tage nach deiner Anfrage erhältst du dafür von uns ein Bewertungsmail.
Alle Infos zu unseren Auszeichnungen und dem FINDMYHOME.AT Qualitätsprogramm findest du hier: Übersicht anzeigen
Alle Infos zu unseren Auszeichnungen und dem FINDMYHOME.AT Qualitätsprogramm findest du hier: Übersicht anzeigen
FINANZIERUNG
Du willst wissen, wie viel dein Umzug kosten wird?
Mach gleich den kostenlosen Preisvergleich und schau, welche seriösen Anbieter in deiner Region günstig deinen Umzug organisieren
ZUM UMZUGS-VERGLEICH




























