MEIN ERGEBNIS ANPASSEN

WOHNATELIER SIEVERING - luxuriös Wohnen - Objektnr. 5436718

  • Innenhof
  • Spielplatz
  • Spielplatz
  • Zugänge zu den Stiegen/Häusern
  • Innenhof
  • Hauseigene Tiefgarage
1190
Ort
111,23 m²
Fläche
3.0
Zimmer

ECKDATEN
FindMyHome.at // Externe Immobilien-ID5436718 // 15674
ImmobilienartWohnung - Eigentum
AnschriftSieveringer Straße
1190 Wien
Baujahr1991
Befeuerung
Fläche111,23 m²
Terrassen2 (51,00 m²)
Zimmer3.0
Bad1
WC1
Kaufpreis:€ 725.000,00
Ratenzahlung:Finanzierungsmöglichkeiten für diese Immobilie anzeigen
Provision: 3% des Kaufpreises zzgl. 20% USt.







BESCHREIBUNG

WOHNATELIER SIEVERING - luxuriös Wohnen

"WOHNATELIER SIEVERING"

Wohnen, wo andere Urlaub machen.

 

Zwischen Weinbergen und Stadt, in absoluter Grünruhelage im 19. Bezirk von Wien stehen großzügige, hochwertig sanierte Eigentumswohnungen mit Freiflächen und Tiefgarage zum Verkauf.

Hier beginnt der Wienerwald praktisch vor der Haustür und direkt vor Ihrer Haustüre wartet ein Stück Wiener Filmgeschichte: Das Sieveringer Filmatelier wurde 1914 als Teil der Sascha-Filmfabrik errichtet. Das Originaltor der Wien-Film dient noch heute als Zugang zum Wohnatelier ein charmantes Detail, das Geschichte und Gegenwart verbindet.

 

Die Einheiten (größtenteils zwischen ca. 80 200 m²) überzeugen durch:

Großzügige Wohnflächen mit durchdachten Grundrissen
Balkon, Terrasse oder Eigengarten bei jeder Wohnung
Maisonette- und Penthouse-Varianten
Teilweise beeindruckender Fernblick Richtung Weinberge
Helle, lichtdurchflutete Räume
1 Tiefgaragenstellplatz im Kaufpreis inkludiert
Optionaler weiterer Stellplatz um EUR 27.500,- möglich

Ideal für Familien, Paare mit Homeoffice oder anspruchsvolle Eigennutzer mit Platzbedarf.

 

Infrastruktur & Mobilität 

Öffentliche Verkehrsmittel:
Direkt vor der Haustür verkehrt die Buslinie 39A, die Sie in ca. 15 Minuten zur U4-Station Heiligenstadt bringt mit direktem Zugang zu U-Bahn, S-Bahn und Regionalverkehr.

Von dort aus erreichen Sie zentrale Wiener Ziele bequem und schnell.

Bildung & Betreuung:
Supermarkt, Bäckerei, Apotheke, Cafés, Bank und weitere Nahversorger liegen in unmittelbarer Nähe.
Kindergärten, Volksschulen und weiterführende Schulen sind gut erreichbar ebenso wie internationale Bildungseinrichtungen wie die American International School Vienna, ein starkes Argument für internationale Familien.

 

Lage 

Die Sieveringer Straße zählt zu den begehrtesten Adressen in Döbling.

Nur wenige Minuten entfernt laden die Weinberge rund um den Cobenzl und den Kahlenberg zu Spaziergängen und Freizeitmomenten ein.
Im charmanten Grinzing finden Sie traditionelle Heurigenkultur und Naherholung unmittelbar um die Ecke.

 

Nebenkosten: 

Grundbucheintragung: 1,1% d.KP. 

Grunderwerbssteuer: 3,5% d.KP.

Maklerprovision: 3% d.KP. + 20% USt. 

Kaufvertragshonorar: 1,2% zzgl. Barauslagen und USt. | Die Errichtung und Durchführung des Kaufvertrages erfolgt durch die Kanzlei Tiefenthaler Gnesda Rechtsanwälte GmbH.

 

Maklervereinbarung: Wir ersuchen um Verständnis, dass wir bei Anfragen zur Objektadresse, bzw. Besichtigungstermin  aufgrund neuer gesetzlicher Bestimmungen Unterlagen erst dann zusenden können, wenn Sie vorab bestätigen, dass Sie unser sofortiges Tätigwerden wünschen und über Ihre Rücktrittsrechte aufgeklärt wurden. Sie bekommen nach Ihrer schriftlichen Anfrage mit vollständiger Angabe des Namens, Anschrift und Telefonnummer ein Email, in dem Sie diese Punkte bestätigen müssen.


Haftungsausschluss:  Wir weisen darauf hin, dass sämtliche Daten im vorliegenden Angebot sowie die von unserem Büro an Sie weitergegebenen Auskünfte, vom Eigentümer der Immobilie zur Verfügung gestellt wurden. Ebenso sind Informationen von Dritten (z.B. behördliche Informationen) eingeholt worden, auch für diese können wir unsererseits keinerlei Haftung für deren uneingeschränkte Richtigkeit übernehmen.

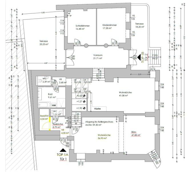
Wohnateliers Sievering - Zum Verkauf gelangt eine helle und gut aufgeteilte 3-Zimmer Wohnung mit geräumigem Außenbereich 

WOHNEN im ehemaligen HILL Restaurant

Die Liegenschaft besteht aus sechs exklusiven Wohnhäusern, welche 2021 komplett revitalisiert wurden. Diese bestehen aus unterschiedlich großen und zeitgemäß ausgestatteten Garten- und Terrassenwohnungen und können daher anspruchsvolle Bedürfnisse befriedigen.

Die Wohnung unterteilt sich wie folgt:

  • Eingangsbereich über welchen die großzügige Terrassenfläche erreicht werden kann
  • 2 Schlafzimmer
  • Großzügige Wohnküche
  • Separates WC
  • Badezimmer mit Doppelhandwaschbecken, Badewanne und Dusche

Die Wohnung bietet höchsten Wohnkomfort durch

  • Schöne hochwertige Parkettböden
  • Großzügiges Badezimmer 
  • Wundervolle Altbau Fenster 
  • Fußbodenheizung

Wohnanlage

An einem wundervollen Platz im noblen Döblinger Stadtteil liegt die einzigartige Liegenschaft eingebettet in einer malerischen Parkanlage.
Die modernen Baukörper begeistern mit minimalistischem und geradlinigem Design auf allen Ebenen.
Die perfekt angelegten Grundrisse sowie große Fenster, die das Sonnenlicht in die Wohnräume lassen und den Blick in die Natur ermöglichen,  bieten für die zukünftigen Bewohner ein außergewöhnliches Wohnerlebnis.

Der großzügige Park, der sich durch das Areal zieht, verfügt neben ruhigen Grünflächen mit angenehmen Sitzgelegenheiten zum Lesen und Entspannen auch über die Möglichkeit zum gesellschaftlichen Austausch mit der exklusiven Nachbarschaft. Die Anlage ist kinderfreundlich gestaltet und bietet diesen vielseitige Möglichkeiten sich alleine oder mit den Nachbarskindern im absolut sicheren Umfeld wenige Schritte von der eigenen Haustüre entfernt auszutoben. Über das jeweilige Stiegenhaus gelangen Sie komfortabel mit dem Lift in die Tiefgarage. Stellplätze können hier monatlich zu zusätzlich € 132 pro Monat angemietet werden. Die Liegenschaft erinnert architektonisch an die Sieveringer Filmateliers, welche 1914 dort errichtet und bis 1985 als Filmstudio genutzt wurden.
 

Lage

Die Wohnanlage ist in der Sieveringer Hauptstraße im noblen 19. Wiener Gemeindebezirk in eine ruhige Wohngegend eingebettet. In nur 15 Gehminuten oder 3 Busstationen erreichen Sie den Obkirchnermarkt, welcher ausgewählte und regionale Produkte anbietet. Ebenfalls befinden sich in diesem Grätzel auch weitere Nahversorger sowie Geschäfte des täglich Bedarfs. Neben traditionellen Heurigen und netten Cafés gibt es auch exquisite Küche wie z.B. beim Restaurant Eckel oder gut bürgerliche Speisen beim Robert´s Alt Sievering . Kindergärten und Volksschulen befinden sich in einem Umkreis von 4-15 Gehminuten, auch Gymnasien sowie die American International School sind nicht weit entfernt. Durch die öffentliche Anbindung sind Sie in ca. 15 Minuten mit dem Bus in Heiligenstadt und können von dort mit der U-Bahn oder Schnellbahn weiterfahren. Der beliebte Kahlenberg mit den bekanntesten Ausflugszielen wie "Am Himmel, " Cobenzl" oder "Kahlenberger Aussichtsterrasse" ist nicht weit von Ihrer Tür entfernt und das Döblinger Bad sowie Krapfenwaldbad sind in ca. 8 Minuten mit dem Auto erreichbar.
 

Öffentliche Verkehrsmittel

Bus: 39A verbindet Sie nach 4 Stationen mit der Straßenbahn 38 und der Schnellbahnstation Oberdöbling
 

Nebenkosten: 

Grundbucheintragung: 1,1% des Kaufpreises

Grunderwerbssteuer: 3,5% des Kaufpreises

Maklerprovision: 3% des Kaufpreises + 20% USt. 

Kaufvertragshonorar: 1,2% des Kaufpreises zzgl. USt und Barauslagen I Kaufvertragserstellung erfolgt durch die Kanzlei Tiefenthaler & Gnesda Rechtsanwälte

 

Maklervereinbarung: Wir ersuchen um Verständnis, dass wir bei Anfragen zur Objektadresse, bzw. Besichtigungstermin  aufgrund neuer gesetzlicher Bestimmungen Unterlagen erst dann zusenden können, wenn Sie vorab bestätigen, dass Sie unser sofortiges Tätigwerden wünschen und über Ihre Rücktrittsrechte aufgeklärt wurden. Sie bekommen nach Ihrer schriftlichen Anfrage mit vollständiger Angabe des Namens, Anschrift und Telefonnummer ein Email, in dem Sie diese Punkte bestätigen müssen.

 

Haftungsausschluss:  Wir weisen darauf hin, dass sämtliche Daten im vorliegenden Angebot sowie die von unserem Büro an Sie weitergegebenen Auskünfte, vom Eigentümer der Immobilie zur Verfügung gestellt wurden. Ebenso sind Informationen von Dritten (z.B. behördliche Informationen) eingeholt worden, auch für diese können wir unsererseits keinerlei Haftung für deren uneingeschränkte Richtigkeit übernehmen.

Wir weisen darauf hin, dass zwischen dem Vermittler und dem zu vermittelnden Dritten ein familiäres oder wirtschaftliches Naheverhältnis besteht.

Der Vermittler ist als Doppelmakler tätig.


Infrastruktur / Entfernungen

Gesundheit
Arzt <250m
Apotheke <1.000m
Klinik <1.750m
Krankenhaus <1.750m

Kinder & Schulen
Schule <500m
Kindergarten <500m
Universität <1.500m
Höhere Schule <1.500m

Nahversorgung
Supermarkt <750m
Bäckerei <500m
Einkaufszentrum <3.250m

Sonstige
Geldautomat <750m
Bank <750m
Post <1.500m
Polizei <1.000m

Verkehr
Bus <250m
U-Bahn <3.000m
Straßenbahn <1.250m
Bahnhof <1.750m
Autobahnanschluss <3.250m

Angaben Entfernung Luftlinie / Quelle: OpenStreetMap

Objekt ist für eine Wohngemeinschaft geeignet
Provision: 3% des Kaufpreises zzgl. 20% USt.


Alle Details anzeigen

KONTAKT






 

Lasse dich kostenlos vom Anbieter dieser Immobilie zurückrufen.







 


 
Moritz Immobilien
Anita Ochsenhofer
Telefonnummer anzeigen Telefon Allgemein: +4319971693
Handy Bearbeiter: +436607413324
 
Bitte dem Makler die FindMyHome.at - ID bekanntgeben: 5436718

Bewertungen dieses Anbieters
Netiquette
Freundlichkeit
100 %

BEWERTUNGEN DIESES ANBIETERS

 
Weiterempfehlung
WIRD SEHR GERNE

Freundlichkeit
BESONDERS
FREUNDLICH
Netiquette
FINDMYHOME
NETIQUETTE
Auch du kannst bewerten! 7 Tage nach deiner Anfrage erhältst du dafür von uns ein Bewertungsmail.
Alle Infos zu unseren Auszeichnungen und dem FINDMYHOME.AT Qualitätsprogramm findest du hier: Übersicht anzeigen

FINANZIERUNG
?>

Du willst wissen, wie viel dein Umzug kosten wird?

Mach gleich den kostenlosen Preisvergleich und schau, welche seriösen Anbieter in deiner Region günstig deinen Umzug organisieren


ZUM UMZUGS-VERGLEICH
-->

MYHOME BLOG
SuchAgentin auf FindMyHome.at
Unterschiedlichen Rechtsthemen, köstliche Rezepte, neueste Design-Highlights, sowie aktuelle Technik-Tools für Ihr Eigenheim.


FINDMYHOME.AT SUCHAGENTIN
SuchAgentin auf FindMyHome.at
Hallo, soll ich dir ähnliche Immobilien kostenfrei per E-Mail schicken?


ÄHNLICHE IMMOBILIEN
Aehnliche Immobilie - Vorschaubild 1

Familienfreundliche 5-Zimmer-Wohnung mit Balkon & Gartenmitb... - Objektnr. 5612671

128,88 m² - 5.0 Zimmer
720000 €
PLZ: 1190

Mehr anzeigen

Aehnliche Immobilie - Vorschaubild 2

Top sanierte Altbauwohnung in ausgezeichneter Lage... - Objektnr. 5523821

117,06 m² - 3 Zimmer
699000 €
PLZ: 1190

Mehr anzeigen

Aehnliche Immobilie - Vorschaubild 3

SONNENDURCHFLUTETE DACHGESCHOSS MAISONETTE MIT TERRASSE IM B... - Objektnr. 5578027

106,88 m² - 4.0 Zimmer
650000 €
PLZ: 1190

Mehr anzeigen

Durch die Nutzung unserer Seite erklären Sie sich mit der Verwendung von Cookies zur Verbesserung Ihres Online-Erlebnisses einverstanden. Detaillierte Informationen zu diesem und weiteren Themen erhalten Sie in unserer Datenschutzerklärung.