MEIN ERGEBNIS ANPASSEN

Investieren, wo Nachfrage wächst - Objektnr. 5660363

2340
Ort
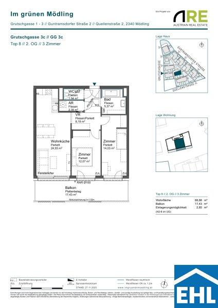
68,88 m²
Fläche
3.0
Zimmer
WEITERE MEDIEN

ECKDATEN
FindMyHome.at // Externe Immobilien-ID5660363 // 92418
ImmobilienartAnlage-Vorsorgewohnung - Eigentum
AnschriftGrutschgasse 3c/8
2340 Mödling
Baujahr2026
Stock2
Fläche68,88 m²
Zimmer3.0
Bad1
WC1
 Abstellraum
Kaufpreis:€ 420.080,00
Ratenzahlung:Finanzierungsmöglichkeiten für diese Immobilie anzeigen
Provision: Provision bezahlt der Abgeber.







BESCHREIBUNG

Investieren, wo Nachfrage wächst

Anlegerinvestment in Mödling mit nachhaltiger Perspektive

Mit der Wohnhausanlage Am Fliegenspitz in Mödling entsteht südlich von Wien ein hochwertiges Wohnprojekt in einer der gefragtesten Wohnlagen des Wiener Umlands. Die ruhige, grüne Umgebung bei gleichzeitig ausgezeichneter Anbindung schafft ideale Voraussetzungen für eine stabile Nachfrage und langfristige Wertentwicklung ein attraktives Fundament für eine nachhaltige Anlegerinvestition.

Das Projekt umfasst zehn moderne Baukörper mit drei bis vier Geschossen und insgesamt 116 schlüsselfertige Wohnungen mit 1 bis 5 Zimmern. Private Eigengärten, Balkone oder Terrassen sowie zwei belagsfertige Praxisräumlichkeiten erhöhen die Nutzungsvielfalt und Vermietbarkeit. Ein barrierefreies Erschließungskonzept, Einlagerungsräume zu jeder Wohneinheit und 177 Stellplätze im Untergeschoß sichern eine zeitgemäße, marktorientierte Ausstattung.

Großzügige Grün- und Freibereiche sowie Kinderspielplätze steigern die Wohnqualität nachhaltig und sprechen eine breite Zielgruppe an. Am Fliegenspitz in Mödling positioniert sich damit als zukunftssichere Wohnanlage mit klarer Ausrichtung auf langfristige Erträge, Wertstabilität und Vorsorge

 

In der hauseigenen Tiefgarage stehen Stellplätze zum Ankauf zur Verfügung.

 

Das Projekt

  • 116 Eigentums- und Vorsorgewohnungen mit 1 bis 5 Zimmern
  • Wohnungsgrößen von ca. 31 bis 130 m²
  • Private Freiflächen wie Gärten, Balkone oder Terrassen
  • Einlagerungsräume im Unter- und Dachgeschoß
  • 2 Praxisräumlichkeiten (belagsfertige Ausführung/Edelrohbau)
  • 177 Kfz-Stellplätze in der Tiefgarage
  • Ziegelmauerwerk mit integriertem Dämmstoff kombiniert mit Stahlbeton
  • Gemeinschaftliche Freibereiche wie Gärten und Kinderspielplätze
  • Kinderwagen- und Fahrradabstellräume

 

Die Ausstattung

  • Heizung und Warmwasser mittels Kombination aus Geothermie und Fernwärme
  • Wärmeabgabe bzw. Temperierung im Sommer über Bauteilaktivierung
  • Vorrüstung Klimaanlagen für Dachgeschoßwohnungen
  • PV-Anlage
  • Kunststoff-/Alufenster mit 3-fach-Verglasung
  • Beschattung mittels elektrisch betriebener Außenraffstores
  • Weitzer Parkett, Eiche Kaschmir in den Wohnräumen
  • Feinsteinzeug Cerabella Bari in den Nassräumen
  • Hochwertige Sanitärausstattung

 

Die Lage

Im grünen Mödling vereinen sich Natur, Stadtleben und Lebensqualität auf besondere Weise. Eine ausgezeichnete Infrastruktur vor Ort bietet alles, was den Alltag angenehm und unkompliziert macht. Gleichzeitig lädt der angrenzende Wienerwald mit vielfältigen Freizeit-, Kultur- und Naturangeboten zur Erholung ein. Dank der sehr guten Anbindung sowie der Nähe zu Bahnhof und Autobahn ist Wien in rund 45 Minuten bequem erreichbar.

Die Mödlinger Innenstadt liegt nur 510 Minuten mit dem Rad, Auto oder Bus entfernt und ist auch fußläufig in etwa 1015 Minuten erreichbar, der Bahnhof in ca. 20 Minuten.

Als ehemaliger Sitz der Babenberger überzeugt Mödling mit einem lebendigen Mix aus Geschichte, Kultur und urbanem Leben. Entlang der charmanten Hauptstraße finden sich zahlreiche Nahversorger, Fachärzte, Bäcker, Restaurants, Cafés, Geschäfte, Fitnessstudios, Banken und Museen alles, was das tägliche Leben bereichert.

Buslinien

  • Linie 1 (Bahnhof Prießnitztal)
  • Linie 3 (Bahnhof WIFI/Mödlinger Zentrum)
  • Linie 263 (Bahnhof Guntramsdorf)

Ganz in der Nähe der Anlage befindet sich ein weiteres Projekt Grüne Stadtvillen in dem wir ebenso Eigentums- sowie Vorsorgewohnungen anbieten. Für nähere Informationen hierfür stehen wir selbstverständlich auch gerne zur Verfügung.

 

 

Kaufpreise der Vorsorgewohnungen

von EUR 212.710,00,- bis EUR 885.550,00,- netto zzgl. 20% USt.

Zu erwartender Mietertrag

von ca. EUR 13,50 bis EUR 15,50 netto/m²

Provisionsfrei für den Käufer
Fertigstellung: Ende 2026

Bei diesem Angebot handelt es sich um eine Vorsorgewohnung, die zu Vermietungszwecken erworben wird. Der angegebene Kaufpreis versteht sich daher zzgl. 20% USt. Diese Daten sind vorbehaltlich möglicher Änderungen.

Einen detaillierteren Einblick finden Sie auf unserer EHL-Projekthomepage!

Wir weisen darauf hin, dass zwischen dem Vermittler und dem zu vermittelnden Dritten ein familiäres oder wirtschaftliches Naheverhältnis besteht.

Der Vermittler ist als Doppelmakler tätig.


Infrastruktur / Entfernungen

Gesundheit
Arzt <650m
Apotheke <250m
Klinik <700m
Krankenhaus <1.650m

Kinder & Schulen
Schule <250m
Kindergarten <250m
Höhere Schule <325m

Nahversorgung
Supermarkt <175m
Bäckerei <1.175m
Einkaufszentrum <1.300m

Sonstige
Bank <825m
Geldautomat <825m
Post <825m
Polizei <1.050m

Verkehr
Bus <50m
U-Bahn <6.225m
Bahnhof <1.250m
Autobahnanschluss <3.400m
Straßenbahn <3.725m

Angaben Entfernung Luftlinie / Quelle: OpenStreetMap

Klimaanlage: JA
Barrierefrei: JA
Provision: Provision bezahlt der Abgeber.


Alle Details anzeigen

KONTAKT






 

Lasse dich kostenlos vom Anbieter dieser Immobilie zurückrufen.







 


 
EHL Wohnen GmbH
Andrea PÖCHHACKER; MSc
Telefonnummer anzeigen Telefon Allgemein: +4315127690411
Handy Bearbeiter: +436648373481
 
Bitte dem Makler die FindMyHome.at - ID bekanntgeben: 5660363

Bewertungen dieses Anbieters
Qualitätsmakler
Qualitätsmakler:
Netiquette
Freundlichkeit
82 %

BEWERTUNGEN DIESES ANBIETERS

 
Qualitätsmakler
UNSERE HALL OF FAME DER BESTEN ANBIETER
Qualit�tsmakler
Qualitätsmakler
2012, 2013, 2014, 2015, 2016, 2017, 2018, 2019, 2020, 2021, 22/23, 2024, 2025, 2026
Weiterempfehlung
WIRD GERNE

Freundlichkeit
BESONDERS
FREUNDLICH
Netiquette
FINDMYHOME
NETIQUETTE
Auch du kannst bewerten! 7 Tage nach deiner Anfrage erhältst du dafür von uns ein Bewertungsmail.
Alle Infos zu unseren Auszeichnungen und dem FINDMYHOME.AT Qualitätsprogramm findest du hier: Übersicht anzeigen

FINANZIERUNG
?>

Du willst wissen, wie viel dein Umzug kosten wird?

Mach gleich den kostenlosen Preisvergleich und schau, welche seriösen Anbieter in deiner Region günstig deinen Umzug organisieren


ZUM UMZUGS-VERGLEICH
-->

MYHOME BLOG
SuchAgentin auf FindMyHome.at
Unterschiedlichen Rechtsthemen, köstliche Rezepte, neueste Design-Highlights, sowie aktuelle Technik-Tools für Ihr Eigenheim.


FINDMYHOME.AT SUCHAGENTIN
SuchAgentin auf FindMyHome.at
Hallo, soll ich dir ähnliche Immobilien kostenfrei per E-Mail schicken?


ÄHNLICHE IMMOBILIEN
Aehnliche Immobilie - Vorschaubild 1

Stadtvillen Mödling. Stabil. Nachhaltig. - Objektnr. 5651926


76,39 m² - 3.0 Zimmer
491992 €
PLZ: 2340

Mehr anzeigen

Aehnliche Immobilie - Vorschaubild 2

Kapitalanlage mit Zukunftsperspektive - Objektnr. 5660426


65,53 m² - 3.0 Zimmer
404950 €
PLZ: 2340

Mehr anzeigen

Aehnliche Immobilie - Vorschaubild 3

Zukunftssicheres Anlegerprojekt südlich von Wien - Objektnr. 5660374

72,01 m² - 3.0 Zimmer
435210 €
PLZ: 2340

Mehr anzeigen

Durch die Nutzung unserer Seite erklären Sie sich mit der Verwendung von Cookies zur Verbesserung Ihres Online-Erlebnisses einverstanden. Detaillierte Informationen zu diesem und weiteren Themen erhalten Sie in unserer Datenschutzerklärung.