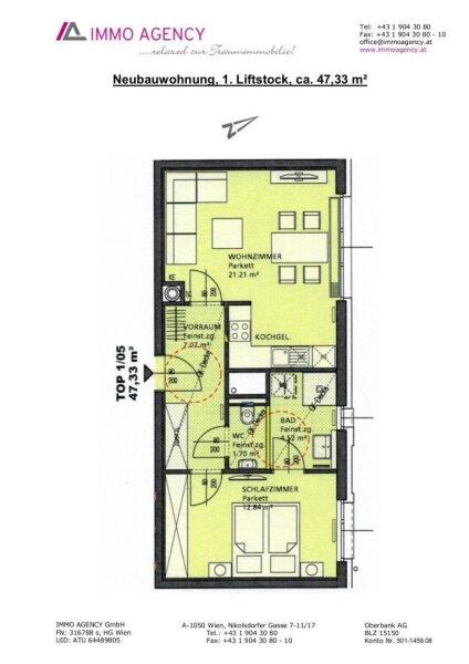
Moderne 2 Zimmer Single-und Pärchenwohnung - Objektnr. 5660073
ECKDATEN
BESCHREIBUNG
KONTAKT
Lasse dich kostenlos vom Anbieter dieser Immobilie zurückrufen.
IMMO AGENCY GmbH
Daniel Egger
Daniel Egger
Telefonnummer anzeigen
Handy Bearbeiter: +4369914144954
Bitte dem Makler die FindMyHome.at - ID bekanntgeben: 5660073
Bitte dem Makler die FindMyHome.at - ID bekanntgeben: 5660073
Bewertungen dieses Anbieters
Qualitätsmakler:
2015, 2016, 2017, 2019, 2020, 2021, 2023 , 2024, 2026,
2015, 2016, 2017, 2019, 2020, 2021, 2023 , 2024, 2026,
76
%
BEWERTUNGEN DIESES ANBIETERS
UNSERE HALL OF FAME DER BESTEN ANBIETER
Qualitätsmakler
2015, 2016, 2017, 2019, 2020, 2021, 22/23, 2024, 2026
2015, 2016, 2017, 2019, 2020, 2021, 22/23, 2024, 2026
WIRD GERNE
WEITEREMPFOHLEN
WEITEREMPFOHLEN
BESONDERS
FREUNDLICH
FREUNDLICH
FINDMYHOME.AT
NETIQUETTE
NETIQUETTE
Auch du kannst bewerten! 7 Tage nach deiner Anfrage erhältst du dafür von uns ein Bewertungsmail.
Alle Infos zu unseren Auszeichnungen und dem FINDMYHOME.AT Qualitätsprogramm findest du hier: Übersicht anzeigen
Alle Infos zu unseren Auszeichnungen und dem FINDMYHOME.AT Qualitätsprogramm findest du hier: Übersicht anzeigen
Du willst wissen, wie viel dein Umzug kosten wird?
Mach gleich den kostenlosen Preisvergleich und schau, welche seriösen Anbieter in deiner Region günstig deinen Umzug organisieren
ZUM UMZUGS-VERGLEICH

























