MEIN ERGEBNIS ANPASSEN

Einzigartiges Grundstück mit genehmigtem Bauprojekt in Ruhelage, Nähe Wachau - Objektnr. 5660008

3500
Ort
1.093,00 m²
Fläche

ECKDATEN
FindMyHome.at // Externe Immobilien-ID5660008 // 4141
ImmobilienartGrundstück - Eigentum
Anschrift3500 Krems an der Donau
Fläche930,99 m²
Grundfläche1.093,00 m²
Kaufpreis:€ 3.800.000,00
Ratenzahlung:Finanzierungsmöglichkeiten für diese Immobilie anzeigen
Provision: 3% des Kaufpreises zzgl. 20% USt.







BESCHREIBUNG

Einzigartiges Grundstück mit genehmigtem Bauprojekt in Ruhelage, Nähe Wachau

Im Falle der Notwendigkeit einer Fremdfinanzierung Ihrer Wunschimmobilie ermittelt unser Wohnbau-Finanzierungsexperte gerne die optimale Finanzierungslösung und findet das passende Zins- und Konditionsangebot für Sie. Er vergleicht die aktuellen Angebote aller relevanten Banken und Bausparkassen. Der Angebotsvergleich kann aus einem Portfolio von über 120 Banken erfolgen. Das Erstgespräch ist für Sie kostenfrei und unverbindlich, gerne auch bei Ihnen vor Ort. So sparen Sie Ihre wertvolle Zeit und erhalten eine professionelle und unabhängige Finanzierungslösung vom Spezialisten. Sprechen Sie uns wegen eines Termins gerne an!

 

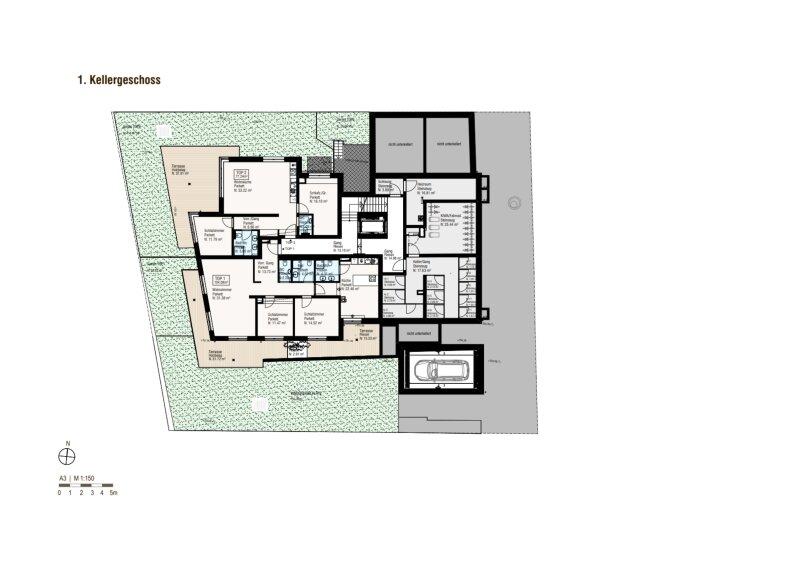
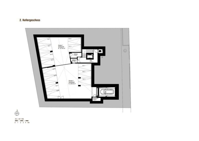
Zum Verkauf gelangt ein Grundstück samt Bauprojekt und fertiger Planung in Krems, Niederösterreich.

Auf einer Grundstücksfläche von ca. 1.100 m2 wurde der Bau eines Gebäudes mit insgesamt 11 Wohneinheiten und einer Tiefgarage mit 13 PWK Abstellplätzen genehmigt. Die gesamte Liegenschaft hat nach Fertigstellung eine Wohnnutzfläche von knapp 931 m2 und eine Gesamtgartenfläche von ca. 382 m2 mit einem eigenen Kinderspielplatz. Es entstehen 4 Wohnetagen und 1 Tiefgeschoß. Die Größe der Wohnungen variiert von ca. 60 m2 bis hin zu knapp 150 m2. Bei den beiden Wohnungen der untersten Etage ist ein Garten vorgesehen, ebenso hat Top 3, die sich einen Stock oberhalb befindet, einen Zugang zu dem eigenen Garten über die Terrasse. Alle Wohneinheiten haben eine Freifläche, mindestens 2 Zimmer und ein separates WC. Alle Wohnungen haben einen atemberaubenden Blick auf die Weingärten und Stift Göttweig.

Das Grundstück befindet sich in einer ausgezeichneten Lage in mitten der Weinberge. Die Umgebung ist von atemberaubender Natur umgeben, die zu Spaziergängen, Wanderungen und Radtouren für Klein und Groß einlädt. Die Weinbaugegend Wachau ist nur wenige Autominuten entfernt, welche durch die kleinen Heurigen und die Landschaft verzaubert. Geschäfte des täglichen Bedarfs, wie Supermärkte, Banken, Ärzte und Restaurants sind fußläufig zu erreichen. Auch kulturell hat die fünftgrößte Stadt Niederösterreichs einiges zu bieten, ebenso gilt Krems auch als Schul- und Universitätsstadt. Mit dem Auto gelangen Sie in knapp 45 Minuten nach Wien, aber auch die Bahnverbindungen sind ausgezeichnet.

Gerne lassen wir Ihnen bei ernsthaftem Interesse - vor Kaufanbotlegung - weitere vertraulichen Dokumente zu dieser Liegenschaft zukommen, welche nicht veröffentlicht werden dürfen.

Überzeugen Sie sich selbst von diesem überaus attraktiven Objekt. Für Besichtigungen und nähere Informationen stehen wir Ihnen gerne zur Verfügung!

Mag. Viola Wasmuth
national - Tel: 0670 4039361
international - Tel: +43 670 4039361
e-mail:

 

 

Wir weisen darauf hin, dass zwischen dem Vermittler und dem zu vermittelnden Dritten ein familiäres oder wirtschaftliches Naheverhältnis besteht.

Der Vermittler ist als Doppelmakler tätig.

 

 


Infrastruktur / Entfernungen

Gesundheit
Arzt <1.000m
Apotheke <1.000m
Klinik <1.500m
Krankenhaus <1.000m

Kinder & Schulen
Schule <1.000m
Kindergarten <1.000m
Universität <1.000m
Höhere Schule <1.500m

Nahversorgung
Supermarkt <1.000m
Bäckerei <1.000m
Einkaufszentrum <1.500m

Sonstige
Geldautomat <1.000m
Bank <1.000m
Post <1.500m
Polizei <1.000m

Verkehr
Bus <500m
Autobahnanschluss <1.500m
Bahnhof <1.500m
Flughafen <4.000m

Angaben Entfernung Luftlinie / Quelle: OpenStreetMap

Provision: 3% des Kaufpreises zzgl. 20% USt.


Alle Details anzeigen

KONTAKT






 

Lasse dich kostenlos vom Anbieter dieser Immobilie zurückrufen.







 


 
IM Lifestyle Properties GmbH
Viola Wasmuth
Telefonnummer anzeigen Telefon Allgemein: +4315121484
Handy Bearbeiter: +436704039361
 
Bitte dem Makler die FindMyHome.at - ID bekanntgeben: 5660008

Bewertungen dieses Anbieters
Qualitätsmakler
Qualitätsmakler:
2019, 2023,
Netiquette
Freundlichkeit

BEWERTUNGEN DIESES ANBIETERS

 
Qualit�tsmakler
Qualitätsmakler
2019, 22/23
Freundlichkeit
BESONDERS
FREUNDLICH
Netiquette
FINDMYHOME
NETIQUETTE
Auch du kannst bewerten! 7 Tage nach deiner Anfrage erhältst du dafür von uns ein Bewertungsmail.
Alle Infos zu unseren Auszeichnungen und dem FINDMYHOME.AT Qualitätsprogramm findest du hier: Übersicht anzeigen

FINANZIERUNG
?>

Du willst wissen, wie viel dein Umzug kosten wird?

Mach gleich den kostenlosen Preisvergleich und schau, welche seriösen Anbieter in deiner Region günstig deinen Umzug organisieren


ZUM UMZUGS-VERGLEICH
-->

MYHOME BLOG
SuchAgentin auf FindMyHome.at
Unterschiedlichen Rechtsthemen, köstliche Rezepte, neueste Design-Highlights, sowie aktuelle Technik-Tools für Ihr Eigenheim.


FINDMYHOME.AT SUCHAGENTIN
SuchAgentin auf FindMyHome.at
Hallo, soll ich dir ähnliche Immobilien kostenfrei per E-Mail schicken?


Durch die Nutzung unserer Seite erklären Sie sich mit der Verwendung von Cookies zur Verbesserung Ihres Online-Erlebnisses einverstanden. Detaillierte Informationen zu diesem und weiteren Themen erhalten Sie in unserer Datenschutzerklärung.