MEIN ERGEBNIS ANPASSEN

Vorsorgewohnungen Atzgersdorf kaufen - Objektnr. 5659803

1230
Ort
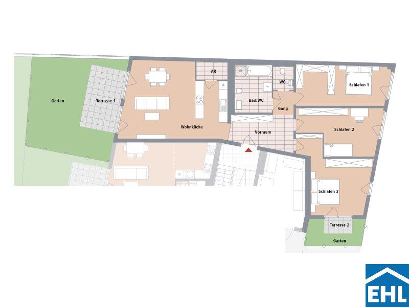
111,58 m²
Fläche
4.0
Zimmer
WEITERE MEDIEN

ECKDATEN
FindMyHome.at // Externe Immobilien-ID5659803 // 92854
ImmobilienartAnlage-Vorsorgewohnung - Eigentum
AnschriftCanavesegasse 4/2
1230 Wien
Baujahr2028
Fläche111,58 m²
Terrassen2 (13,00 m²)
Zimmer4.0
Bad1
WC1
 Abstellraum
Kaufpreis:€ 531.200,00
Ratenzahlung:Finanzierungsmöglichkeiten für diese Immobilie anzeigen
Provision: Provision bezahlt der Abgeber.







BESCHREIBUNG

Vorsorgewohnungen Atzgersdorf kaufen

Smart investieren. Urban leben lassen. Zukunft bauen.

Sie suchen kein beliebiges Wohnprojekt, sondern ein Investment mit Charakter, Substanz und langfristigem Potenzial Dann lohnt sich ein genauer Blick auf die Canavesegasse 4 in Wien-Liesing.

Hier entsteht ein modernes Neubauprojekt, das genau dort ansetzt, wo nachhaltige Nachfrage, urbane Lebensqualität und durchdachte Architektur zusammenkommen. Ruhig gelegen, im Herzen von Atzgersdorf einem Stadtteil, der seinen gewachsenen Charme bewahrt und gleichzeitig stark von der Entwicklung des 23. Bezirks profitiert.

 

Ein Projekt, das der Markt will

Geplant sind zwei kompakte Baukörper mit insgesamt 18 Eigentums- und Vorsorgewohnungen, ergänzt durch 4 Büro- bzw. Ordinationseinheiten. Diese Kombination sorgt für zusätzliche Belebung und macht das Projekt vielseitig und stabil aufgestellt.

Die Wohnungsgrößen von 42 m² bis 115 m² treffen exakt den Nerv des Marktes ideal für Singles, Paare, Familien oder anspruchsvolle Mieter. Jede Einheit verfügt über private Freiflächen in Form von Garten, Balkon oder Terrasse ein klares Plus in der Vermietung.

 

Komfort, der sich rechnet

  • Tiefgarage mit 20 PKW- und 2 Motorradstellplätzen
  • Fahrradabstellraum
  • Eigenes Kellerabteil pro Wohnung

Diese Basics sind heute kein Nice-to-have mehr, sondern ein entscheidender Faktor für Wertstabilität und Nachfrage.

 

Moderne Ausstattung. Nachhaltig gedacht.

  • Fußbodenheizung über Fernwärme
  • Photovoltaikanlage
  • Hochwertige Eichenparkettböden
  • Qualitative Sanitärausstattung
  • 3-fach-verglaste Fenster
  • Außenliegender Sonnenschutz

Ein Setup, das Betriebskosten optimiert, den Wohnkomfort erhöht und dein Investment zukunftssicher macht.

Lage mit Entwicklungspotenzial

Atzgersdorf ist ruhig, grün und trotzdem bestens angebunden. Der historische Ortskern liegt praktisch vor der Haustür, Nahversorgung, Schulen und Erholungsräume sind schnell erreichbar.

Öffentlich top angebunden.

  • S-Bahn S2, S3, S4 Richtung Floridsdorf oder Wiener Neustadt
  • Buslinien 6A, 58A, 58B zur U4 Hietzing
  • 60A, 66A zu wichtigen Verkehrsknotenpunkten

Genau diese Mischung sorgt für konstante Nachfrage heute und morgen.

Warum das für Sie spannend ist

  • Provisionsfreier Kauf
  • Neubau mit geplanter Fertigstellung Ende 2027 / Anfang 2028
  • Hohe Vermietbarkeit durch Lage, Ausstattung und Grundrisse
  • Ideal für Vorsorge, Vermietung oder langfristigen Vermögensaufbau

 

Kaufpreise der Vorsorgewohnungen

von EUR 239.000,- bis EUR 578.400,00,- netto zzgl. 20% USt.


Zu erwartender Mietertrag
von ca. EUR 16,50 bis EUR 18,00 netto/m²


Provisionsfrei für den Käufer
Fertigstellung: Ende 2027/Anfang 2028

Bei diesem Angebot handelt es sich um eine Vorsorgewohnung, die zu Vermietungszwecken erworben wird. Der angegebene Kaufpreis versteht sich daher zzgl. 20% USt. Diese Daten sind vorbehaltlich möglicher Änderungen.

 

 

 

 

Wir weisen darauf hin, dass zwischen dem Vermittler und dem zu vermittelnden Dritten ein familiäres oder wirtschaftliches Naheverhältnis besteht.


Infrastruktur / Entfernungen

Gesundheit
Arzt <700m
Apotheke <225m
Klinik <475m
Krankenhaus <1.675m

Kinder & Schulen
Schule <125m
Kindergarten <250m
Universität <4.600m
Höhere Schule <4.500m

Nahversorgung
Supermarkt <200m
Bäckerei <200m
Einkaufszentrum <1.575m

Sonstige
Geldautomat <225m
Bank <200m
Post <1.550m
Polizei <1.550m

Verkehr
Bus <50m
U-Bahn <1.750m
Straßenbahn <1.775m
Bahnhof <375m
Autobahnanschluss <2.325m

Angaben Entfernung Luftlinie / Quelle: OpenStreetMap

Provision: Provision bezahlt der Abgeber.


Alle Details anzeigen

KONTAKT






 

Lasse dich kostenlos vom Anbieter dieser Immobilie zurückrufen.







 


 
EHL Wohnen GmbH
Andrea PÖCHHACKER; MSc
Telefonnummer anzeigen Telefon Allgemein: +4315127690411
Handy Bearbeiter: +436648373481
 
Bitte dem Makler die FindMyHome.at - ID bekanntgeben: 5659803

Bewertungen dieses Anbieters
Qualitätsmakler
Qualitätsmakler:
Netiquette
Freundlichkeit
82 %

BEWERTUNGEN DIESES ANBIETERS

 
Qualitätsmakler
UNSERE HALL OF FAME DER BESTEN ANBIETER
Qualit�tsmakler
Qualitätsmakler
2012, 2013, 2014, 2015, 2016, 2017, 2018, 2019, 2020, 2021, 22/23, 2024, 2025, 2026
Weiterempfehlung
WIRD GERNE

Freundlichkeit
BESONDERS
FREUNDLICH
Netiquette
FINDMYHOME
NETIQUETTE
Auch du kannst bewerten! 7 Tage nach deiner Anfrage erhältst du dafür von uns ein Bewertungsmail.
Alle Infos zu unseren Auszeichnungen und dem FINDMYHOME.AT Qualitätsprogramm findest du hier: Übersicht anzeigen

FINANZIERUNG
?>

Du willst wissen, wie viel dein Umzug kosten wird?

Mach gleich den kostenlosen Preisvergleich und schau, welche seriösen Anbieter in deiner Region günstig deinen Umzug organisieren


ZUM UMZUGS-VERGLEICH
-->

MYHOME BLOG
SuchAgentin auf FindMyHome.at
Unterschiedlichen Rechtsthemen, köstliche Rezepte, neueste Design-Highlights, sowie aktuelle Technik-Tools für Ihr Eigenheim.


FINDMYHOME.AT SUCHAGENTIN
SuchAgentin auf FindMyHome.at
Hallo, soll ich dir ähnliche Immobilien kostenfrei per E-Mail schicken?


ÄHNLICHE IMMOBILIEN
Aehnliche Immobilie - Vorschaubild 1

Nachhaltige Vorsorgewohnungen in Atzgersdorf kaufen... - Objektnr. 5659798

109,61 m² - 2.0 Zimmer
578400 €
PLZ: 1230

Mehr anzeigen

Aehnliche Immobilie - Vorschaubild 2

Kurze Wege, grüne Umgebung - die ideale Vorsorge-Lage von LI... - Objektnr. 5659856

116,89 m² - 5.0 Zimmer
629100 €
PLZ: 1230

Mehr anzeigen

Aehnliche Immobilie - Vorschaubild 3

Exklusivität in Grün mit Perspektive: Die besondere Atmosphä... - Objektnr. 5659855

116,59 m² - 5.0 Zimmer
629100 €
PLZ: 1230

Mehr anzeigen

Durch die Nutzung unserer Seite erklären Sie sich mit der Verwendung von Cookies zur Verbesserung Ihres Online-Erlebnisses einverstanden. Detaillierte Informationen zu diesem und weiteren Themen erhalten Sie in unserer Datenschutzerklärung.