MEIN ERGEBNIS ANPASSEN

Geförderte 2-Zimmerwohnung - Objektnr. 5659144

3691
Ort
€ 304,05
Gesamtkosten
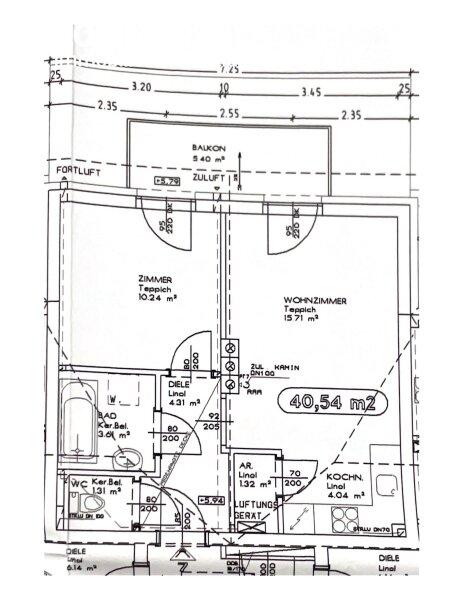
40,54 m²
Fläche
2.0
Zimmer

ECKDATEN
FindMyHome.at // Externe Immobilien-ID5659144 // 3632
ImmobilienartWohnung - Miete
Anschrift3691 Nöchling
Baujahr2007
Stock2
Geschosse3
Mietdauerunbefristet
Fläche40,54 m²
Zimmer2.0
Bad1
WC1
Brutto-Miete:€ 304,05
Monatliche Gesamtkosten:€ 304,05
Provision: Gemäß Erstauftraggeberprinzip bezahlt der Abgeber die Provision.




BESCHREIBUNG

Geförderte 2-Zimmerwohnung

Ihr Rückzugsort in Nöchling geförderte 2-Zimmer-Wohnung mit eigenem Badeteich

Stellen Sie sich vor, Sie öffnen Ihre Tür und haben direkt einen idyllischen Badeteich vor Augen Ruhe, Natur und Entspannung inklusive. Genau das bietet Ihnen diese charmante 2-Zimmer-Wohnung mitten im wunderschönen Nöchling. Mit rund 41 m² Wohnfläche ist sie perfekt für Singles oder Paare, die das Leben in vollen Zügen genießen möchten.

Das helle Wohnzimmer öffnet sich zum Balkon, von dem Sie den Blick ins Grüne und auf den Badeteich schweifen lassen können ideal für gemütliche Morgenstunden, einen Kaffee in der Sonne oder entspannte Abende. Das moderne Badezimmer mit Dusche sowie das separat angelegte WC runden das zeitgemäße Wohngefühl ab.

Ein Kellerabteil und ein Autoabstellplatz sind bereits inkludiert. Kindergarten, Schule und Einkaufsmöglichkeiten sind bequem erreichbar. Die Umgebung lädt mit traumhaften Wanderwegen ein, den Alltag hinter sich zu lassen und die Natur zu erleben.

Details auf einen Blick:

  • Bezug: ab sofort
  • Mietdauer: unbefristet, 1 Jahr Kündigungsverzicht, 3 Monate Kündigungsfrist danach
  • Einmaliger Finanzierungsbeitrag: € 7.861,01
  • Miete inkl. BK & USt.: € 304,05
  • Warmwasser & Heizung: € 24,61/Monat

Tauchen Sie ein in ein Wohngefühl, das Natur, Komfort und Lebensqualität perfekt verbindet vereinbaren Sie noch heute Ihre Besichtigung und lassen Sie sich verzaubern!

Noch nichts gefunden Wir informieren Sie über geeignete Immobilienangebote noch vor allen anderen.
Legen Sie jetzt Ihren individuellen Suchagenten unter folgendem Link an. Wir schicken Ihnen passende Immobilien exklusiv vorab zu.
Suchagent anlegen - https://s-commerz-immobilienvermittlung.service.immo/registrieren/de

Wir weisen darauf hin, dass zwischen dem Vermittler und dem zu vermittelnden Dritten ein wirtschaftliches Naheverhältnis mit gesellschaftlicher Verflechtung besteht.


Infrastruktur / Entfernungen

Gesundheit
Arzt <6.000m
Apotheke <9.000m
Krankenhaus <9.000m

Kinder & Schulen
Schule <1.000m
Kindergarten <500m

Nahversorgung
Supermarkt <500m
Bäckerei <500m
Einkaufszentrum <10.000m

Sonstige
Bank <6.000m
Geldautomat <6.000m
Post <500m
Polizei <9.500m

Verkehr
Bus <500m
Bahnhof <3.000m

Angaben Entfernung Luftlinie / Quelle: OpenStreetMap

Provision: Gemäß Erstauftraggeberprinzip bezahlt der Abgeber die Provision.


Alle Details anzeigen

KONTAKT






 

Lasse dich kostenlos vom Anbieter dieser Immobilie zurückrufen.







 


 
S-COMMERZ Immobilienvermittlung GmbH
Karin LOCSMANDI
Telefonnummer anzeigen Telefon Allgemein: +4350100672791
Handy Bearbeiter: +436648389815
 
Bitte dem Makler die FindMyHome.at - ID bekanntgeben: 5659144

Bewertungen dieses Anbieters
Qualitätsmakler
Qualitätsmakler:
2018, 2019, 2020,
Netiquette
Freundlichkeit

BEWERTUNGEN DIESES ANBIETERS

 
Qualit�tsmakler
Qualitätsmakler
2018, 2019, 2020
Freundlichkeit
BESONDERS
FREUNDLICH
Netiquette
FINDMYHOME
NETIQUETTE
Auch du kannst bewerten! 7 Tage nach deiner Anfrage erhältst du dafür von uns ein Bewertungsmail.
Alle Infos zu unseren Auszeichnungen und dem FINDMYHOME.AT Qualitätsprogramm findest du hier: Übersicht anzeigen


Du willst wissen, wie viel dein Umzug kosten wird?

Mach gleich den kostenlosen Preisvergleich und schau, welche seriösen Anbieter in deiner Region günstig deinen Umzug organisieren


ZUM UMZUGS-VERGLEICH
-->

MYHOME BLOG
SuchAgentin auf FindMyHome.at
Unterschiedlichen Rechtsthemen, köstliche Rezepte, neueste Design-Highlights, sowie aktuelle Technik-Tools für Ihr Eigenheim.


FINDMYHOME.AT SUCHAGENTIN
SuchAgentin auf FindMyHome.at
Hallo, soll ich dir ähnliche Immobilien kostenfrei per E-Mail schicken?


Durch die Nutzung unserer Seite erklären Sie sich mit der Verwendung von Cookies zur Verbesserung Ihres Online-Erlebnisses einverstanden. Detaillierte Informationen zu diesem und weiteren Themen erhalten Sie in unserer Datenschutzerklärung.