MEIN ERGEBNIS ANPASSEN

top gepflegte ETW mit schöner Aussicht und großem Balkon zum FRÜHLINGSPREIS! - Objektnr. 5657901

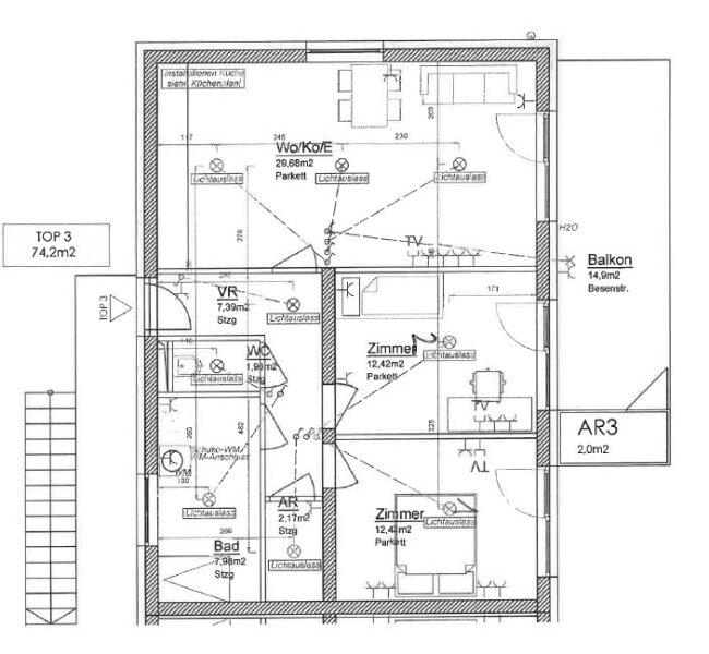
  • Grundriss
8753
Ort
73,76 m²
Fläche
3.0
Zimmer

ECKDATEN
FindMyHome.at // Externe Immobilien-ID5657901 // 11832
ImmobilienartWohnung - Eigentum
Anschrift8753 Fohnsdorf
Baujahr2021
Stock1
Beziehbar ab2026-06-01
Zimmer3.0
Bad1
WC1
Kaufpreis:€ 169.000,00
Ratenzahlung:Finanzierungsmöglichkeiten für diese Immobilie anzeigen
Provision: 6.084,00 ? inkl. 20% USt.







BESCHREIBUNG

top gepflegte ETW mit schöner Aussicht und großem Balkon zum FRÜHLINGSPREIS!

Ihr neues Zuhause wartet - attraktive 3-Zimmer-Eigentumswohnung in naturnaher Lage!

Wohnen, wo Lebensqualität spürbar wird!

Die Eigentumswohnung verbindet modernen Wohnkomfort mit einer ruhigen, naturnahen Umgebung nur wenige Schritte von der Therme Aqualux entfernt. Die kleine, persönliche Hausgemeinschaft mit lediglich drei Parteien sorgt zusätzlich für ein angenehmes und privates Wohngefühl.

Der helle, großzügige Wohnbereich bildet das Herzstück der Wohnung und lädt zum Entspannen ein. Ein hochwertiger Kaminofen (7 kW) schafft nicht nur eine besonders behagliche Atmosphäre, sondern bietet mit integrierter Herdplatte auch ein Plus an Unabhängigkeit ideal in Zeiten steigender Energieunsicherheit.

Die stilvolle Einbauküche vom Tischler (Leiner Judenburg) überzeugt durch Qualität, Funktionalität und zeitloses Design. Auch das Badezimmer ist hochwertig ausgestattet. Küche, Badezimmermöbel sowie der Kaminofen sind bereits im Kaufpreis inkludiert und machen dieses Angebot besonders attraktiv.

Ein weiteres Highlight ist der Balkon mit idyllischem Grünblick perfekt, um Ruhe zu genießen und den Alltag hinter sich zu lassen.

Zwei separat begehbare Zimmer bieten flexible Nutzungsmöglichkeiten, ob als Schlafzimmer, Homeoffice oder Kinderzimmer. Das Tageslichtbad mit Badewanne rundet das komfortable Raumangebot ab.

Zusätzliche Pluspunkte:

  • Ausreichend Parkmöglichkeiten
  • Gute Infrastruktur mit Einkaufsmöglichkeiten, Schulen und Freizeitangeboten in der Nähe
  • Öffentliche Verkehrsanbindung in unmittelbarer Umgebung

Diese Wohnung überzeugt nicht nur durch ihre Lage und Ausstattung, sondern auch durch ein hohes Maß an Wohnqualität, Sicherheit und Individualität.

Vereinbaren Sie noch heute einen kostenlosen und unverbindlichen Besichtigungstermin wir freuen uns auf Ihre Anfrage!

 

BITTE BEACHTEN SIE, DASS WIR AUFGRUND DER NACHWEISPFLICHT GEGENÜBER DEM EIGENTÜMER NUR ANFRAGEN MIT VOLLSTÄNDIGER ANGABE DER ANSCHRIFT BEARBEITEN KÖNNEN. 

Der Vermittler ist als Doppelmakler tätig.


Infrastruktur / Entfernungen

Gesundheit
Arzt <1.500m
Apotheke <1.500m
Krankenhaus <4.000m

Kinder & Schulen
Schule <2.500m
Kindergarten <3.500m

Nahversorgung
Supermarkt <1.500m
Bäckerei <1.500m
Einkaufszentrum <6.500m

Sonstige
Bank <1.500m
Geldautomat <2.000m
Post <2.000m
Polizei <1.500m

Verkehr
Bus <500m
Autobahnanschluss <2.000m
Bahnhof <3.000m
Flughafen <6.000m

Angaben Entfernung Luftlinie / Quelle: OpenStreetMap

Provision: 6.084,00 ? inkl. 20% USt.


Alle Details anzeigen

KONTAKT






 

Lasse dich kostenlos vom Anbieter dieser Immobilie zurückrufen.







 


 
Bischof Immobilien Ges.m.b.H
Beate Rinner
Telefonnummer anzeigen Telefon Allgemein: +43357286882
Handy Bearbeiter: +436643433497
 
Bitte dem Makler die FindMyHome.at - ID bekanntgeben: 5657901

Bewertungen dieses Anbieters
Qualitätsmakler
Qualitätsmakler:
2026,
Netiquette
Freundlichkeit

BEWERTUNGEN DIESES ANBIETERS

 
Qualitätsmakler
UNSERE HALL OF FAME DER BESTEN ANBIETER
Qualit�tsmakler
Qualitätsmakler
2026
Freundlichkeit
BESONDERS
FREUNDLICH
Netiquette
FINDMYHOME
NETIQUETTE
Auch du kannst bewerten! 7 Tage nach deiner Anfrage erhältst du dafür von uns ein Bewertungsmail.
Alle Infos zu unseren Auszeichnungen und dem FINDMYHOME.AT Qualitätsprogramm findest du hier: Übersicht anzeigen

FINANZIERUNG
?>

Du willst wissen, wie viel dein Umzug kosten wird?

Mach gleich den kostenlosen Preisvergleich und schau, welche seriösen Anbieter in deiner Region günstig deinen Umzug organisieren


ZUM UMZUGS-VERGLEICH
-->

MYHOME BLOG
SuchAgentin auf FindMyHome.at
Unterschiedlichen Rechtsthemen, köstliche Rezepte, neueste Design-Highlights, sowie aktuelle Technik-Tools für Ihr Eigenheim.


FINDMYHOME.AT SUCHAGENTIN
SuchAgentin auf FindMyHome.at
Hallo, soll ich dir ähnliche Immobilien kostenfrei per E-Mail schicken?


Durch die Nutzung unserer Seite erklären Sie sich mit der Verwendung von Cookies zur Verbesserung Ihres Online-Erlebnisses einverstanden. Detaillierte Informationen zu diesem und weiteren Themen erhalten Sie in unserer Datenschutzerklärung.