MEIN ERGEBNIS ANPASSEN

Luxuriöse 12-Zimmer-Villa mit Wellnessbereich Nähe Gersthof - Objektnr. 5655850

  • Hochparterre
  • Souterain
  • 1. Stockwerk
  • DG
1180
Ort
500,00 m²
Fläche
12.0
Zimmer

ECKDATEN
FindMyHome.at // Externe Immobilien-ID5655850 // 1044
ImmobilienartHaus - Eigentum
Anschrift1180 Wien
Baujahr1900
Geschosse3
Fläche500,00 m²
Grundfläche378,00 m²
Terrassen1 (45,00 m²)
Zimmer12.0
Bad6
WC6
 Abstellraum
Kaufpreis:€ 3.300.000,00
Ratenzahlung:Finanzierungsmöglichkeiten für diese Immobilie anzeigen
Provision: 3% des Kaufpreises zzgl. 20% USt.







BESCHREIBUNG

Luxuriöse 12-Zimmer-Villa mit Wellnessbereich Nähe Gersthof

Im Falle der Notwendigkeit einer Fremdfinanzierung Ihrer Wunschimmobilie ermittelt unser Wohnbau-Finanzierungsexperte gerne die optimale Finanzierungslösung und findet das passende Zins- und Konditionsangebot für Sie. Er vergleicht die aktuellen Angebote aller relevanten Banken und Bausparkassen. Der Angebotsvergleich kann aus einem Portfolio von über 120 Banken erfolgen. Das Erstgespräch ist für Sie kostenfrei und unverbindlich, gerne auch bei Ihnen vor Ort. So sparen Sie Ihre wertvolle Zeit und erhalten eine professionelle und unabhängige Finanzierungslösung vom Spezialisten. Sprechen Sie uns wegen eines Termins gerne an!

Zum Verkauf gelangt eine luxuriöse, sanierte 12-Zimmer Villa mit einer Wohnfläche von ca. 500 m² mitten im wunderschönen 18. Wiener Gemeindebezirk.

Die Wohnräumlichkeiten bieten genügend Freiraum für Familie und Gäste. Ebenso überzeugt sofort nach Betreten des Entrees das hohe Ausstattungsniveau der Villa.

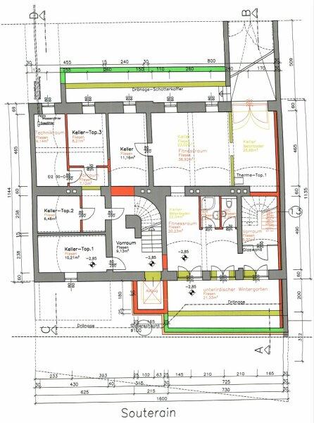
Im Souterrain befindet sich ein Vorraum, ein unterirdischer Wintergarten, ein Wirtschaftsraum, zwei Fitnessräume, ein Zimmer, eine Küche und eine Toilette. Die Fenster der Villa sind mit 3-fach Isolierglas, welche aus Holz und Alu bestehen, eingebaut worden.

Der gesamte Boden in den Vor- und den Wohnräumen ist mit Feinsteinzeug ausgelegt, die Wände und Decken wurden im gesamten Haus neu bemalen. Die Sauna- und SPA-Bereich im Souterrain bietet Entspannung nach einem stressigen Arbeitstag. Der Boden ist mit exklusiven Sandstein und Mosaikfliesen ausgelegt. Außerdem befindet sich hier ein Kellerraum, welcher als Zubehör dient. Weiters haben Sie von hier aus einen direkten Zugang zur Gartenanlage. Die Gartenfläche erstreckt sich auf ca. 101,32 m².

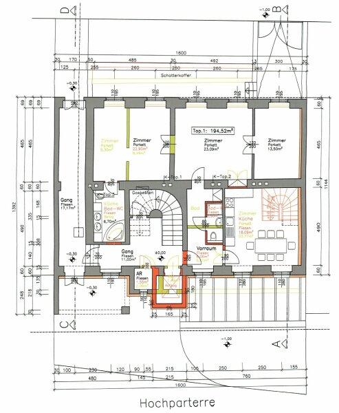
Im Hochparterre der Villa angelangt, befindet sich ein Vorraum, drei Zimmer, eine separate Küche und zwei Bäder mit jeweils einer Toilette. Die Wände und der Boden der hellen Sanitäranlangen sind komplett verfliest. Die Nassbereiche sind mit einer Duschtasse, einer Badewanne und einem Waschbecken ausgestattet. Das Bad auf dieser Ebene hat eine Fläche von ca. 6,70 m². Das Souterrains und das Hochparterre beinhalten eine Gesamtfläche von ca. 194,52 m².

Im ersten Obergeschoss, welches sich auf eine Gesamtfläche von ca. 132,97 m² erstreckt, befindet sich ein Wintergarten, zwei Vorräume, eine Küche, vier Schlafzimmer, ein Schrankraum mit Abstellraum und zwei Bäder mit Toilette.

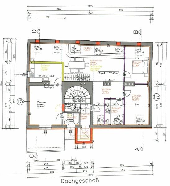
Im Dachgeschoss angelangt, welches Sie über eine halb-gewendelte Betonstiege mit Handlauf erreichen, befinden sich zwei Vorräume, ein großzügiger Wohnbereich, drei Zimmer und zwei Bäder mit WC.  Diese Etage besitzt eine Gesamtfläche von ca. 135,39 m². Der direkte Zugang zur Sonnenterrasse ermöglicht Ihnen einen fantastischen Ausblick ins Ferne sowie in das Grün des Gartens und lädt zu geselligen Sommerpartys oder zum Entspannen ein.

Auf allen Geschossen dieser Immobilie befindet sich eine Küche mit integrierten Geräten. Weiters befördert Sie der außenangebrachte Lift zu jeder einzelnen Etage.

Ausstattungen:

  • Hauseingangstüre einflügelig aus Holz mit Glaseinsatz und Oberlichte
  • Holzparkett
  • Fußbodenheizung
  • Großer SPA-Bereich mit exklusiven Steinboden und Mosaikfliesen
  • Küche auf jeder Ebene
  • Unterirdischer Wintergarten
  • Großzügige Terrasse

 

Die Lage dieser Immobilie ist hervorragend. Mit den öffentlichen Verkehrsmitteln sind Sie in 20 Minuten in der Inneren Stadt. Straßenbahnlinien 9,40 & 41 sind in unmittelbarere Nähe sowie die S-Bahn-Station, Gersthof ist in wenigen Gehminuten zu erreichen.

Zahlreiche Einkaufsmöglichkeiten für den täglichen Bedarf sind zu Fuß zu erreichen. Restaurants, Cafés, Banken, Apotheken, Trafik und weitere Shops sind lediglich einige Minuten entfernt.

Gerne lassen wir Ihnen bei ernsthaftem Interesse - vor Kaufanbotlegung - weitere vertraulichen Dokumente zu dieser Liegenschaft zukommen, welche nicht veröffentlicht werden dürfen.

Überzeugen Sie sich selbst von diesem überaus attraktiven Objekt. Für Besichtigungen und nähere Informationen stehen wir Ihnen gerne zur Verfügung!

Mag. Viola Wasmuth
national - Tel: 0670 4039361
international - Tel: +43 670 4039361
e-mail:

 

 

 

 

 

Wir weisen darauf hin, dass zwischen dem Vermittler und dem zu vermittelnden Dritten ein familiäres oder wirtschaftliches Naheverhältnis besteht.

Der Vermittler ist als Doppelmakler tätig.

 

 


Infrastruktur / Entfernungen

Gesundheit
Arzt <500m
Apotheke <500m
Klinik <1.000m
Krankenhaus <2.000m

Kinder & Schulen
Schule <500m
Kindergarten <500m
Universität <1.000m
Höhere Schule <500m

Nahversorgung
Supermarkt <500m
Bäckerei <500m
Einkaufszentrum <1.500m

Sonstige
Geldautomat <500m
Bank <500m
Post <1.000m
Polizei <1.000m

Verkehr
Bus <500m
U-Bahn <1.500m
Straßenbahn <500m
Bahnhof <500m
Autobahnanschluss <3.000m

Angaben Entfernung Luftlinie / Quelle: OpenStreetMap

Provision: 3% des Kaufpreises zzgl. 20% USt.


Alle Details anzeigen

KONTAKT






 

Lasse dich kostenlos vom Anbieter dieser Immobilie zurückrufen.







 


 
IM Lifestyle Properties GmbH
Viola Wasmuth
Telefonnummer anzeigen Telefon Allgemein: +4315121484
Handy Bearbeiter: +436704039361
 
Bitte dem Makler die FindMyHome.at - ID bekanntgeben: 5655850

Bewertungen dieses Anbieters
Qualitätsmakler
Qualitätsmakler:
2019, 2023,
Netiquette
Freundlichkeit

BEWERTUNGEN DIESES ANBIETERS

 
Qualit�tsmakler
Qualitätsmakler
2019, 22/23
Freundlichkeit
BESONDERS
FREUNDLICH
Netiquette
FINDMYHOME
NETIQUETTE
Auch du kannst bewerten! 7 Tage nach deiner Anfrage erhältst du dafür von uns ein Bewertungsmail.
Alle Infos zu unseren Auszeichnungen und dem FINDMYHOME.AT Qualitätsprogramm findest du hier: Übersicht anzeigen

FINANZIERUNG
?>

Du willst wissen, wie viel dein Umzug kosten wird?

Mach gleich den kostenlosen Preisvergleich und schau, welche seriösen Anbieter in deiner Region günstig deinen Umzug organisieren


ZUM UMZUGS-VERGLEICH
-->

MYHOME BLOG
SuchAgentin auf FindMyHome.at
Unterschiedlichen Rechtsthemen, köstliche Rezepte, neueste Design-Highlights, sowie aktuelle Technik-Tools für Ihr Eigenheim.


FINDMYHOME.AT SUCHAGENTIN
SuchAgentin auf FindMyHome.at
Hallo, soll ich dir ähnliche Immobilien kostenfrei per E-Mail schicken?


ÄHNLICHE IMMOBILIEN
Aehnliche Immobilie - Vorschaubild 1

Ein - bzw. Mehrfamilienhaus - Objektnr. 5525502


420,00 m²
2900000 €
PLZ: 1180

Mehr anzeigen

Aehnliche Immobilie - Vorschaubild 2

Villa in Währing mit drei separaten Wohneinheiten - Ideal fü... - Objektnr. 5649610

505,00 m² - 13.0 Zimmer
3250000 €
PLZ: 1180

Mehr anzeigen

Durch die Nutzung unserer Seite erklären Sie sich mit der Verwendung von Cookies zur Verbesserung Ihres Online-Erlebnisses einverstanden. Detaillierte Informationen zu diesem und weiteren Themen erhalten Sie in unserer Datenschutzerklärung.