Allgemeines
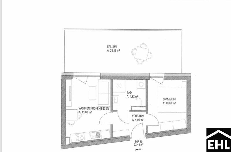
Wenn Sie die pulsierende Innenstadt lieben und dennoch von einer ruhigen und angenehmen Wohngegend profitieren wollen, sind Sie in der Grenadiergasse 28 in Graz an der richtigen Adresse. Diese Lage bietet eine perfekte Kombination aus urbanem Lebensstil und ruhiger Wohnatmosphäre. Die hochwertig ausgestatteten Neubauwohnungen verfügen über durchdachten Grundrissen auch Freiflächen wie Balkone, Loggien oder Terrassen.
Das Projekt Grenadiergasse 28 trägt auch zum Thema Nachhaltigkeit und Energieeffizienz bei, ist ein aktiver Beitrag zum Klimaschutz und erhöht den Wohnkomfort.
Durch die spitzenmäßige Anbindung an die öffentlichen Verkehrsmittel sowie auch an das Radwegenetz, ist man in kurzer Zeit in der Grazer Innenstadt.
Wenn man lieber mit dem Fahrrad unterwegs ist, stehen über Fahrradabstellplätze zur Verfügung.
Ebenso gibt es eine Tiefgarage in der Sie Stellplätze anmieten können.
Um auch das Kennenlernen unter den Hausbewohnern zu fördern steht ein Gemeinschaftsraum sowie auch für die Kinder eine Kinderspielfläche zur Verfügung.
Bei den Fotos handelt es sich um Musterfotos!
Ausstattung
Details, auf die Sie sind im neuen Wohnraum freuen können:
- Wunderschöne Parkettböden
- Hochwertige Fliesen in den Nassräumen
- 3-fach verglaste Kunststoffaluminiumfenster
- Sonnenschutz Rollladen od. Raffstores
- Voll ausgestattete Markenküchen
- Fußbodenheizung in allen Räumen
- Zentrale Heizanlage die ans Fernwärmenetz angeschlossen ist
- Aufzüge
- Kellerabteile für jede Wohnung
- Tiefgaragenstellplätze
- Zahlreiche Fahrradabstellplätze
- Kinderspielflächen
- Gemeinschaftsraum für ein Kennenlernen unter den Bewohnern
Lage
Die Liegenschaft Grenadiergasse 28 befindet sich im schönen zentralen Stadtteil Gries.
Die zentrale Lage ermöglicht es Ihnen, die pulsierende Innenstadt bequem zu Fuß zu erreichen, während Sie dennoch von einer ruhigen und angenehmen Wohngegend profitieren.
Unzählige Parks wie z.B. der Augarten bieten sich hervorragend für Spaziergänge oder Laufrunden an. In unmittelbarer Nähe befinden sich eine Vielzahl an Geschäften, Restaurants, Cafés, Supermärkte, Apotheken, Restaurants und Schulen. Die Verkehrsanbindung ist hervorragend, mit mehreren Bushaltestellen in Gehweite und dem Hauptbahnhof Graz nur wenige Minuten entfernt. Dies ermöglicht Ihnen eine bequeme Anbindung an den öffentlichen Nahverkehr und eine einfache Erkundung der Stadt und ihrer Umgebung.
Öffentliche Verkehrsmittel
- div. Straßenbahnlinien
- div. Buslinien
Gewässer
Einkaufszentren
Sportliche Aktivitäten
- Bad zur Sonne
- Augarten
- City Adventure Cente
Befristung: 10 Jahre, 1 Jahr Kündigungsverzicht, 3 Monate Kündigungsfrist
Nebenkosten
3 BMM Kaution, Vertragserrichtungskosten
Wir weisen darauf hin, dass zwischen dem Vermittler und dem zu vermittelnden Dritten ein familiäres oder wirtschaftliches Naheverhältnis besteht.
Der Immobilienmakler erklärt, dass er entgegen dem in der Immobilienwirtschaft üblichen Geschäftsgebrauch des Doppelmaklers einseitig nur für den Vermieter tätig ist.
Infrastruktur / Entfernungen
Gesundheit
Arzt <250m
Apotheke <500m
Klinik <500m
Krankenhaus <500m
Kinder & Schulen
Schule <250m
Kindergarten <500m
Universität <1.000m
Höhere Schule <1.000m
Nahversorgung
Supermarkt <250m
Bäckerei <250m
Einkaufszentrum <1.000m
Sonstige
Geldautomat <500m
Bank <500m
Post <750m
Polizei <500m
Verkehr
Bus <250m
Straßenbahn <500m
Autobahnanschluss <4.250m
Bahnhof <1.000m
Flughafen <9.000m
Angaben Entfernung Luftlinie / Quelle: OpenStreetMap
Provision: Gemäß Erstauftraggeberprinzip bezahlt der Abgeber die Provision.