MEIN ERGEBNIS ANPASSEN

#SQ - SANIERUNGSBEDÜRFTIGE 3 ZIMMER ALTBAUWOHNUNG MITTEN IM 6ten /MARIAHILF APOLLOKINO - TOP 1&2 - Objektnr. 5655641

1060
Ort
113,71 m²
Fläche
3.0
Zimmer

ECKDATEN
FindMyHome.at // Externe Immobilien-ID5655641 // 21556
ImmobilienartWohnung - Eigentum
Anschrift1060 Wien
Baujahr1900
Fläche113,71 m²
Zimmer3.0
Bad1
WC1
Kaufpreis:€ 569.000,00
Ratenzahlung:Finanzierungsmöglichkeiten für diese Immobilie anzeigen
Provision: 3% vom KP zzgl. gesetzl. Mwst. 







BESCHREIBUNG

#SQ - SANIERUNGSBEDÜRFTIGE 3 ZIMMER ALTBAUWOHNUNG MITTEN IM 6ten /MARIAHILF APOLLOKINO - TOP 1&2

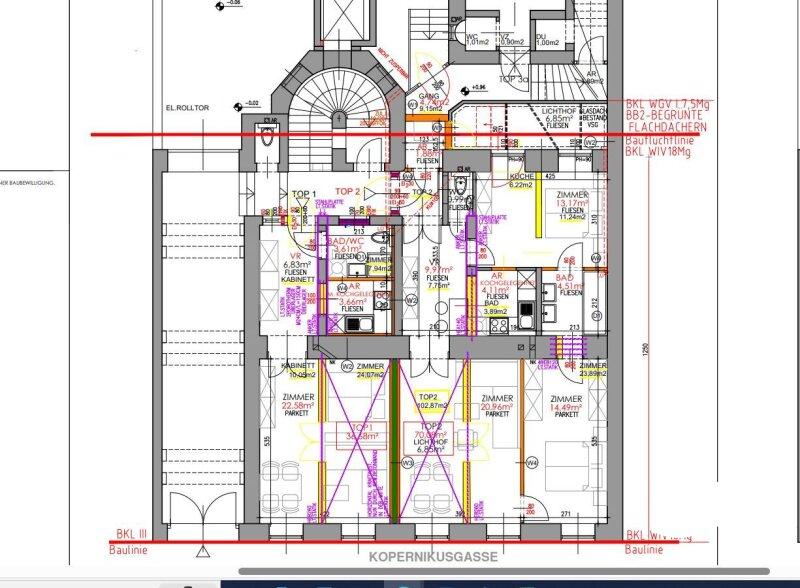
Zum Verkauf gelangt eine sehr nette komplett sanierungsbedürftige 3 Zimmer Altbauwohnung, gleich ums Eck vom Haus des Meeres und des Apollo Kinos. Die Mariahilferstraße ist in nur 2 Gehminuten erreichbar. Die Wohnung liegt im Hochparterre /EG eines Jahrhundertwendhauses mit glatter Fassade. Nachdem die Straße leicht bergauf verläuft fühlt man sich wie in einer Wohnung die im ersten Stock liegt. Das Gebäude wurde mit einem Personenlift ausgestattet, welcher noch nicht in Betrieb genommen ist. Das Dachgeschoss ist bereits ausgebaut. Das Gebäude verfügt über einen schönen Eingang. Die Wohnung ist mit dem Hauptzimmern, strassen -  und westseitig ausgerichtet und ruhig in einer Seitengasse der Gumpendorferstraße gelegen. 

Eckdaten im Überblick: 

WNFL. :  ca. 114m²
Zimmer: 3 - 4
WC: separat 2 
Küche 
Bad: 2 Bäder 

Beschreibung: 

Die Wohnung befindet sich im EG, gefühlter erster Stock. Grundsätzlich ist es möglich die Wohnungen Top 1 & Top 2 zusammenzulegen. Es wären 3-4 Zimmer, 2 Bäder und 2 WC´s möglch. Das Objekt verfügt über schöne Altbauelemente und eine tolles Atrium ist in die Wohnung integriert, was zusätzliches Licht im hinteren Teil einfängt. 

Die Planung kann noch individuell gestaltet werden. 

Zur Zeit sind 2 kleinere Einheiten bei der MA37 eingereicht und auch im neuen Nutzwertgutachten, welches der Parifizierung vorlegt sind 2 kleinere Einheiten angeführt. Es ist aber kein Problem diese beiden mittels einer Nachparifizierung wieder zu einer zusammenzuführen oder man belässt 2. 

Das Haus befindet sich zur Zeit in Parifizerung. Wohnungseigentum ist in Begründung. 

Kosten: 

Kaufpreis: € 569.000,- 

Provision: 3% vom KP zzgl. gesetzl. Mwst. 

Kontaktdaten: 

Für Fragen und Besichtigungen kontaktieren Sie bitte Frau Inés Guelmami unter ines.guelmami@stadtquartier.at 

Weitere Objekte auf: 

www.stadtquartier.at 

 

Hinweis gemäß Energieausweisvorlagegesetz: Ein Energieausweis wurde vom Eigentümer bzw. Verkäufer, nach unserer Aufklärung über die generell geltende Vorlagepflicht, sowie Aufforderung zu seiner Erstellung noch nicht vorgelegt. Daher gilt zumindest eine dem Alter und der Art des Gebäudes entsprechende Gesamtenergieeffizienz als vereinbart. Wir übernehmen keinerlei Gewähr oder Haftung für die tatsächliche Energieeffizienz der angebotenen Immobilie.

Wir weisen darauf hin, dass zwischen dem Vermittler und dem zu vermittelnden Dritten ein familiäres oder wirtschaftliches Naheverhältnis besteht.

Der Vermittler ist als Doppelmakler tätig.


Infrastruktur / Entfernungen

Gesundheit
Arzt <500m
Apotheke <500m
Klinik <500m
Krankenhaus <1.000m

Kinder & Schulen
Schule <500m
Kindergarten <500m
Universität <1.000m
Höhere Schule <1.000m

Nahversorgung
Supermarkt <500m
Bäckerei <500m
Einkaufszentrum <500m

Sonstige
Geldautomat <500m
Bank <500m
Post <500m
Polizei <500m

Verkehr
Bus <500m
U-Bahn <500m
Straßenbahn <1.000m
Bahnhof <500m
Autobahnanschluss <4.500m

Angaben Entfernung Luftlinie / Quelle: OpenStreetMap

Provision: 3% des Kaufpreises zzgl. 20% USt.


Alle Details anzeigen

KONTAKT






 

Lasse dich kostenlos vom Anbieter dieser Immobilie zurückrufen.







 


 
STADTQUARTIER Home GmbH
Ines Guelmami
Telefonnummer anzeigen Telefon Allgemein: +436764060310
Handy Bearbeiter: +436764060310
 
Bitte dem Makler die FindMyHome.at - ID bekanntgeben: 5655641

Bewertungen dieses Anbieters
Qualitätsmakler
Qualitätsmakler:
2013, 2018, 2019, 2021,
Netiquette
Freundlichkeit

BEWERTUNGEN DIESES ANBIETERS

 
Qualit�tsmakler
Qualitätsmakler
2013, 2018, 2019, 2021
Freundlichkeit
BESONDERS
FREUNDLICH
Netiquette
FINDMYHOME
NETIQUETTE
Auch du kannst bewerten! 7 Tage nach deiner Anfrage erhältst du dafür von uns ein Bewertungsmail.
Alle Infos zu unseren Auszeichnungen und dem FINDMYHOME.AT Qualitätsprogramm findest du hier: Übersicht anzeigen

FINANZIERUNG
?>

Du willst wissen, wie viel dein Umzug kosten wird?

Mach gleich den kostenlosen Preisvergleich und schau, welche seriösen Anbieter in deiner Region günstig deinen Umzug organisieren


ZUM UMZUGS-VERGLEICH
-->

MYHOME BLOG
SuchAgentin auf FindMyHome.at
Unterschiedlichen Rechtsthemen, köstliche Rezepte, neueste Design-Highlights, sowie aktuelle Technik-Tools für Ihr Eigenheim.


FINDMYHOME.AT SUCHAGENTIN
SuchAgentin auf FindMyHome.at
Hallo, soll ich dir ähnliche Immobilien kostenfrei per E-Mail schicken?


ÄHNLICHE IMMOBILIEN
Aehnliche Immobilie - Vorschaubild 1

++.NEU.++ Sanierungsbedürftige 5-Zimmer Stilaltbauwohnung! i... - Objektnr. 5653067

118,42 m² - 5.0 Zimmer
599000 €
PLZ: 1060

Mehr anzeigen

Aehnliche Immobilie - Vorschaubild 2

Historischer Charme trifft kreative Möglichkeiten... - Objektnr. 5589875

102,90 m² - 3.0 Zimmer
618000 €
PLZ: 1060

Mehr anzeigen

Aehnliche Immobilie - Vorschaubild 3

Schöne 3-Zimmer Wohnung, Nähe Westbahnhof - Objektnr. 5533722


102,92 m² - 3.0 Zimmer
618000 €
PLZ: 1060

Mehr anzeigen

Durch die Nutzung unserer Seite erklären Sie sich mit der Verwendung von Cookies zur Verbesserung Ihres Online-Erlebnisses einverstanden. Detaillierte Informationen zu diesem und weiteren Themen erhalten Sie in unserer Datenschutzerklärung.