MEIN ERGEBNIS ANPASSEN

#SQ - EXKLUSIVE BAUBEWILLIGTE MODERNE VILLA AM KAHLENBERG - Objektnr. 5655627

1190
Ort
3.000,00 m²
Fläche
4.0
Zimmer

ECKDATEN
FindMyHome.at // Externe Immobilien-ID5655627 // 21574
ImmobilienartGrundstück - Eigentum
Anschrift1190 Wien
Fläche540,00 m²
Grundfläche3.000,00 m²
Terrassen6
Zimmer4.0
Bad5
Provision: 3% vom KP zzgl. gesetzl. Mwst. 







BESCHREIBUNG

#SQ - EXKLUSIVE BAUBEWILLIGTE MODERNE VILLA AM KAHLENBERG

Zum Verkauf gelangt eine beeindruckende und moderne, baubewilligte Villa samt 3000m² Grundstück in Top Lage des 19ten Bezirks. Umgeben von Villen und den Wiener Weinbergen, fügt sich die Liegenschaft in ein schönes Ensemble von Altvillen und exklusiven Neubauten ein. Westseitig grenzt das Objekt direkt an das unverbaubare Schutzgebiet. 

Stararchitekt Zoran Bodrozic war federführend für die moderne Planung verantwortlich, die dem einzigartigen Projekt zugrunde liegt: Seiner Vision verdanken wir die klaren Linien und die formvollendete Verbindung der großen Glasflächen mit Sichtbeton, Holzelementen und der durchdachten Raumfolge.

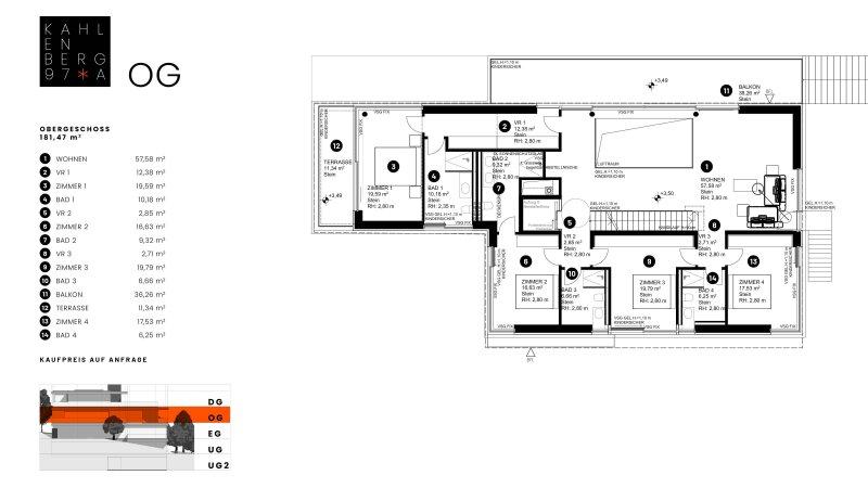
Eckdaten im Überblick: 

Grundstück: ca. 3.000m²
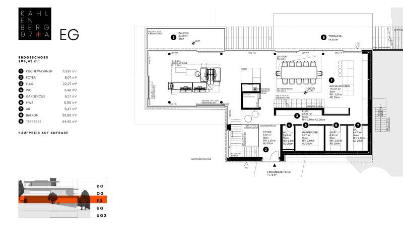
geplante Wohnfläche: ca. 540m²
Schlafzimmer: 4
Bäder: 5
Pools: 2 
Terrassen: 6
Garagenplätze: 4

Beschreibung: 

Aufgrund der leichten Hanglage schmiegt sich das Grundstück terrassenförmig in die Landschaft und besticht durch den wunderschönen Fernblick aus den oberen Geschossen oder der Pergola mit Outdoor Küche. Sowohl die absolute Ruhelage als auch die Verarbeitung natürlicher zeitloser Elemente vermitteln Wärme und Naturverbundenheit, die der Villa eine neue  Dimension räumlicher Freiheit und Offenheit übertragen.  Sie werden die Ruhe, zeitlose Eleganz und Naturverbundenheit des Projektes zu schätzen wissen. 

Das Grundstück ist terrassenförmig erschlossen und bietet vom oberen Geschoss aus einen Fernblick über ganz Wien.

Sowohl die absolute Ruhelage als auch der Einsatz von natürlichen, zeitlosen Elementen in der Konstruktion der Villa, stellen ein Gefühl der Wärme, der Verbundenheit mit der Natur und eine neue Dimension der räumlichen Freiheit und Offenheit für Ihr neues Zuhause dar. In einer lauten, schnell lebigen und konsumorientierten Welt, bietet unser Projekt ein ruhiges, elegantes, zeitloses, modernes als auch mit der Natur verschmolzenes Zuhause und Refugium.

Wohnen: 

Die südseitig ausgerichtete Glasfront lässt sich nach Belieben öffnen und verpasst dem großzügigen Wohnbereich seinen speziellen Charme. Von dort aus ist die freie Sicht über die Liegenschaft, bis hin zu den Hügeln des Umlandes, besonders eindrucksvoll.

Küche und Essen:

Das Konzept stellt die hochwertige, offene Küche mit angrenzendem Essbereich in den Mittelpunkt. Sie dient als Kernelement, das den geräumigen Bereich in einen Wohlfühlort verwandelt, der sich für Empfänge und gesellige Dinner eignet. Der helle Raum ist zur Galerie hin offen und dank verglaster Südseite und Fenster nach Westen den ganzen Tag lang mit Licht durchflutet.

Schlafen:

Die projektierte Villa sieht mehrere Schlafbereiche und Gästezimmer vor. Während das große Schlafzimmer (mit Bad und Ankleide) als On-Suite geplant ist, wurden auch die weiteren Schlafräume großzügig, modern und luxuriös gestaltet.

Garten & Pool:

Das 3,000 m² große Grundstück grenzt unmittelbar an ein Naturschutzgebiet. Während die leichte Hanglage vielseitige Möglichkeiten in der Landschaftsgestaltung bietet, schafft der Naturpool im Garten ein ausgewogenes Mikroklima. Für die vielseitige Nutzung ist das Außenbecken mit dem Indoor-Pool verbunden. Zum Schutz der Privatsphäre ist das Anwesen weiters durch große Pflanzen der weitläufigen nach Süd/Südwest ausgerichtet Gartenanlage geschützt.

Pergola:

Ein besonderes Highlight bietet die höher gelegene Pergola mit Outdoor-Küche und Ess- bzw. Partybereich. Von hier aus genießt man einen fantastischen Ausblick weit über die Villa und das Anwesen hinaus, über die umliegenden Grundstücke hinweg, bis weit über die Dächer Wiens.

Garage:

Die großzügige Garage im Untergeschoss der Villa bietet Platz für 4 PKW und ist direkt von der Kahlenberger Straße per Zufahrt zugänglich. Ebenso der einladend gestaltete Haupteingang.

Kosten: 

Kaufpreis auf Anfrage.

Provision: 3% vom KP zzgl. gesetzl. Mwst. 

Kontaktdaten: 

Für Fragen und Besichtigungen, kontaktieren Sie bitte Frau Ines Guelmami unter 0676 40 60 310 oder unter ines.guelmami@stadquartier.at 

Weitere Objekte auf: 

www.stadtquartier.at

Wir weisen darauf hin, dass zwischen dem Vermittler und dem zu vermittelnden Dritten ein familiäres oder wirtschaftliches Naheverhältnis besteht.

Der Vermittler ist als Doppelmakler tätig.


Infrastruktur / Entfernungen

Gesundheit
Arzt <1.000m
Apotheke <1.000m
Klinik <1.000m
Krankenhaus <2.000m

Kinder & Schulen
Schule <1.000m
Kindergarten <1.000m
Universität <1.500m
Höhere Schule <1.500m

Nahversorgung
Supermarkt <1.000m
Bäckerei <1.000m
Einkaufszentrum <1.500m

Sonstige
Geldautomat <1.500m
Bank <1.000m
Post <1.000m
Polizei <1.500m

Verkehr
Bus <500m
U-Bahn <2.000m
Straßenbahn <1.000m
Bahnhof <1.500m
Autobahnanschluss <1.500m

Angaben Entfernung Luftlinie / Quelle: OpenStreetMap

Provision: 3% des Kaufpreises zzgl. 20% USt.


Alle Details anzeigen

KONTAKT






 

Lasse dich kostenlos vom Anbieter dieser Immobilie zurückrufen.







 


 
STADTQUARTIER Home GmbH
Ines Guelmami
Telefonnummer anzeigen Telefon Allgemein: +436764060310
Handy Bearbeiter: +436764060310
 
Bitte dem Makler die FindMyHome.at - ID bekanntgeben: 5655627

Bewertungen dieses Anbieters
Qualitätsmakler
Qualitätsmakler:
2013, 2018, 2019, 2021,
Netiquette
Freundlichkeit

BEWERTUNGEN DIESES ANBIETERS

 
Qualit�tsmakler
Qualitätsmakler
2013, 2018, 2019, 2021
Freundlichkeit
BESONDERS
FREUNDLICH
Netiquette
FINDMYHOME
NETIQUETTE
Auch du kannst bewerten! 7 Tage nach deiner Anfrage erhältst du dafür von uns ein Bewertungsmail.
Alle Infos zu unseren Auszeichnungen und dem FINDMYHOME.AT Qualitätsprogramm findest du hier: Übersicht anzeigen


Du willst wissen, wie viel dein Umzug kosten wird?

Mach gleich den kostenlosen Preisvergleich und schau, welche seriösen Anbieter in deiner Region günstig deinen Umzug organisieren


ZUM UMZUGS-VERGLEICH
-->

MYHOME BLOG
SuchAgentin auf FindMyHome.at
Unterschiedlichen Rechtsthemen, köstliche Rezepte, neueste Design-Highlights, sowie aktuelle Technik-Tools für Ihr Eigenheim.


FINDMYHOME.AT SUCHAGENTIN
SuchAgentin auf FindMyHome.at
Hallo, soll ich dir ähnliche Immobilien kostenfrei per E-Mail schicken?


ÄHNLICHE IMMOBILIEN
Aehnliche Immobilie - Vorschaubild 1

#SQ - GRUNDSTÜCK IN NEUSTIFT AM WALDE UNWEIT DER AMERICAN IN... - Objektnr. 5592612

639,51 m²
1390000 €
PLZ: 1190

Mehr anzeigen

Durch die Nutzung unserer Seite erklären Sie sich mit der Verwendung von Cookies zur Verbesserung Ihres Online-Erlebnisses einverstanden. Detaillierte Informationen zu diesem und weiteren Themen erhalten Sie in unserer Datenschutzerklärung.