MEIN ERGEBNIS ANPASSEN

4-Zimmer Erstbezug mit 18 m² Terrasse und 28 m² Dachterrasse, direkt am Naschmarkt - Objektnr. 5654653

  • Bad Variante 1
  • Bad Variante 2
  • Bad Variante 3
1040
Ort
163,20 m²
Fläche
4.0
Zimmer

ECKDATEN
FindMyHome.at // Externe Immobilien-ID5654653 // 31453
ImmobilienartWohnung - Eigentum
AnschriftRechte Wienzeile 21/47
1040 Wien
Baujahr2027
Stock5
Geschosse6
Fläche163,20 m²
Terrassen2 (58,00 m²)
Zimmer4.0
Bad2
WC2
Kaufpreis:€ 2.750.000,00
Ratenzahlung:Finanzierungsmöglichkeiten für diese Immobilie anzeigen
Provision:







BESCHREIBUNG

4-Zimmer Erstbezug mit 18 m² Terrasse und 28 m² Dachterrasse, direkt am Naschmarkt

DAS PROJEKT

Direkt am pulsierenden Naschmarkt entsteht ein außergewöhnliches Wohnprojekt, das urbanes Leben mit individuellem Gestaltungsspielraum verbindet. Im neu ausgebauten Dachgeschoss eines sorgfältig revitalisierten Altbaus entstehen 13 exklusive Wohnungen mit 2 bis 4 Zimmern und Wohnflächen von ca. 61 bis 163 m². Alle Wohnungen verfügen über großzügige Freiflächen, einige sogar über weitläufige Dachterrassen mit unvergleichlichem Blick über Wien. Einzigartig bei diesem Projekt ist außerdem der Freiraum bei der Gestaltung: Sie haben die Möglichkeit, Ihre Ausstattung aus zahlreichen Varianten frei zu kombinieren und sich so ein Zuhause zu schaffen, das sich an Ihre Wünsche und Vorstellungen anpasst. Dabei vereinen sich historischer Altbaucharme und moderne Wohnstandards harmonisch miteinander.

Alle Infos zu den verfügbaren Wohnungen finden Sie in unserem Grundrissnavigator: www.rechtewienzeile21.at

Genuss in vollen Zügen bedeutet hier: die Freiheit, Ihre Wohnung individuell zu gestalten und eine Lage, die keine Wünsche offen lässt mit dem Naschmarkt und seinen kulinarischen Schätzen direkt vor der Haustür, pulsierendem Stadtleben rundherum und der perfekten Anbindung ins Zentrum.

HIGHLIGHTS

  • 13 exklusive Dachgeschosswohnungen
  • fantastische Ausblicke
  • herausragende Architektur
  • alle Wohnungen auf einer Ebene/keine Maisonetten
  • 2 4 Zimmer | Wohnflächen ca. 61 163 m²
  • Ihr Wohntraum in eigener Hand | Ausstattung frei kombinierbar
  • Großzügige Freiflächen, teilweise mit großen, privaten Dachterrassen
  • Raumhöhe von bis zu 2,72 auf der oberen Dachebene
  • Individuelle Gestaltung möglich
  • Historischer Altbau kombiniert mit moderner Architektur
  • Direkt am Naschmarkt | Restaurants | Cafés | Boutiquen 
  • Perfekte Anbindung | Kettenbrückengasse (U4) | Karlsplatz/Oper (U4, U2, U1)

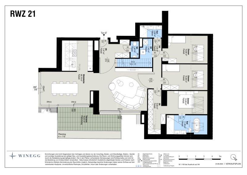
WOHNUNG STIEGE 1 | TOP 47:

  • Wohnbereich:
    • Vorraum, Abstellraum, WC
    • Master Bedroom mit en-suite Bad und Schrankraum
    • 2 extra Schlafzimmer
    • Extra Bad über den VR begehbar
    • großzügige Wohnküche mit direktem Ausgang auf die Terrasse
    • 18 m² Terrasse
    • Aufgang zur Dachterrasse über den Vorraum
  • Dachterrasse:
    • 28 m² Terrassenfläche und wunderschöner Ausblick

NEBENKOSTEN

Der guten Ordnung halber halten wir fest, dass, sofern im Angebot nicht anders vermerkt, bei erfolgreichem Abschlussfall eine Provision anfällt, die den in der Immobilienmaklerverordnung BGBI. 262 und 297/1996 festgelegten Sätzen entspricht das sind 3 % des Kaufpreises zzgl. 20 % USt. Diese Provisionspflicht besteht auch dann, wenn Sie die Ihnen überlassenen Informationen an Dritte weitergeben. Es besteht ein wirtschaftliches Naheverhältnis zum Verkäufer. Wir weisen darauf hin, dass wir als Doppelmakler tätig sind. Die Vertragserrichtung und Treuhandabwicklung ist gebunden. Die Kosten betragen 1,5 % des Kaufpreises zzgl. 20 % USt. sowie Barauslagen und Beglaubigung.

Wir weisen darauf hin, dass zwischen dem Vermittler und dem zu vermittelnden Dritten ein familiäres oder wirtschaftliches Naheverhältnis besteht.

Der Vermittler ist als Doppelmakler tätig.


Infrastruktur / Entfernungen

Gesundheit
Arzt <200m
Apotheke <100m
Klinik <375m
Krankenhaus <1.100m

Kinder & Schulen
Schule <150m
Kindergarten <175m
Universität <250m
Höhere Schule <675m

Nahversorgung
Supermarkt <75m
Bäckerei <150m
Einkaufszentrum <750m

Sonstige
Geldautomat <125m
Bank <125m
Post <200m
Polizei <475m

Verkehr
Bus <150m
U-Bahn <25m
Straßenbahn <325m
Bahnhof <350m
Autobahnanschluss <3.450m

Angaben Entfernung Luftlinie / Quelle: OpenStreetMap

Provision:


Alle Details anzeigen

KONTAKT






 

Lasse dich kostenlos vom Anbieter dieser Immobilie zurückrufen.







 


 
WINEGG Makler GmbH
Julian Himmelbauer
Telefonnummer anzeigen Telefon Allgemein: +4313157280
Handy Bearbeiter: +436765505797
 
Bitte dem Makler die FindMyHome.at - ID bekanntgeben: 5654653

Bewertungen dieses Anbieters
Qualitätsmakler
Qualitätsmakler:
2015, 2017, 2025,
Netiquette
Freundlichkeit
83 %

BEWERTUNGEN DIESES ANBIETERS

 
Qualit�tsmakler
Qualitätsmakler
2015, 2017, 2025
Weiterempfehlung
WIRD GERNE

Freundlichkeit
BESONDERS
FREUNDLICH
Netiquette
FINDMYHOME
NETIQUETTE
Auch du kannst bewerten! 7 Tage nach deiner Anfrage erhältst du dafür von uns ein Bewertungsmail.
Alle Infos zu unseren Auszeichnungen und dem FINDMYHOME.AT Qualitätsprogramm findest du hier: Übersicht anzeigen

FINANZIERUNG
?>

Du willst wissen, wie viel dein Umzug kosten wird?

Mach gleich den kostenlosen Preisvergleich und schau, welche seriösen Anbieter in deiner Region günstig deinen Umzug organisieren


ZUM UMZUGS-VERGLEICH
-->

MYHOME BLOG
SuchAgentin auf FindMyHome.at
Unterschiedlichen Rechtsthemen, köstliche Rezepte, neueste Design-Highlights, sowie aktuelle Technik-Tools für Ihr Eigenheim.


FINDMYHOME.AT SUCHAGENTIN
SuchAgentin auf FindMyHome.at
Hallo, soll ich dir ähnliche Immobilien kostenfrei per E-Mail schicken?


ÄHNLICHE IMMOBILIEN
Aehnliche Immobilie - Vorschaubild 1

Belvedere Premium Living: 4-Zi. Penthouse mit Freiflächen... - Objektnr. 5489634

190,27 m² - 4.0 Zimmer
2590000 €
PLZ: 1040

Mehr anzeigen

Aehnliche Immobilie - Vorschaubild 2

LUXUS-PENTHOUSE DIREKT AM NASCHMARKT! Grandiose Dachterrasse... - Objektnr. 5653879

171,68 m² - 3.0 Zimmer
2590000 €
PLZ: 1040

Mehr anzeigen

Durch die Nutzung unserer Seite erklären Sie sich mit der Verwendung von Cookies zur Verbesserung Ihres Online-Erlebnisses einverstanden. Detaillierte Informationen zu diesem und weiteren Themen erhalten Sie in unserer Datenschutzerklärung.