MEIN ERGEBNIS ANPASSEN

Top Investment - Top für Singles und Pärchen! 2 Zimmer mit Eigengarten und bester Ausstattung! - Objektnr. 5653650


ökologisch beheizt
1220
Ort
52,15 m²
Fläche
2.0
Zimmer

ECKDATEN
FindMyHome.at // Externe Immobilien-ID5653650 // 297739
ImmobilienartEigentum
AnschriftSteinachgasse/5
1220 Wien
Baujahr2026
Befeuerung
Fernwärme
Geschosse4
Fläche52,15 m²
Terrassen1 (10,00 m²)
Zimmer2.0
Bad1
WC1
 Abstellraum
Kaufpreis:€ 293.020,00
Ratenzahlung:Finanzierungsmöglichkeiten für diese Immobilie anzeigen
Provision: 3% zzgl. 20% Ust.







BESCHREIBUNG

Top Investment - Top für Singles und Pärchen! 2 Zimmer mit Eigengarten und bester Ausstattung!

Ankommen, durchatmen, zuhause sein.

Nur wenige Minuten von Wien entfernt entsteht in Groß-Enzersdorf ein Wohnprojekt, das genau den Zeitgeist trifft: mehr Ruhe, mehr Freiraum und gleichzeitig volle Anbindung an die Stadt.

Hier beginnt der Tag mit Blick ins Grüne und endet entspannt auf der eigenen Terrasse oder dem Balkon. Die Nähe zur Lobau, weitläufige Naturflächen und ein angenehm gewachsenes Umfeld schaffen ein Wohngefühl, das in dieser Form selten geworden ist.

Die Wohnungen selbst sind so geplant, wie man heute leben möchte: offen, hell und effizient. 2 bis 4 Zimmer, Wohnflächen von ca. 45 m² bis 114 m² und durchdachte Grundrisse bieten Raum für unterschiedlichste Lebenssituationen vom kompakten Investment bis zum Familienzuhause. Jede Einheit verfügt über eine eigene Freifläche und erweitert den Wohnraum ins Freie.

Die Ausstattung folgt einem klaren Anspruch: langlebig, hochwertig und komfortabel. Eichenparkett, moderne Fliesen, dreifach verglaste Fenster, elektrische Beschattung und Fußbodenheizung über Fernwärme sorgen für ein angenehmes Wohnklima. In den Dachgeschosswohnungen bietet eine Klimaanlage zusätzlichen Komfort. Lift, Videogegensprechanlage sowie vorbereitete E-Ladeinfrastruktur runden das Gesamtbild ab. Die Kombination aus Qualität, Funktionalität und zeitlosem Design sorgt für ein angenehmes Wohnklima und langfristige Wertbeständigkeit.

Auch aus Investorensicht überzeugt das Projekt: Die Kombination aus Stadtnähe, Grünlage und funktionalen Grundrissen sorgt für nachhaltige Nachfrage und sehr gute Vermietbarkeit.

Kurz gesagt: ein Projekt, das nicht nur heute passt, sondern auch morgen noch Sinn macht.

 

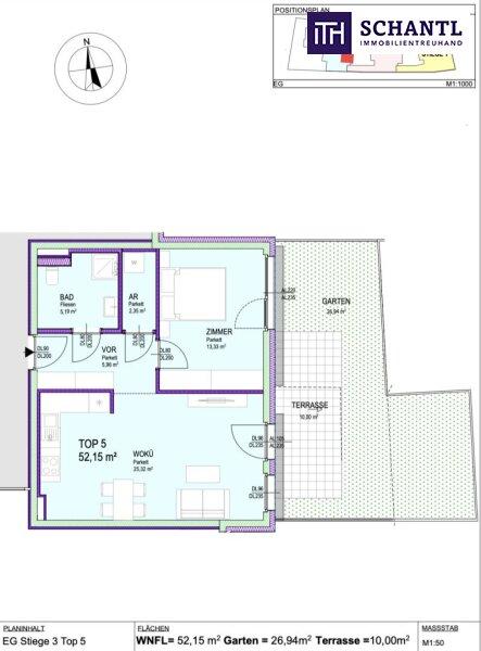
Wohnung Top 5 - Stiege 3

2 Zimmer Gartenwohnung - praktisch, süß, mit hohem "Wohlfühl-Faktor"!

Diese ideal geschnittene 2-Zimmer-Gartenwohnung vereint durchdachte Raumplanung mit einem besonderen Maß an Lebensqualität. Ruhig im Innenhof gelegen, entsteht hier ein Zuhause, das Rückzug, Freiraum und modernes Wohnen ideal miteinander verbindet.

Auf rund 52 m² Wohnfläche überzeugt die Wohnung mit einem offenen und lichtdurchfluteten Wohnbereich von ca. 25 m² das Herzstück des Zuhauses. Große Fensterflächen sorgen für ein angenehmes Raumgefühl und schaffen eine fließende Verbindung in den Außenbereich.

Ein besonderes Highlight: von beiden Räumen aus gelangen Sie direkt in den knapp 40 m² großen Eigengarten samt Terrasse. Ob Frühstück im Freien, entspannte Abende oder Platz für Familie und Freunde hier entsteht ein echtes Wohngefühl mit Hauscharakter.

Die Wohnung verfügt über ein geräumiges Schlafzimmer mit ca. 13 m² sowie einen zusätzlichen Abstellraum, der für praktischen Stauraum sorgt. Das Badezimmer ist modern ausgestattet und verfügt über eine Dusche sowie ein WC.

Eine seltene Gelegenheit für alle, die grünes Wohnen mit privatem Garten in ruhiger Lage suchen und dennoch die Nähe zur Stadt nicht missen möchten.

Wohnfläche: ca. 52,15 m² + Terrasse: ca. 10 m² + Garten: ca. 30 m² + Kellerabteil 

Kaufpreis (netto) für Anleger: € 293.020,- (zzgl. 20%Ust.)

Kaufpreis für Endverbraucher: € 299.000,-

KP Garage (optional): € 17.000,-

Kalkulierte Betriebskosten: € 2,-/m² zzgl. Ust. 

Provision: 3% zzgl. 20% Ust.

Wir weisen höflich darauf hin, dass sich das Projekt knapp außerhalb der Stadtgrenze von Wien befindet; aus Gründen einer besseren Sichtbarkeit wurde die Adresse innerhalb der Stadtgrenzen angegeben.

 

Vereinbaren Sie heute noch einen Termin - wir beraten Sie gerne und zeigen Ihnen alle verfügbaren Einheiten!

www.schantl-ith.at

Bei konkretem Interesse senden wir Ihnen sehr gerne weiterführende Dokumente zu, wie:

o Grundbuchauszug

o Wohnungseigentumsvertrag

o Nutzwertgutachten

o Eigentümerversammlungsprotokoll (Falls vorhanden) etc...

 

Unser Service für Sie: Wenn Sie sich für diese Immobilie entschieden haben, begleiten wir Sie gerne vom Kaufanbot weg inkl. Klärung von Sonderwünschen und der Vertragsunterzeichnung über die Wohnungsübergabe bis hin zu diversen Ummeldungen wie Strom und Gas. Entsprechende Formulare oder auch Meldezettel stellen wir Ihnen sehr gerne zur Verfügung.

Gerne unterstützen wir Sie auch bei der Finanzierung Ihres Traumobjekts und finden mit unseren langjährigen Partnern die besten Konditionen für Sie.

www.schantl-ith.at

Wir weisen darauf hin, dass zwischen dem Vermittler und dem zu vermittelnden Dritten ein familiäres oder wirtschaftliches Naheverhältnis besteht.

Der Vermittler ist als Doppelmakler tätig.


Infrastruktur / Entfernungen

Gesundheit
Arzt <1.000m
Apotheke <1.000m
Klinik <3.250m
Krankenhaus <5.500m

Kinder & Schulen
Schule <1.000m
Kindergarten <1.000m
Universität <1.250m
Höhere Schule <2.750m

Nahversorgung
Supermarkt <750m
Bäckerei <1.000m
Einkaufszentrum <1.000m

Sonstige
Geldautomat <1.500m
Bank <1.250m
Polizei <1.000m
Post <1.250m

Verkehr
Bus <250m
U-Bahn <3.000m
Straßenbahn <3.750m
Bahnhof <3.000m
Autobahnanschluss <6.750m

Angaben Entfernung Luftlinie / Quelle: OpenStreetMap

Kabel/SAT/TV: JA
Barrierefrei: JA
Provision: 3% des Kaufpreises zzgl. 20% USt.


Alle Details anzeigen

KONTAKT






 

Lasse dich kostenlos vom Anbieter dieser Immobilie zurückrufen.







 


 
Schantl ITH Immobilientreuhand GmbH
Mark Prettenthaler
Telefonnummer anzeigen Telefon Allgemein: +436643070009
Handy Bearbeiter: +436505675611
 
Bitte dem Makler die FindMyHome.at - ID bekanntgeben: 5653650

Bewertungen dieses Anbieters
Qualitätsmakler
Qualitätsmakler:
2015, 2016, 2018, 2019, 2020, 2021, 2023 , 2024, 2025, 2026,
Netiquette
Freundlichkeit
80 %

BEWERTUNGEN DIESES ANBIETERS

 
Qualitätsmakler
UNSERE HALL OF FAME DER BESTEN ANBIETER
Qualit�tsmakler
Qualitätsmakler
2015, 2016, 2018, 2019, 2020, 2021, 22/23, 2024, 2025, 2026
Antwortzeit
ø 48h ANTWORT
Weiterempfehlung
WIRD GERNE

Freundlichkeit
BESONDERS
FREUNDLICH
Netiquette
FINDMYHOME
NETIQUETTE
Auch du kannst bewerten! 7 Tage nach deiner Anfrage erhältst du dafür von uns ein Bewertungsmail.
Alle Infos zu unseren Auszeichnungen und dem FINDMYHOME.AT Qualitätsprogramm findest du hier: Übersicht anzeigen

FINANZIERUNG
?>

Du willst wissen, wie viel dein Umzug kosten wird?

Mach gleich den kostenlosen Preisvergleich und schau, welche seriösen Anbieter in deiner Region günstig deinen Umzug organisieren


ZUM UMZUGS-VERGLEICH
-->

MYHOME BLOG
SuchAgentin auf FindMyHome.at
Unterschiedlichen Rechtsthemen, köstliche Rezepte, neueste Design-Highlights, sowie aktuelle Technik-Tools für Ihr Eigenheim.


FINDMYHOME.AT SUCHAGENTIN
SuchAgentin auf FindMyHome.at
Hallo, soll ich dir ähnliche Immobilien kostenfrei per E-Mail schicken?


ÄHNLICHE IMMOBILIEN
Aehnliche Immobilie - Vorschaubild 1

NEU! Erstbezug 2-3 Zimmer Terrasse Nähe U2 1220 Wien... - Objektnr. 5581913

47,50 m² - 2.0 Zimmer
329000 €
PLZ: 1220

Mehr anzeigen

Aehnliche Immobilie - Vorschaubild 2

Licht. Luft. Neubau. Terrasse. Zuhause.! Die perfekte Anlage... - Objektnr. 5649635

43,64 m² - 2.0 Zimmer
256036 €
PLZ: 1220

Mehr anzeigen

Aehnliche Immobilie - Vorschaubild 3

NEU! Photovoltaik Bezugsfertig Balkon/Terrasse 1220 Wien... - Objektnr. 5438628

57,00 m² - 2.0 Zimmer
329000 €
PLZ: 1220

Mehr anzeigen

Durch die Nutzung unserer Seite erklären Sie sich mit der Verwendung von Cookies zur Verbesserung Ihres Online-Erlebnisses einverstanden. Detaillierte Informationen zu diesem und weiteren Themen erhalten Sie in unserer Datenschutzerklärung.