MEIN ERGEBNIS ANPASSEN

Viel draußen, smart drinnen - Gartenwohnung für modernes Wohnen - 3 Zimmer im Erstbezug! - Objektnr. 5653646


ökologisch beheizt
1210
Ort
66,89 m²
Fläche
3.0
Zimmer

ECKDATEN
FindMyHome.at // Externe Immobilien-ID5653646 // 297745
ImmobilienartEigentum
AnschriftPlatzergasse
1210 Wien
Baujahr2024
Befeuerung
Luftwärmepumpe
Geschosse4
Fläche66,89 m²
Terrassen1 (16,00 m²)
Zimmer3.0
Bad1
WC1
 Abstellraum
Kaufpreis:€ 399.000,00
Ratenzahlung:Finanzierungsmöglichkeiten für diese Immobilie anzeigen
Provision: 3% zzgl. 20% Ust.







BESCHREIBUNG

Viel draußen, smart drinnen - Gartenwohnung für modernes Wohnen - 3 Zimmer im Erstbezug!

Hier freuen Sie sich jeden Tag auf´s Heimkommen...

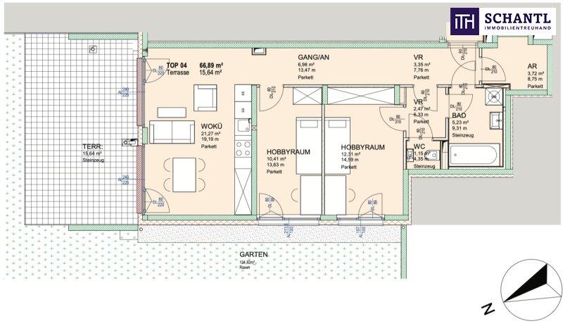
Diese kompakte und optimal geschnittene 3-Zimmer-Gartenwohnung im 21. Bezirk überzeugt durch eine durchdachte Raumaufteilung und großzügige Freiflächen perfekt für Paare, kleine Familien oder Anleger.

Auf rund 67 m² Wohnfläche erwartet Sie ein funktionaler Grundriss mit einem zentralen Vorraum, der alle Räume ideal erschließt. Die ca. 21 m² große Wohnküche bildet das Herzstück der Wohnung und bietet ausreichend Platz für Kochen, Essen und gemütliches Beisammensein.

Zwei Schlafzimmer mit ca. 10,5 m² und 12,5 m² eignen sich ideal als Kinder-, Arbeits- oder Gästezimmer. Das Badezimmer ist mit einer Badewanne ausgestattet, ergänzt durch ein separates WC mit Handwaschbecken.

Ein besonderes Highlight ist der großzügige Außenbereich: Eine ca. 15,6 m² große Terrasse sowie ein rund 135 m² großer Eigengarten schaffen viel Raum zum Entspannen, Spielen oder Genießen im Freien.

Die Nord- und Westausrichtung sorgt für angenehme Lichtverhältnisse und stimmungsvolle Abendsonne.

Als Erstbezug präsentiert sich die Wohnung in hochwertiger Ausführung mit stilvollem Fischgrät-Echtholzparkett, 3-Scheiben Isolierverglasung, elektrische Rollläden, Fußbodenheizung sowie effizienter Luftwärmepumpe ein zukunftsorientiertes Wohnkonzept mit besonderem Wohngefühl.

Eine ideale Kombination aus kompaktem Wohnen und großzügigem Freiraum ruhig gelegen und dennoch bestens angebunden.

Wohnfläche: ca. 66,90 m² + Terrasse: ca. 15,64 m² + Garten: ca. 135 m² + Kellerabteil 

Kaufpreis: € 399.000,-

KP Garage (optional): € 21.500,-

Provision: 3% zzgl. 20% Ust.

 

Vereinbaren Sie heute noch einen Termin - wir beraten Sie gerne und zeigen Ihnen alle verfügbaren Einheiten!

www.schantl-ith.at

Bei konkretem Interesse senden wir Ihnen sehr gerne weiterführende Dokumente zu, wie:

o Grundbuchauszug

o Wohnungseigentumsvertrag

o Nutzwertgutachten

o Eigentümerversammlungsprotokoll (Falls vorhanden) etc...

 

Unser Service für Sie: Wenn Sie sich für diese Immobilie entschieden haben, begleiten wir Sie gerne vom Kaufanbot weg inkl. Klärung von Sonderwünschen und der Vertragsunterzeichnung über die Wohnungsübergabe bis hin zu diversen Ummeldungen wie Strom und Gas. Entsprechende Formulare oder auch Meldezettel stellen wir Ihnen sehr gerne zur Verfügung.

Gerne unterstützen wir Sie auch bei der Finanzierung Ihres Traumobjekts und finden mit unseren langjährigen Partnern die besten Konditionen für Sie.

www.schantl-ith.at

Wir weisen darauf hin, dass zwischen dem Vermittler und dem zu vermittelnden Dritten ein familiäres oder wirtschaftliches Naheverhältnis besteht.

Der Vermittler ist als Doppelmakler tätig.


Infrastruktur / Entfernungen

Gesundheit
Arzt <250m
Apotheke <750m
Klinik <2.500m
Krankenhaus <1.000m

Kinder & Schulen
Schule <500m
Kindergarten <250m
Universität <1.250m
Höhere Schule <3.500m

Nahversorgung
Supermarkt <750m
Bäckerei <750m
Einkaufszentrum <1.750m

Sonstige
Bank <1.000m
Geldautomat <1.000m
Post <1.500m
Polizei <1.000m

Verkehr
Bus <250m
U-Bahn <3.250m
Straßenbahn <250m
Bahnhof <2.000m
Autobahnanschluss <2.250m

Angaben Entfernung Luftlinie / Quelle: OpenStreetMap

Objekt ist für eine Wohngemeinschaft geeignet
Kabel/SAT/TV: JA
Provision: 3% des Kaufpreises zzgl. 20% USt.


Alle Details anzeigen

KONTAKT






 

Lasse dich kostenlos vom Anbieter dieser Immobilie zurückrufen.







 


 
Schantl ITH Immobilientreuhand GmbH
Mark Prettenthaler
Telefonnummer anzeigen Telefon Allgemein: +436643070009
Handy Bearbeiter: +436505675611
 
Bitte dem Makler die FindMyHome.at - ID bekanntgeben: 5653646

Bewertungen dieses Anbieters
Qualitätsmakler
Qualitätsmakler:
2015, 2016, 2018, 2019, 2020, 2021, 2023 , 2024, 2025, 2026,
Netiquette
Freundlichkeit
80 %

BEWERTUNGEN DIESES ANBIETERS

 
Qualitätsmakler
UNSERE HALL OF FAME DER BESTEN ANBIETER
Qualit�tsmakler
Qualitätsmakler
2015, 2016, 2018, 2019, 2020, 2021, 22/23, 2024, 2025, 2026
Antwortzeit
ø 48h ANTWORT
Weiterempfehlung
WIRD GERNE

Freundlichkeit
BESONDERS
FREUNDLICH
Netiquette
FINDMYHOME
NETIQUETTE
Auch du kannst bewerten! 7 Tage nach deiner Anfrage erhältst du dafür von uns ein Bewertungsmail.
Alle Infos zu unseren Auszeichnungen und dem FINDMYHOME.AT Qualitätsprogramm findest du hier: Übersicht anzeigen

FINANZIERUNG
?>

Du willst wissen, wie viel dein Umzug kosten wird?

Mach gleich den kostenlosen Preisvergleich und schau, welche seriösen Anbieter in deiner Region günstig deinen Umzug organisieren


ZUM UMZUGS-VERGLEICH
-->

MYHOME BLOG
SuchAgentin auf FindMyHome.at
Unterschiedlichen Rechtsthemen, köstliche Rezepte, neueste Design-Highlights, sowie aktuelle Technik-Tools für Ihr Eigenheim.


FINDMYHOME.AT SUCHAGENTIN
SuchAgentin auf FindMyHome.at
Hallo, soll ich dir ähnliche Immobilien kostenfrei per E-Mail schicken?


ÄHNLICHE IMMOBILIEN
Aehnliche Immobilie - Vorschaubild 1

Erstbezug! Sehr schön aufgeteilte 3-Zimmer Wohnung mit tolle... - Objektnr. 5572305

75,86 m² - 3.0 Zimmer
425000 €
PLZ: 1210

Mehr anzeigen

Aehnliche Immobilie - Vorschaubild 2

NEUES WOHNGLÜCK in Floridsdorf + TOP 2/3 + moderne Erstbezug... - Objektnr. 5635931

68,95 m² - 3.0 Zimmer
417000 €
PLZ: 1210

Mehr anzeigen

Aehnliche Immobilie - Vorschaubild 3

NEU | Exklusive Aktion - Küche inklusive | Jetzt sichern! "D... - Objektnr. 5568581

54,96 m² - 2.0 Zimmer
419000 €
PLZ: 1210

Mehr anzeigen

Durch die Nutzung unserer Seite erklären Sie sich mit der Verwendung von Cookies zur Verbesserung Ihres Online-Erlebnisses einverstanden. Detaillierte Informationen zu diesem und weiteren Themen erhalten Sie in unserer Datenschutzerklärung.