MEIN ERGEBNIS ANPASSEN

Entzückende Dachterrassenwohnung mit Blick auf den Wienerwaldsee - Objektnr. 5651636

  • Blick zum Wienerwaldsee
  • gartenseitige Hausansicht
  • Wohnzimmer mit zwei Balkonen
  • Vorraum
  • Küche mit Geräten
  • Wohnbereich mit Balkonausgang
  • Wohnzimmer mit zwei Balkonen
  • Ausblick vom Balkon
  • Badezimmer mit Wanne und Waschmaschinenanschluss
  • Zimmer
  • Gemeinschaftsgarten
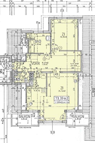
  • Grundriss Skizze
3013
Ort
73,00 m²
Fläche
2.0
Zimmer

ECKDATEN
FindMyHome.at // Externe Immobilien-ID5651636 // 95386
ImmobilienartWohnung - Eigentum
Anschrift3013 Tullnerbach
Baujahr1994
Befeuerung
Fläche73,00 m²
Zimmer2.0
Bad1
WC1
Kaufpreis:€ 270.000,00
Ratenzahlung:Finanzierungsmöglichkeiten für diese Immobilie anzeigen
Provision: 3% des Kaufpreises zzgl. 20% USt.







BESCHREIBUNG

Entzückende Dachterrassenwohnung mit Blick auf den Wienerwaldsee

Diese entzückende Wohnanlage liegt in einer besonders begehrten Lage am westlichen Stadtrand von Wien und verbindet naturnahes Wohnen mit hervorragender Anbindung an die Stadt. Eingebettet in die Hügellandschaft des Wienerwaldes bietet die Umgebung hohe Lebensqualität, Ruhe und vielfältige Erholungsmöglichkeiten, wobei der nahe Wienerwaldsee zu Spaziergängen und Freizeitaktivitäten einlädt.

Die rund 73 m² große Dachgeschoßwohnung verfügt über einen geräumigen Vorraum, ein separates WC, ein Badezimmer mit Badewanne und Waschmaschinenanschluss, eine Küche mit Einbaugeräten sowie ein nordseitiges Schlafzimmer. Herzstück ist der helle, über 24 m² große Wohnbereich mit Zugang zu zwei südöstlich ausgerichteten Balkonen, die viel Sonnenlicht und einen schönen Blick ins Grüne bis zum Wienerwaldsee bieten.

Zur Wohnung gehören außerdem ein Kellerabteil und ein PKW-Stellplatz. Ein großer Gemeinschaftsgarten mit Spielplatz steht ebenfalls zur Verfügung und rundet das Angebot ab.

Die Nahversorgung ist durch zahlreiche Einkaufsmöglichkeiten, Gastronomie sowie Banken und Poststellen in Tullnerbach, Pressbaum und Purkersdorf bestens gewährleistet. Familien profitieren von einem guten Bildungsangebot direkt vor Ort und in der Umgebung, während auch die medizinische Versorgung gesichert ist.

Die Verkehrsanbindung ist ausgezeichnet: Über die nahe Westautobahn (A1) sowie die Bahnverbindung ab Tullnerbach-Pressbaum ist Wien schnell erreichbar, ergänzt durch regionale Busverbindungen direkt vor der Wohnanlage.

Der Vermittler ist als Doppelmakler tätig.


Infrastruktur / Entfernungen

Gesundheit
Arzt <500m
Apotheke <1.000m
Klinik <6.500m

Kinder & Schulen
Schule <1.000m
Kindergarten <2.000m

Nahversorgung
Supermarkt <1.000m
Bäckerei <1.000m
Einkaufszentrum <9.000m

Sonstige
Bank <1.000m
Geldautomat <1.000m
Post <1.000m
Polizei <2.500m

Verkehr
Bus <500m
Bahnhof <1.000m
Autobahnanschluss <3.000m

Angaben Entfernung Luftlinie / Quelle: OpenStreetMap

Gartennutzung: JA
Provision: 3% des Kaufpreises zzgl. 20% USt.


Alle Details anzeigen

KONTAKT






 

Lasse dich kostenlos vom Anbieter dieser Immobilie zurückrufen.







 


 
Rudi Dräxler Immobilientreuhand GesmbH
Sebastian Wiesinger
Telefonnummer anzeigen Telefon Allgemein: +4315774434
Handy Bearbeiter: +4366488361414
 
Bitte dem Makler die FindMyHome.at - ID bekanntgeben: 5651636

Bewertungen dieses Anbieters
Qualitätsmakler
Qualitätsmakler:
2012, 2013, 2014, 2015, 2016, 2017, 2018 , 2019, 2021, 2023, 2024, 2026,
Netiquette
Freundlichkeit
88 %

BEWERTUNGEN DIESES ANBIETERS

 
Qualitätsmakler
UNSERE HALL OF FAME DER BESTEN ANBIETER
Qualit�tsmakler
Qualitätsmakler
2012, 2013, 2014, 2015, 2016, 2017, 2018, 2019, 2021, 22/23, 2024, 2026
Antwortzeit
ø 48h ANTWORT
Weiterempfehlung
WIRD SEHR GERNE

Freundlichkeit
BESONDERS
FREUNDLICH
Netiquette
FINDMYHOME
NETIQUETTE
Auch du kannst bewerten! 7 Tage nach deiner Anfrage erhältst du dafür von uns ein Bewertungsmail.
Alle Infos zu unseren Auszeichnungen und dem FINDMYHOME.AT Qualitätsprogramm findest du hier: Übersicht anzeigen

FINANZIERUNG
?>

Du willst wissen, wie viel dein Umzug kosten wird?

Mach gleich den kostenlosen Preisvergleich und schau, welche seriösen Anbieter in deiner Region günstig deinen Umzug organisieren


ZUM UMZUGS-VERGLEICH
-->

MYHOME BLOG
SuchAgentin auf FindMyHome.at
Unterschiedlichen Rechtsthemen, köstliche Rezepte, neueste Design-Highlights, sowie aktuelle Technik-Tools für Ihr Eigenheim.


FINDMYHOME.AT SUCHAGENTIN
SuchAgentin auf FindMyHome.at
Hallo, soll ich dir ähnliche Immobilien kostenfrei per E-Mail schicken?