Modern saniertes 4-Zimmer Altbaujuwel mit Balkon in zentraler Lage - Objektnr. 5651601
WEITERE MEDIEN
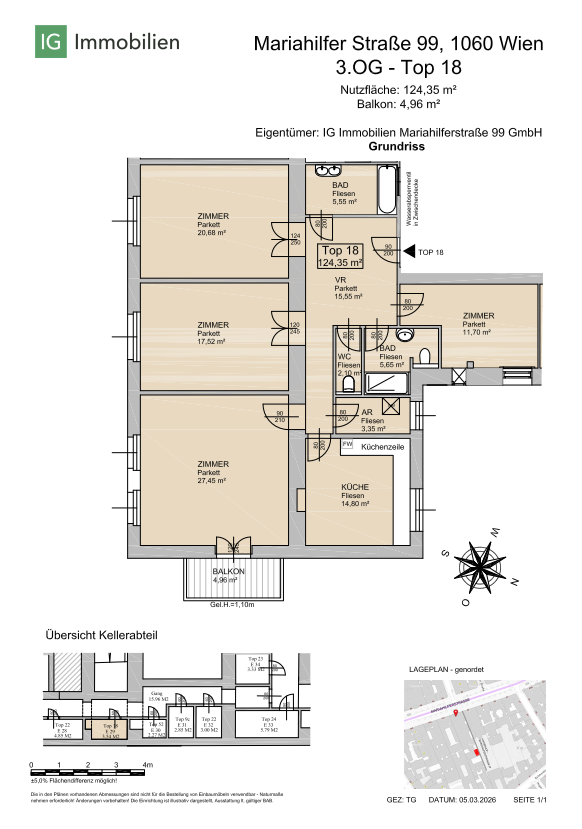
ECKDATEN
BESCHREIBUNG
KONTAKT
Lasse dich kostenlos vom Anbieter dieser Immobilie zurückrufen.
IG Immobilien Management GmbH
Raffael Aulehla
Raffael Aulehla
Telefonnummer anzeigen
Telefon Allgemein: +43800808090
Telefon Bearbeiter: +43800808090
Bitte dem Makler die FindMyHome.at - ID bekanntgeben: 5651601
Telefon Bearbeiter: +43800808090
Bitte dem Makler die FindMyHome.at - ID bekanntgeben: 5651601
BEWERTUNGEN DIESES ANBIETERS
BESONDERS
FREUNDLICH
FREUNDLICH
FINDMYHOME.AT
NETIQUETTE
NETIQUETTE
Auch du kannst bewerten! 7 Tage nach deiner Anfrage erhältst du dafür von uns ein Bewertungsmail.
Alle Infos zu unseren Auszeichnungen und dem FINDMYHOME.AT Qualitätsprogramm findest du hier: Übersicht anzeigen
Alle Infos zu unseren Auszeichnungen und dem FINDMYHOME.AT Qualitätsprogramm findest du hier: Übersicht anzeigen
Du willst wissen, wie viel dein Umzug kosten wird?
Mach gleich den kostenlosen Preisvergleich und schau, welche seriösen Anbieter in deiner Region günstig deinen Umzug organisieren
ZUM UMZUGS-VERGLEICH























