MEIN ERGEBNIS ANPASSEN

Architektur-Juwel von Weissenseer: Wenn Wohnen zur Kunst wird - Objektnr. 5650786


ökologisch beheizt
3522
Ort
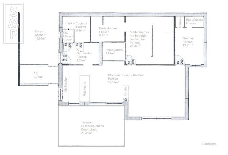
112,25 m²
Fläche
3.0
Zimmer

ECKDATEN
FindMyHome.at // Externe Immobilien-ID5650786 // 396
ImmobilienartHaus - Eigentum
Anschrift3522 Lichtenau im Waldviertel
Baujahr2022
Befeuerung
Luftwärmepumpe
Fläche112,25 m²
Grundfläche853,00 m²
Terrassen1 (26,00 m²)
Zimmer3.0
Bad2
WC2
 Abstellraum
Kaufpreis:€ 495.000,00
Ratenzahlung:Finanzierungsmöglichkeiten für diese Immobilie anzeigen
Provision: 3% des Kaufpreises zzgl. 20% USt.







BESCHREIBUNG

Architektur-Juwel von Weissenseer: Wenn Wohnen zur Kunst wird

Ankommen, Aufatmen, Genießen: Design-Bungalow für höchste Ansprüche.

Vergessen Sie konventionelles Bauen. Dieser 2022 errichtete Architekten-Bungalow der Premium-Manufaktur Weissenseer ist kein gewöhnliches Haus es ist ein Statement für nachhaltigen Luxus und moderne Ästhetik. Auf einer sanften Anhöhe gelegen, verschmelzen hier High-End-Technik und die Ruhe der Natur zu einem einzigartigen Rückzugsort.

Highlights, die begeistern:

  • Licht & Transparenz: Das Herzstück ist das verglaste Atrium mit einem japanisch inspirierten Kirschbaum. Es bringt die Natur direkt in Ihr Wohnzimmer und das Master-Bad.
  • Master-Suite der Extraklasse: Schlafen und Baden mit Blick ins Atrium, inklusive begehbarer Garderobe Ihr privater Wellnessbereich.
  • Gourmet-Küche & Kaminfeuer: Die offene Designer-Küche und der beidseitig verglaste Kamin schaffen eine Atmosphäre, die zum Verweilen einlädt.
  • Nachhaltige Perfektion: Dank ökologischer Bauweise, Luftwärmepumpe und Wohnraumlüftung genießen Sie ein gesundes Raumklima bei minimalen Betriebskosten.

Ob als exklusiver Erstwohnsitz für Paare, die das Besondere suchen, oder als luxuriöses Hideaway für stressgeplagte Städter dieses Objekt bietet Privatsphäre ohne Kompromisse. Während andere noch bauen, ziehen Sie hier in ein fertiges Gesamtkunstwerk ein.

Überzeugen Sie sich selbst von diesem großartigen Wohntraum und kontaktieren Sie uns gerne heute noch für einen Besichtigungstermin.

 

Für ein ausführliches Exposé mit detaillierter Beschreibung und Objektadresse, ersuchen wir um eine schriftliche Anfrage mit Ihren vollständigen Daten (Vor- und Familienname, Postanschrift und Telefonnummer)

 

DIE FINANZIERUNG DEN BESTEN KREDIT BRINGT NUR DER VERGLEICH: 

Nutzen Sie das Know-how unseres unabhängigen Finanzierungspartners MK-Finanz.  Aus einer großen Auswahl von über 120 relevanten Banken und Bausparkassen in Ö und DE, vergleicht er die aktuellen Konditionen und erstellt gemeinsam mit Ihnen ein passendes Kreditangebot einer österreichischen oder deutschen Bank.

Durch diese professionelle Beratung finden Sie eine maßgeschneiderte Finanzierung, die ideal zu Ihren Bedürfnissen und zu Ihrem Leben passt und Sie müssen nicht Ihre kostbare Zeit für unzählige Banktermine aufwenden.

Wir weisen darauf hin, dass zwischen dem Vermittler und dem zu vermittelnden Dritten ein familiäres oder wirtschaftliches Naheverhältnis besteht.

Der Vermittler ist als Doppelmakler tätig.


Infrastruktur / Entfernungen

Gesundheit
Arzt <500m
Klinik <10.000m
Apotheke <8.000m

Kinder & Schulen
Kindergarten <1.000m
Schule <1.000m

Nahversorgung
Supermarkt <1.000m
Bäckerei <4.500m

Sonstige
Bank <500m
Geldautomat <500m
Polizei <8.000m
Post <9.000m

Verkehr
Bus <500m

Angaben Entfernung Luftlinie / Quelle: OpenStreetMap

Barrierefrei: JA
Provision: 3% des Kaufpreises zzgl. 20% USt.


Alle Details anzeigen

KONTAKT






 

Lasse dich kostenlos vom Anbieter dieser Immobilie zurückrufen.







 


 
Seifert Maxian Partner Immobilientreuhand GmbH & Co KG
Daniel Maxian
Telefonnummer anzeigen Telefon Allgemein: +4319346910200
Handy Bearbeiter: +43676842494200
 
Bitte dem Makler die FindMyHome.at - ID bekanntgeben: 5650786

Bewertungen dieses Anbieters
Freundlichkeit
100 %

BEWERTUNGEN DIESES ANBIETERS

 
Weiterempfehlung
WIRD SEHR GERNE

Freundlichkeit
BESONDERS
FREUNDLICH
Auch du kannst bewerten! 7 Tage nach deiner Anfrage erhältst du dafür von uns ein Bewertungsmail.
Alle Infos zu unseren Auszeichnungen und dem FINDMYHOME.AT Qualitätsprogramm findest du hier: Übersicht anzeigen

FINANZIERUNG
?>

Du willst wissen, wie viel dein Umzug kosten wird?

Mach gleich den kostenlosen Preisvergleich und schau, welche seriösen Anbieter in deiner Region günstig deinen Umzug organisieren


ZUM UMZUGS-VERGLEICH
-->

MYHOME BLOG
SuchAgentin auf FindMyHome.at
Unterschiedlichen Rechtsthemen, köstliche Rezepte, neueste Design-Highlights, sowie aktuelle Technik-Tools für Ihr Eigenheim.


FINDMYHOME.AT SUCHAGENTIN
SuchAgentin auf FindMyHome.at
Hallo, soll ich dir ähnliche Immobilien kostenfrei per E-Mail schicken?


Durch die Nutzung unserer Seite erklären Sie sich mit der Verwendung von Cookies zur Verbesserung Ihres Online-Erlebnisses einverstanden. Detaillierte Informationen zu diesem und weiteren Themen erhalten Sie in unserer Datenschutzerklärung.