MEIN ERGEBNIS ANPASSEN

Gefördert . Gepflegt . Gemütlich - Objektnr. 5650622

3264
Ort
€ 604,94
Gesamtkosten
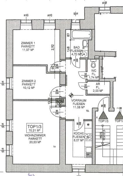
70,21 m²
Fläche
3.0
Zimmer

ECKDATEN
FindMyHome.at // Externe Immobilien-ID5650622 // 3655
ImmobilienartWohnung - Miete
Anschrift3264 Gresten
Baujahr2005
Stock1
Mietdauerunbefristet
Fläche70,21 m²
Zimmer3.0
Bad1
WC1
Brutto-Miete:€ 604,94
Monatliche Gesamtkosten:€ 604,94
Provision: Gemäß Erstauftraggeberprinzip bezahlt der Abgeber die Provision.




BESCHREIBUNG

Gefördert . Gepflegt . Gemütlich

Charmante Mietwohnung im Herzen von Gresten sofort bezugsbereit

Diese gepflegte, rund 70 m² große Mietwohnung in zentraler Lage von Gresten überzeugt durch ihre durchdachte Raumaufteilung und ihren wohnlichen Charakter ideal für Paare, kleine Familien oder Ruhesuchende mit Sinn für Gemütlichkeit.

Die Wohnung verfügt über ein helles Wohnzimmer, zwei weitere Zimmer, eine separate, unmöblierte Küche, einen Vorraum sowie ein Badezimmer mit Badewanne. Das WC ist separat angelegt. Ein praktischer Abstellraum sorgt für zusätzlichen Stauraum. Ergänzt wird das Angebot durch ein eigenes Kellerabteil sowie einen PKW-Stellplatz.

Die Wohnräume sind mit schönen Parkettböden ausgestattet und schaffen eine warme, behagliche Atmosphäre. Bad und WC präsentieren sich in klassisch weißer Verfliesung und gepflegtem Zustand. Vorraum, Küche und Abstellraum sind mit Fliesen im stilvollen Terracotta-Look gestaltet und verleihen der Wohnung einen angenehmen, mediterranen Touch.

Beheizt wird die Wohnung mittels Fernwärme über Radiatoren komfortabel und effizient.

Die Lage im Ortszentrum bietet kurze Wege zu Nahversorgern, Schule und Infrastruktur, während gleichzeitig die umliegende Natur für Erholung und Lebensqualität sorgt.

Details im Überblick:

  • Wohnfläche ca. 70 m²

  • Wohnzimmer + 2 Zimmer

  • Küche unmöbliert

  • Bad mit Wanne, WC getrennt

  • Abstellraum, Vorraum

  • Kellerabteil & PKW-Stellplatz inklusive

  • Fernwärmeheizung

  • Zentrale Lage in Gresten

  • Geförderte Mietwohnung

  • Unbefristeter Mietvertrag (1 Jahr Kündigungsverzicht)

  • Sofort beziehbar

Eine ideale Wohnung für alle, die zentrales Wohnen mit ländlichem Charme verbinden möchten.

Gerne stehe ich für weitere Informationen oder einen Besichtigungstermin zur Verfügung!

Noch nichts gefunden Wir informieren Sie über geeignete Immobilienangebote noch vor allen anderen.
Legen Sie jetzt Ihren individuellen Suchagenten unter folgendem Link an. Wir schicken Ihnen passende Immobilien exklusiv vorab zu.
Suchagent anlegen - https://s-commerz-immobilienvermittlung.service.immo/registrieren/de

Wir weisen darauf hin, dass zwischen dem Vermittler und dem zu vermittelnden Dritten ein wirtschaftliches Naheverhältnis mit gesellschaftlicher Verflechtung besteht.


Infrastruktur / Entfernungen

Gesundheit
Arzt <500m
Apotheke <1.000m

Kinder & Schulen
Schule <1.000m
Kindergarten <1.000m
Universität <7.500m
Höhere Schule <7.500m

Nahversorgung
Supermarkt <500m
Bäckerei <500m

Sonstige
Bank <500m
Geldautomat <1.000m
Post <500m
Polizei <1.000m

Verkehr
Bus <500m
Bahnhof <7.500m

Angaben Entfernung Luftlinie / Quelle: OpenStreetMap

Objekt ist für eine Wohngemeinschaft geeignet
Provision: Gemäß Erstauftraggeberprinzip bezahlt der Abgeber die Provision.


Alle Details anzeigen

KONTAKT






 

Lasse dich kostenlos vom Anbieter dieser Immobilie zurückrufen.







 


 
S-COMMERZ Immobilienvermittlung GmbH
Karin LOCSMANDI
Telefonnummer anzeigen Telefon Allgemein: +4350100672791
Handy Bearbeiter: +436648389815
 
Bitte dem Makler die FindMyHome.at - ID bekanntgeben: 5650622

Bewertungen dieses Anbieters
Qualitätsmakler
Qualitätsmakler:
2018, 2019, 2020,
Netiquette
Freundlichkeit

BEWERTUNGEN DIESES ANBIETERS

 
Qualit�tsmakler
Qualitätsmakler
2018, 2019, 2020
Freundlichkeit
BESONDERS
FREUNDLICH
Netiquette
FINDMYHOME
NETIQUETTE
Auch du kannst bewerten! 7 Tage nach deiner Anfrage erhältst du dafür von uns ein Bewertungsmail.
Alle Infos zu unseren Auszeichnungen und dem FINDMYHOME.AT Qualitätsprogramm findest du hier: Übersicht anzeigen


Du willst wissen, wie viel dein Umzug kosten wird?

Mach gleich den kostenlosen Preisvergleich und schau, welche seriösen Anbieter in deiner Region günstig deinen Umzug organisieren


ZUM UMZUGS-VERGLEICH
-->

MYHOME BLOG
SuchAgentin auf FindMyHome.at
Unterschiedlichen Rechtsthemen, köstliche Rezepte, neueste Design-Highlights, sowie aktuelle Technik-Tools für Ihr Eigenheim.


FINDMYHOME.AT SUCHAGENTIN
SuchAgentin auf FindMyHome.at
Hallo, soll ich dir ähnliche Immobilien kostenfrei per E-Mail schicken?


ÄHNLICHE IMMOBILIEN
Aehnliche Immobilie - Vorschaubild 1

Geförderte Wohnung mit Balkon - Objektnr. 5650620


76,29 m² - 3.0 Zimmer
686.61 €
PLZ: 3263

Mehr anzeigen

Aehnliche Immobilie - Vorschaubild 2

Geförderte Wohnung in Randegg - Objektnr. 5650619


76,29 m² - 3.0 Zimmer
686.61 €
PLZ: 3263

Mehr anzeigen

Aehnliche Immobilie - Vorschaubild 3

Geförderte 3-Zimmerwohnung - Objektnr. 5642964


76,29 m² - 3.0 Zimmer
686.61 €
PLZ: 3263

Mehr anzeigen

Durch die Nutzung unserer Seite erklären Sie sich mit der Verwendung von Cookies zur Verbesserung Ihres Online-Erlebnisses einverstanden. Detaillierte Informationen zu diesem und weiteren Themen erhalten Sie in unserer Datenschutzerklärung.