Familienfreundliche geförderte 4-Zimmer-Wohnung mit Balkon und Badeteich in Nöchling
Im idyllischen Ort Nöchling im Bezirk Melk befindet sich diese attraktive 4-Zimmer-Mietwohnung, die besonders für Familien ein ideales Zuhause bietet.
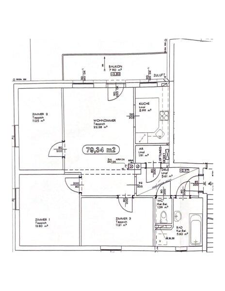
Die Wohnung verfügt über rund 79 m² Wohnfläche und überzeugt durch eine durchdachte Raumaufteilung sowie eine helle und freundliche Wohnatmosphäre. Das Wohnzimmer mit integrierter Kochnische bildet den Mittelpunkt der Wohnung und bietet ausreichend Platz für gemeinsame Stunden mit Familie und Freunden.
Vom Wohnbereich aus gelangen Sie direkt auf den Balkon, der einen schönen Blick auf den Badeteich und den Spielplatz bietet perfekt, um entspannte Stunden im Freien zu genießen.
Das Badezimmer mit Badewanne und Dusche lädt zum Entspannen ein, während ein praktischer Abstellraum zusätzlichen Stauraum schafft. Zur Wohnung gehören außerdem ein Kellerabteil sowie ein Autoabstellplatz, der bereits in der Miete inkludiert ist.
Ein besonderes Highlight der Wohnanlage ist der Badeteich direkt vor der Haustür, der in den warmen Monaten für ein echtes Urlaubsgefühl sorgt.
Die Infrastruktur im Ort lässt ebenfalls keine Wünsche offen: Kindergarten, Schule und Einkaufsmöglichkeiten befinden sich direkt in Nöchling. Darüber hinaus lädt die wunderschöne Umgebung mit zahlreichen Wander- und Spazierwegen dazu ein, die Natur aktiv zu genießen.
Diese Wohnung bietet eine hervorragende Gelegenheit für alle, die ruhiges Wohnen in naturnaher Umgebung mit guter Infrastruktur verbinden möchten.
Bezug: ab sofort
Mietdauer: unbefristet (1 Jahr Kündigungsverzicht, danach 3 Monate Kündigungsfrist)
Kostenübersicht
- Finanzierungsbeitrag: € 15.337,65,--
- Monatliche Miete: € 653,46 inkl. Betriebskosten und USt.
- Heizung & Warmwasser: € 30,74 monatlich
Energiekennzahlen
- Heizwärmebedarf: 43,29 kWh/m²a (Klasse B)
- Gesamtenergieeffizienz-Faktor: 1,176 (Klasse C)
Noch nichts gefunden Wir informieren Sie über geeignete Immobilienangebote noch vor allen anderen.
Legen Sie jetzt Ihren individuellen Suchagenten unter folgendem Link an. Wir schicken Ihnen passende Immobilien exklusiv vorab zu.
Suchagent anlegen - https://s-commerz-immobilienvermittlung.service.immo/registrieren/de
Wir weisen darauf hin, dass zwischen dem Vermittler und dem zu vermittelnden Dritten ein wirtschaftliches Naheverhältnis mit gesellschaftlicher Verflechtung besteht.
Infrastruktur / Entfernungen
Gesundheit
Arzt <6.000m
Apotheke <9.000m
Krankenhaus <9.000m
Kinder & Schulen
Schule <1.000m
Kindergarten <500m
Nahversorgung
Supermarkt <500m
Bäckerei <500m
Einkaufszentrum <10.000m
Sonstige
Bank <6.000m
Geldautomat <6.000m
Post <500m
Polizei <9.500m
Verkehr
Bus <500m
Bahnhof <3.000m
Angaben Entfernung Luftlinie / Quelle: OpenStreetMap
Objekt ist für eine Wohngemeinschaft geeignet
Provision: Gemäß Erstauftraggeberprinzip bezahlt der Abgeber die Provision.