MEIN ERGEBNIS ANPASSEN

Im Grünen Mödling - Grüne Stadtvillen - Objektnr. 5650478

2340
Ort
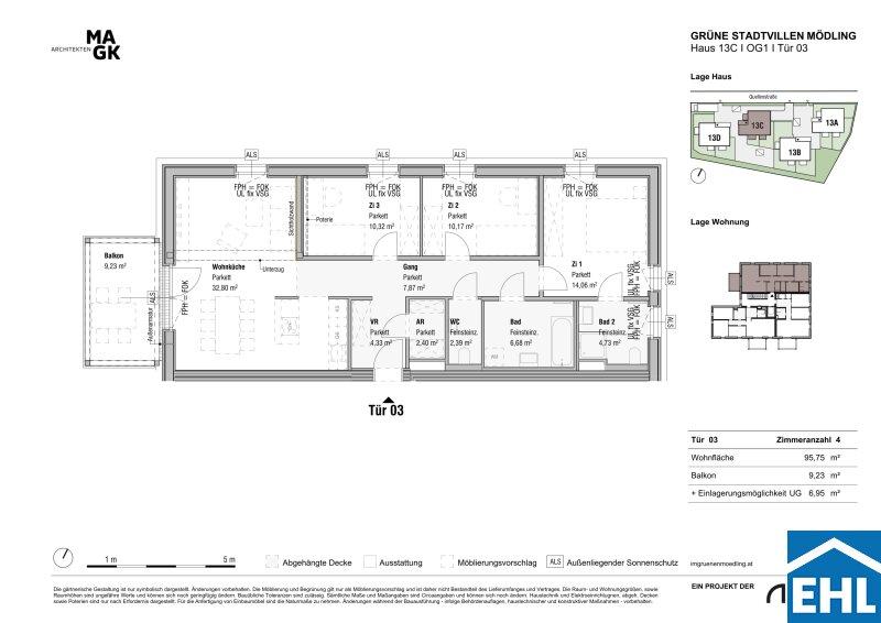
95,75 m²
Fläche
4.0
Zimmer
WEITERE MEDIEN

ECKDATEN
FindMyHome.at // Externe Immobilien-ID5650478 // 91859
ImmobilienartWohnung - Eigentum
AnschriftQuellenstraße
2340 Mödling
Baujahr2026
Stock1
Geschosse4
Fläche95,75 m²
Zimmer4.0
Bad2
WC2
 Abstellraum
Kaufpreis:€ 659.500,00
Ratenzahlung:Finanzierungsmöglichkeiten für diese Immobilie anzeigen
Provision: Provision bezahlt der Abgeber.







BESCHREIBUNG

Im Grünen Mödling - Grüne Stadtvillen

Im Grünen Mödling Grüne Stadtvillen

Nachhaltig wohnen. Urban leben. Natürlich ankommen.

Mit Sommer 2026 werden vier baulich voneinander getrennte Stadtvillen in moderner Holzbauweise bezugsfertig. Die jeweils viergeschossigen Gebäude umfassen insgesamt 47 hochwertig geplante Wohnungen mit zwei bis fünf Zimmern und bieten zeitgemäßen Wohnraum für unterschiedlichste Lebensmodelle.

Eine eingeschossige Tiefgarage mit 71 Stellplätzen steht den Bewohnerinnen und Bewohnern zur Verfügung.

Die innovative Holzbauweise setzt neue Maßstäbe in puncto Nachhaltigkeit und Wohnqualität. Im Inneren der Wohnungen bleibt der natürliche Baustoff teilweise sichtbar und schafft eine warme, entschleunigende Raumatmosphäre mit offenem, wohnlichem Charakter. Durchdachte Grundrisse sorgen für optimale Raumnutzung und hohen Komfort.

Alle Wohnungen verfügen über private Freiflächen und verbinden so urbanes Wohnen mit einem naturnahen Lebensgefühl. Ergänzt wird das nachhaltige Gesamtkonzept durch Photovoltaikanlagen auf den Dächern sowie eine moderne Geothermieanlage, die das Gebäudeensemble klimaschonend mit Wärme versorgt.

Die versetzte Anordnung der Stadtvillen fügt sich harmonisch in die Umgebung ein und schafft großzügige, offene Vorplätze sowie gemeinschaftliche Freibereiche. Kinderspielplätze, Gemeinschaftsgärten und liebevoll gestaltete Grünräume prägen den Zwischenraum der Gebäude. Eine teilweise Fassadenbegrünung unterstreicht das grüne, zukunftsorientierte Erscheinungsbild des Projekts.

So entsteht ein Wohnumfeld, das zum Verweilen einlädt, Begegnungen fördert und ein lebendiges, nachbarschaftliches Miteinander ermöglicht ein Zuhause für alle, die Nachhaltigkeit, Komfort und Lebensqualität vereinen möchten.

Ganz in der Nähe der Anlage befindet sich ein weiteres Projekt Am Fliegenspitz in dem wir ebenso Eigentums- sowie Vorsorgewohnungen anbieten. Für nähere Informationen hierfür stehen wir selbstverständlich auch gerne zur Verfügung.


Fertigstellung: voraussichtlich Sommer 2026

In der hauseigenen Tiefgarage stehen Stellplätze zum Ankauf zur Verfügung.

Kaufpreise ab EUR 25.000,-

Der Verkauf erfolgt provisionsfrei für den Käufer!


Das Projekt:

  • 47 Eigentums- und Vorsorgewohnungen
  • Wohnungsgrößen von 53 m² bis 104 m²
    • Tiefgarage mit 71 Stellplätzen (Installation einer E-Ladestation möglich)
  • Gemeinschaftliche Freibereiche wie Kinderspielplätze und Gemeinschaftsgärten
  • Fahrrad- und Kinderwagenabstellräume
  • Eine Einlagerungsmöglichkeit je Wohnung im Untergeschoss
  • Private Freiflächen in Form von Gärten, Balkonen oder Terrassen

 

Die Ausstattung:

  • Fußbodenheizung und -temperierung mittels Sole-Wasser-Wärmepumpe
  • Photovoltaikanlagen
  • Hochwertige Eichenparkettböden
  • Elegantes Feinsteinzeug in den Nassräumen
  • Holz-Holz-Fenster mit 3-fach-Verglasung
  • Außenliegender, elektrisch betriebener Sonnenschutz
  • Markisen auf den Balkonen mit automatischer Windüberwachung im Dachgeschoss
  • Vorbereitung zur nachträglichen Installation von Split-Klimageräten in allen Wohnungen

 

Die Lage & Infrastruktur:

Die Stadtvillen liegen in einer zentralen und zugleich angenehmen Wohnlage in Mödling, einer Stadt mit ausgezeichneter Infrastruktur und hoher Lebensqualität. Die Innenstadt ist in 10-15 Minuten zu Fuß oder in 5-10 Minuten mit Rad, Auto und Öffis erreichbar. Auch Wien erreicht man nach nur rund 45 Minuten mit dem Auto oder Zug.

Öffentliche Anbindung:

Die Stationen der Buslinien 259 und 263 befinden sich nur 4 Gehminuten von der Haustüre entfernt.
Der Bahnhof Mödling ist dadurch schnell erreichbar und bietet u.a. eine schnelle Verbindung nach Wien.

Nahversorgung:

Supermärkte, Bäckereien, Apotheken sowie weitere Geschäfte des täglichen Bedarfs befinden sich im nahen Umfeld. Auch Cafés und Restaurants sind rasch erreichbar.

Medizinische Versorgung:

Eine sehr gute medizinische Infrastruktur mit Allgemein- und Fachärzten, Apotheken sowie dem Landesklinikum Mödling sorgt für umfassende Versorgung.

Schulen und Kindergärten:

Kindergärten sowie Volks- und weiterführende Schulen sind ebenfalls teils fußläufig erreichbar ideal für Familien.

Einen detaillierteren Einblick finden Sie auf unserer EHL-Projekthomepage!

 

Wir weisen darauf hin, dass zwischen dem Vermittler und dem zu vermittelnden Dritten ein familiäres oder wirtschaftliches Naheverhältnis besteht.

Der Vermittler ist als Doppelmakler tätig.


Infrastruktur / Entfernungen

Gesundheit
Arzt <500m
Apotheke <500m
Klinik <750m
Krankenhaus <2.000m

Kinder & Schulen
Schule <250m
Kindergarten <250m
Höhere Schule <500m

Nahversorgung
Supermarkt <250m
Bäckerei <1.250m
Einkaufszentrum <1.500m

Sonstige
Bank <1.000m
Geldautomat <1.000m
Post <1.000m
Polizei <1.250m

Verkehr
Bus <250m
U-Bahn <6.500m
Bahnhof <1.500m
Autobahnanschluss <3.750m
Straßenbahn <3.750m

Angaben Entfernung Luftlinie / Quelle: OpenStreetMap

Provision: Provision bezahlt der Abgeber.


Alle Details anzeigen

KONTAKT






 

Lasse dich kostenlos vom Anbieter dieser Immobilie zurückrufen.







 


 
EHL Wohnen GmbH
Julie Wittrich
Telefonnummer anzeigen Telefon Allgemein: +4315127690405
Handy Bearbeiter: +4366478015358
 
Bitte dem Makler die FindMyHome.at - ID bekanntgeben: 5650478

Bewertungen dieses Anbieters
Qualitätsmakler
Qualitätsmakler:
Netiquette
Freundlichkeit
82 %

BEWERTUNGEN DIESES ANBIETERS

 
Qualitätsmakler
UNSERE HALL OF FAME DER BESTEN ANBIETER
Qualit�tsmakler
Qualitätsmakler
2012, 2013, 2014, 2015, 2016, 2017, 2018, 2019, 2020, 2021, 22/23, 2024, 2025, 2026
Weiterempfehlung
WIRD GERNE

Freundlichkeit
BESONDERS
FREUNDLICH
Netiquette
FINDMYHOME
NETIQUETTE
Auch du kannst bewerten! 7 Tage nach deiner Anfrage erhältst du dafür von uns ein Bewertungsmail.
Alle Infos zu unseren Auszeichnungen und dem FINDMYHOME.AT Qualitätsprogramm findest du hier: Übersicht anzeigen

FINANZIERUNG
?>

Du willst wissen, wie viel dein Umzug kosten wird?

Mach gleich den kostenlosen Preisvergleich und schau, welche seriösen Anbieter in deiner Region günstig deinen Umzug organisieren


ZUM UMZUGS-VERGLEICH
-->

MYHOME BLOG
SuchAgentin auf FindMyHome.at
Unterschiedlichen Rechtsthemen, köstliche Rezepte, neueste Design-Highlights, sowie aktuelle Technik-Tools für Ihr Eigenheim.


FINDMYHOME.AT SUCHAGENTIN
SuchAgentin auf FindMyHome.at
Hallo, soll ich dir ähnliche Immobilien kostenfrei per E-Mail schicken?


ÄHNLICHE IMMOBILIEN
Aehnliche Immobilie - Vorschaubild 1

Ein Zuhause zum Ankommen - Objektnr. 5638675


83,90 m² - 4.0 Zimmer
575000 €
PLZ: 2340

Mehr anzeigen

Aehnliche Immobilie - Vorschaubild 2

Im Grünen Mödling - Grüne Stadtvillen - Objektnr. 5650485


104,13 m² - 5.0 Zimmer
698500 €
PLZ: 2340

Mehr anzeigen

Aehnliche Immobilie - Vorschaubild 3

Im Grünen Mödling - Grüne Stadtvillen - Objektnr. 5650487


82,43 m² - 3.0 Zimmer
558900 €
PLZ: 2340

Mehr anzeigen

Durch die Nutzung unserer Seite erklären Sie sich mit der Verwendung von Cookies zur Verbesserung Ihres Online-Erlebnisses einverstanden. Detaillierte Informationen zu diesem und weiteren Themen erhalten Sie in unserer Datenschutzerklärung.