MEIN ERGEBNIS ANPASSEN

Erstbezug - DachgeschossWohnung mit atemberaubendem Blick - Objektnr. 5650420

1020
Ort
119,00 m²
Fläche
4.0
Zimmer

ECKDATEN
FindMyHome.at // Externe Immobilien-ID5650420 // 7230
ImmobilienartWohnung - Eigentum
Anschrift1020 Wien
Baujahr2026
Stock6
Fläche119,00 m²
Terrassen2 (21,00 m²)
Zimmer4.0
Bad2
WC2
Kaufpreis:€ 1.422.120,00
Ratenzahlung:Finanzierungsmöglichkeiten für diese Immobilie anzeigen
Provision: 3% des Kaufpreises zzgl. 20% USt.







BESCHREIBUNG

Erstbezug - DachgeschossWohnung mit atemberaubendem Blick

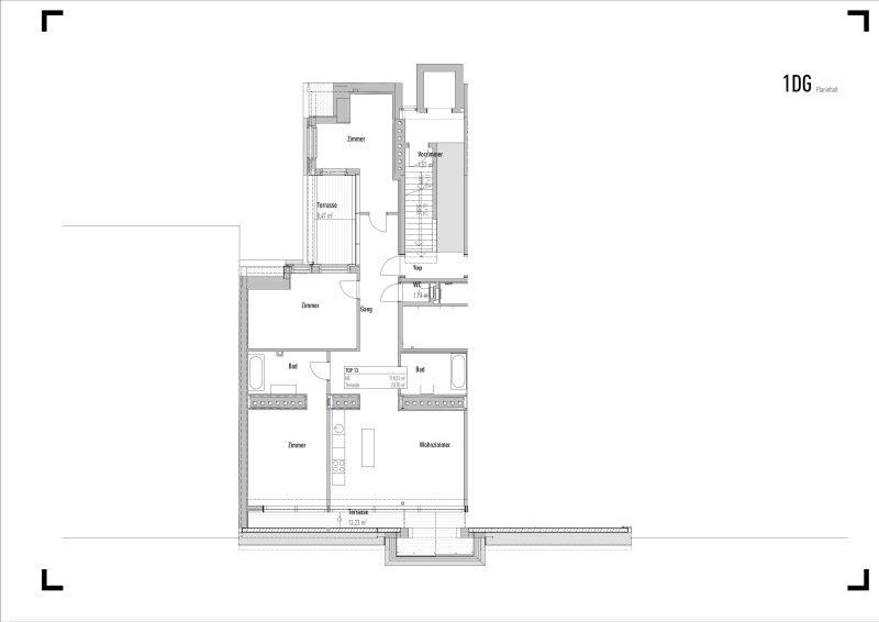
Eckdaten und Raumaufteilung:

- Wohnfläche ca. 119 m2

- Terrassenfläche gesamt ca. 20 m2

- Dachgeschossausbau

- Wohnung wird belagsfertig übergeben (schlüsselfertig ebenfalls möglich)

- traumhafter Blick auf die Jesuitenwiese, Arenawiese

- Stahl/Holz/Ziegel Bauweise

- Fertigstellung Ende 2026

- Lift wird eingebaut

- gesamt 3 Wohnungen im DG

- Luftwärmepumpe

- Fußbodenheizung

- Klimaanlage

- Fassade und Stiegenhaus werden nach Abschluss der Arbeiten gestrichen

 

- 3 Schlaf-/Kinder-/Arbeitszimmer

- Wohnküche mit Anschlüssen für Ihre Küche

- 2x Badezimmer 

- Toilette separat

- 2 Terrassen (1x hofseitig und 1x direkt Blick ins Grüne)

- Grundriss kann noch geändert werden

- Ausrichtung Nord/Osten und Süd/Westen

- wunderschönes Haus 

 

 

Infrastruktur:

- ruhige Wohnlage mit guter Erreichbarkeit

- Erholungsgebiete in der Nähe Prater, Augarten, Donaukanal

- U3 und U1 sind zu Fuß erreichbar, jedoch nicht in unmittelbarer Nähe

- gute Anbindung zur Autobahn und Flughafen

- Geschäfte des täglichen Bedarfs in der Umgebung 

- Gastronomie finden Sie entlang des Donaukanals

 

 

Konditionen:

- Kaufpreis € 1.422.120,00

- Grunderwerbssteuer 3,5 %

- grundbücherliche Eintragung 1,1 %

- Kosten für Anwalt, Notar etc.

- Provision 3 % (von KP) zzgl. 20 % Umsatzsteuer

 

 

WICHTIG: es werden NUR Anfragen mit vollständig ausgefüllten KontaktDaten bearbeitet

Für weitere Fragen stehen wir Ihnen jeder Zeit gerne zur Verfügung. Wir möchten Sie darauf hinweisen, dass die Firma Mirela Kristo Immobilientreuhand GmbH in einem wirtschaftlichen/familiären Naheverhältnis zum Vermieter/Eigentümer steht und gegebenenfalls auch als Doppelmakler tätig ist.

Auf unserer Website finden Sie weitere ImmobilienAngebote  http://www.mirela-kristo.at

Bei Interesse kontaktieren Sie bitte

 

Frau WÖHNHART-KRISTO

+43 (0) 664 306 79 79

 

Maklervereinbarung: Wir ersuchen um Verständnis, dass wir bei Anfragen zur Objektadresse, bzw. Besichtigungstermin aufgrund neuer gesetzlicher Bestimmungen Unterlagen erst dann zusenden können, wenn Sie vorab bestätigen, dass Sie unser sofortiges Tätigwerden wünschen und über Ihre Rücktrittsrechte aufgeklärt wurden. Sie bekommen nach Ihrer schriftlichen Anfrage mit vollständiger Angabe des Namens, Anschrift und Telefonnummer ein Email, in dem Sie diese Punkte bestätigen müssen.

Konditionen: Da es sich um ein Maklerangebot handelt, gelten die Bedingungen der Landesinnung für Immobilien- und Vermögenstreuhänder. Ein entsprechendes Informationsblatt wird dem Exposé beigelegt. Nebenkosten/Kauf: Grunderwerbssteuer 3,5%, Grundbuchseintrag 1,1%, Maklergebühren:3% +20% MwSt.

Nebenkosten/Miete: 2Bruttomonatsmieten bei Wohnimmobilien (Bestellerprinzip), 3 Bruttomonatsmieten bei Gewerbeimmobilien, jeweils + 20% MwSt.

Haftungsausschluss: Wir weisen darauf hin, dass sämtliche Daten im vorliegenden Angebot sowie die von unserem Büro an Sie weitergegebenen Auskünfte, vom Verkäufer der zu vermittelnden Liegenschaft zur Verfügung gestellt wurden. Ebenso sind Informationen von Dritten (z.B. behördliche Informationen) eingeholt worden, auch für diese können wir unsererseits keinerlei Haftung für deren uneingeschränkte Richtigkeit übernehmen.

 

 

 

 


Infrastruktur / Entfernungen

Gesundheit
Arzt <500m
Apotheke <500m
Klinik <1.000m
Krankenhaus <1.000m

Kinder & Schulen
Schule <500m
Kindergarten <500m
Universität <1.000m
Höhere Schule <1.000m

Nahversorgung
Supermarkt <500m
Bäckerei <1.000m
Einkaufszentrum <1.000m

Sonstige
Geldautomat <500m
Bank <500m
Post <1.000m
Polizei <500m

Verkehr
Bus <500m
U-Bahn <1.000m
Straßenbahn <500m
Bahnhof <1.000m
Autobahnanschluss <1.500m

Angaben Entfernung Luftlinie / Quelle: OpenStreetMap

Klimaanlage: JA
Provision: 3% des Kaufpreises zzgl. 20% USt.


Alle Details anzeigen

KONTAKT






 

Lasse dich kostenlos vom Anbieter dieser Immobilie zurückrufen.







 


 
Mirela Kristo Immobilientreuhand GmbH
Mirela WÖHNHART-KRISTO
Telefonnummer anzeigen Telefon Allgemein: +436643067979
 
Bitte dem Makler die FindMyHome.at - ID bekanntgeben: 5650420

Bewertungen dieses Anbieters
Netiquette
75 %

BEWERTUNGEN DIESES ANBIETERS

 
Weiterempfehlung
WIRD GERNE

Netiquette
FINDMYHOME
NETIQUETTE
Auch du kannst bewerten! 7 Tage nach deiner Anfrage erhältst du dafür von uns ein Bewertungsmail.
Alle Infos zu unseren Auszeichnungen und dem FINDMYHOME.AT Qualitätsprogramm findest du hier: Übersicht anzeigen

FINANZIERUNG
?>

Du willst wissen, wie viel dein Umzug kosten wird?

Mach gleich den kostenlosen Preisvergleich und schau, welche seriösen Anbieter in deiner Region günstig deinen Umzug organisieren


ZUM UMZUGS-VERGLEICH
-->

MYHOME BLOG
SuchAgentin auf FindMyHome.at
Unterschiedlichen Rechtsthemen, köstliche Rezepte, neueste Design-Highlights, sowie aktuelle Technik-Tools für Ihr Eigenheim.


FINDMYHOME.AT SUCHAGENTIN
SuchAgentin auf FindMyHome.at
Hallo, soll ich dir ähnliche Immobilien kostenfrei per E-Mail schicken?


ÄHNLICHE IMMOBILIEN
Aehnliche Immobilie - Vorschaubild 1

Wohnungen für jeden Lebensstil - Objektnr. 5615714


100,45 m² - 4.0 Zimmer
1251000 €
PLZ: 1020

Mehr anzeigen

Aehnliche Immobilie - Vorschaubild 2

"DAS ARTMANN" Urban * Am Fluss * Beim Park - Objektnr. 5246404


115,00 m² - 3.0 Zimmer
1520000 €
PLZ: 1020

Mehr anzeigen

Aehnliche Immobilie - Vorschaubild 3

GARAGE OPTIONAL - 32. STOCK - BLICK ÜBER WIEN IN 110 M HÖHE ... - Objektnr. 5612760

125,79 m² - 3.0 Zimmer
1199000 €
PLZ: 1020

Mehr anzeigen

Durch die Nutzung unserer Seite erklären Sie sich mit der Verwendung von Cookies zur Verbesserung Ihres Online-Erlebnisses einverstanden. Detaillierte Informationen zu diesem und weiteren Themen erhalten Sie in unserer Datenschutzerklärung.