MEIN ERGEBNIS ANPASSEN

Leben wie im Paradies - 4-Zimmer-PENTHOUSE mit Rundumblick von der großzügigen Dachterrasse! Erstbezug 2024! - Objektnr. 5649658


ökologisch beheizt
8401
Ort
91,00 m²
Fläche
4.0
Zimmer

ECKDATEN
FindMyHome.at // Externe Immobilien-ID5649658 // 297506
ImmobilienartEigentum
AnschriftZirbenweg
8401 Kalsdorf bei Graz
Baujahr2023
Befeuerung
Fernwärme
Stock4
Fläche91,00 m²
Terrassen1 (86,00 m²)
Zimmer4.0
 Abstellraum
Kaufpreis:€ 549.000,00
Ratenzahlung:Finanzierungsmöglichkeiten für diese Immobilie anzeigen
Provision: Provision bezahlt der Abgeber.







BESCHREIBUNG

Leben wie im Paradies - 4-Zimmer-PENTHOUSE mit Rundumblick von der großzügigen Dachterrasse! Erstbezug 2024!

Leben wie im Paradies 4-Zimmer-PENTHOUSE mit Rundumblick von der großzügigen Dachterrasse! Erstbezug 2024!

Erstbezug - Fertigstellung 2024! PROVISIONFREI! 

 

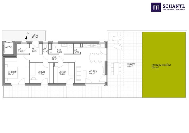
Diese traumhafte 4-Zimmer-PENTHOUSE-WOHNUNG wird gerade in einem höchst modernen Bauprojekt in Kalsdorf bei Graz errichtet. 

Zu den Highlights des PENTHOUSE zählt ganz klar die 85 m² große Dachterrasse mit RUNDUMBLICK, welcher ausreichend Platz für gemütliche Grillabende mit der Familie oder mit Freunden bietet.

Weiters besticht die ca. 91 m² große Wohnung durch ihren effizienten Grundriss sowie die offene Wohnraumgestaltung. Alle Zimmer sind in Richtung Nachmittagssonne ausgerichtet. Hier bleiben definitiv keine Wünsche offen!

Gebaut wird in Ziegel-Massiv-Bauweise mit perfekter österreichischer Baumeisterqualität. 

 

Raumaufteilung:

  • Vorraum 
  • Praktischer Abstellraum 
  • Speis
  • 3 Zimmern (alle mit Ausgang auf die Dachterrasse) 
  • Badezimmer mit Dusche
  • WC
  • Offener Wohn-Essbereich mit Küche und Zugang auf die Dachterrasse 
     

HIGHLIGHTS:

  • große, traumhafte Dachterrasse
  • Ausgang auf die Terrasse von allen Zimmern
  • nur 4 Einheiten gesamt auf der Etage
  • Penthouse mit Premiumausstattung
  • hochwertiger Parkettboden, Eiche matt 
  • elektrisch gesteuerte Raffstores 
  • 3-fach-Verglasung, Kunststofffenster 
  • Haus-Satellitenanlage/SAT-Anschluss
  • hauseigener Tiefgaragen-Stellplatz um € 19.000,-
  • Wasseranschluss auf der Dachterrasse
     

Weitere verfügbare Wohnungsgrößen: 38m² - 117m² 

Ihr Vorteil: Sie können Ihre Wünsche für die Innenplanung einbringen und umsetzen lassen, sofern es die Statik und der Baufortschritt erlauben. 

Da sich das Objekt noch in der Bauphase befindet, wurden zur Visualisierung Symbolbilder verwendet.

 

Worauf noch warten

Vereinbaren Sie noch heute eine Besichtigung oder eine persönliche Beratung mit uns!

Sie wollen Ihre Immobilie verkaufen Dann sind Sie bei uns goldrichtig!


Wir sind gerne für Sie da und unterstützen Sie unverbindlich bei der Bewertung Ihrer Immobilie. Mit viel Sorgfalt stellen wir Ihnen alle wichtigen Informationen und Unterlagen zusammen, damit Sie die besten Entscheidungen treffen können.

In Kooperation mit unserer SFI Vermögenstreuhand begleiten wir Sie bei der Verwirklichung Ihres Traumobjekts und unterstützen Sie beim nachhaltigen Vermögensaufbau.

Mit unseren erfahrenen Experten sorgen wir dafür, dass Sie die besten Konditionen erhalten damit Ihre Träume Wirklichkeit werden!

www.schantl-ith.at in Kooperation mit www.sfi-invest.com 

Die Angaben über das angebotene Objekt erfolgen mit der Sorgfalt eines ordentlichen Immobilienmaklers; für die Richtigkeit solcher Angaben, die auf Informationen der über das Objekt Verfügungsberechtigten beruhen, wird keine Gewähr geleistet.

Wir weisen darauf hin, dass zwischen dem Vermittler und dem zu vermittelnden Dritten ein familiäres oder wirtschaftliches Naheverhältnis besteht.

Der Vermittler ist als Doppelmakler tätig.


Infrastruktur / Entfernungen

Gesundheit
Arzt <250m
Apotheke <2.500m
Klinik <9.000m
Krankenhaus <7.000m

Kinder & Schulen
Schule <1.750m
Kindergarten <1.500m
Universität <8.000m
Höhere Schule <8.750m

Nahversorgung
Supermarkt <750m
Bäckerei <2.500m
Einkaufszentrum <5.250m

Sonstige
Geldautomat <2.250m
Bank <2.250m
Post <2.500m
Polizei <2.000m

Verkehr
Bus <500m
Straßenbahn <5.750m
Autobahnanschluss <3.500m
Bahnhof <2.000m
Flughafen <2.250m

Angaben Entfernung Luftlinie / Quelle: OpenStreetMap

Kabel/SAT/TV: JA
Rollstuhlgerecht: JA
Barrierefrei: JA
Provision: Provision bezahlt der Abgeber.


Alle Details anzeigen

KONTAKT






 

Lasse dich kostenlos vom Anbieter dieser Immobilie zurückrufen.







 


 
Schantl ITH Immobilientreuhand GmbH
Christopher Wischenbart, BSc
Telefonnummer anzeigen Handy Bearbeiter: +436642507403
 
Bitte dem Makler die FindMyHome.at - ID bekanntgeben: 5649658

Bewertungen dieses Anbieters
Qualitätsmakler
Qualitätsmakler:
2015, 2016, 2018, 2019, 2020, 2021, 2023 , 2024, 2025, 2026,
Netiquette
Freundlichkeit
80 %

BEWERTUNGEN DIESES ANBIETERS

 
Qualitätsmakler
UNSERE HALL OF FAME DER BESTEN ANBIETER
Qualit�tsmakler
Qualitätsmakler
2015, 2016, 2018, 2019, 2020, 2021, 22/23, 2024, 2025, 2026
Antwortzeit
ø 48h ANTWORT
Weiterempfehlung
WIRD GERNE

Freundlichkeit
BESONDERS
FREUNDLICH
Netiquette
FINDMYHOME
NETIQUETTE
Auch du kannst bewerten! 7 Tage nach deiner Anfrage erhältst du dafür von uns ein Bewertungsmail.
Alle Infos zu unseren Auszeichnungen und dem FINDMYHOME.AT Qualitätsprogramm findest du hier: Übersicht anzeigen

FINANZIERUNG
?>

Du willst wissen, wie viel dein Umzug kosten wird?

Mach gleich den kostenlosen Preisvergleich und schau, welche seriösen Anbieter in deiner Region günstig deinen Umzug organisieren


ZUM UMZUGS-VERGLEICH
-->

MYHOME BLOG
SuchAgentin auf FindMyHome.at
Unterschiedlichen Rechtsthemen, köstliche Rezepte, neueste Design-Highlights, sowie aktuelle Technik-Tools für Ihr Eigenheim.


FINDMYHOME.AT SUCHAGENTIN
SuchAgentin auf FindMyHome.at
Hallo, soll ich dir ähnliche Immobilien kostenfrei per E-Mail schicken?


ÄHNLICHE IMMOBILIEN
Aehnliche Immobilie - Vorschaubild 1

EINE WAHRE MÄRCHEN-PENTHOUSE-WOHNUNG mit einer überdimension... - Objektnr. 5636996

90,00 m² - 4.0 Zimmer
539000 €
PLZ: 8401

Mehr anzeigen

Durch die Nutzung unserer Seite erklären Sie sich mit der Verwendung von Cookies zur Verbesserung Ihres Online-Erlebnisses einverstanden. Detaillierte Informationen zu diesem und weiteren Themen erhalten Sie in unserer Datenschutzerklärung.