MEIN ERGEBNIS ANPASSEN

++ SKYLINE FEELING PUR ++ PENTHOUSE mit WIENBLICK - Objektnr. 5649391

  • A
  • Aa
  • B
  • C
  • D
  • E
  • F
  • G
  • H
  • I
  • Ii
  • J
  • K
  • L
  • M
  • O
  • P
  • Q
  • R
  • S
  • T
  • U
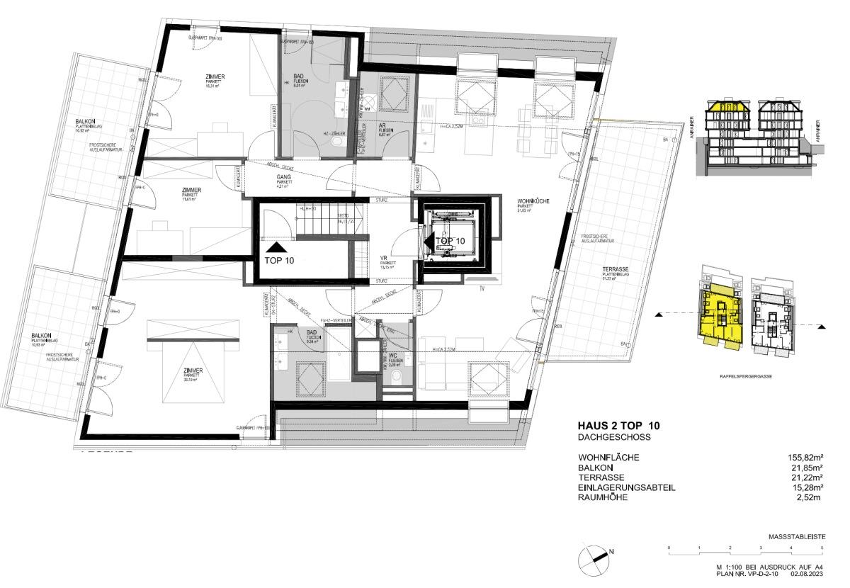
  • Haus 2 TOP 10
  • Prima Logo
1190
Ort
155,82 m²
Fläche
4
Zimmer

ECKDATEN
FindMyHome.at // Externe Immobilien-ID5649391 // 362/10446
ImmobilienartWohnung - Eigentum
Anschrift1190 Wien
Baujahr2025
Alt- oder NeubauNeubau
NäheNeustift am Walde
Liftja
Garagenplätze2
KellerJa
Beziehbar absofort
Fläche155,82 m²
Balkon3 (43,00 m²)
Zimmer4
Bad2
WC2
 Abstellraum
Kaufpreis:€ 1.980.000,00
Ratenzahlung:Finanzierungsmöglichkeiten für diese Immobilie anzeigen
Mehrwertsteuer:€ 1.198,00
Provision: provisionsfrei







BESCHREIBUNG

++ SKYLINE FEELING PUR ++ PENTHOUSE mit WIENBLICK

++ SKYLINE FEELING PUR ++ PENTHOUSE mit WIENBLICK

++ NEUES PROJEKT ++ Exklusive Lage mit PANORAMABLICK

++ PROVISIONSFREI FÜR DEN KÄUFER ++


In einer begehrten und exklusiven Grünruhelage im 19. Bezirk versprechen 20 Eigentumswohnungen ein exklusives Leben für Singles, Paare und Familien.

Die moderne Wohnanlage mit einer Tiefgarage wurde erst kürzlich fertiggestellt und überzeugt mit durchdachten Grundrisslösungen, hochwertiger Ausstattungsqualität und Freiflächen in Form von Eigengärten, Balkone oder Terrassen.

Haus 2 Top 10 im Dachgeschoss:

Diese exklusive VIER Zimmer Wohnung auf ca. 155,82 m² Wohnfläche verfügt über eine großzügige Terrasse und zwei Balkone.

Die Wohnung ist aufgeteilt wie folgt:
* Vorraum mit direktem Liftzugang
* große Wohnküche
* drei Schlafzimmer
* Schrankraum
* Bad 1 mit Walk-In Dusche und Toilette
* Bad 2 mit Wanne
* getrennte Toilette
* Abstellraum
* Terrasse ca. 21,22 m²
* Balkone ca. 21,85 m²

Die Wohnung ist lichtdurchflutet und süd-westseitig ausgerichtet!

KAUFPREIS:

Der Kaufpreis beträgt: EUR 1.980.000.-

Der Kaufpreis für Anleger beträgt: EUR 1.848.800.- zzgl. 20 % Ust.

FÜR EINE BESICHTIGUNG STEHE ICH JEDERZEIT ZUR VERFÜGUNG!

Ansprechpartnerin:
Frau Franziska Schmutz
Tel: 0664 346 13 11
Mail: office@ps-immo.co.at
Homepage: www.ps-immo.co.at

WEITERE INFORMATIONEN:

* zwei Bauteile für mehr Privatsphäre und Individualität
* zwischen 45 m² und 155 m²
* gehobene Ausstattung
* Panoramablick und WIENBLICK
* Eichenböden und stilvolle Markensanitärausstattung
* Sonnenschutz in Form von Rollläden und Raffstores
* perfekte Raumaufteilung
* barrierefrei
* Home-Delivery-Space
* ausgezeichnete Infrastruktur
* modernes Design und eine einzigartige Atmosphäre
* durch die Hanglage optimal belichtet mit wunderschöner Aussicht

Jeder Wohnung wird ebenfalls ein bequemes Kellerabteil zugeordnet.
Auch ein energieeffizientes Heizsystem in Form einer Luft - Wärmepumpe betriebenen Fußbodenheizung sorgen für leistbare moderate Heiz- und Warmwasserkosten.

Im Erdgeschoss und Untergeschoss befinden sich die Allgemeinräume wie Technikraum, Müllraum sowie der Kinderwagen- und Fahrradraum.
Außerdem stehen noch Tiefgaragenplätze zur Verfügung, die jeweils eine Vorbereitung für eine E-Ladestationen bieten.

Die Lage:
Eingebettet in die Döblinger Weinlandschaft bietet die traumhafte Lage des Wohnprojekts perfekte Voraussetzungen, um das Leben in vollen Zügen zu genießen.Das Wiener Zentrum kann innerhalb von einer halben Stunde mit dem Auto oder mit den öffentlichenVerkehrsmitteln erreicht werden.
Supermärkte, ein Kindergarten und eine Volksschule befinden sich inunmittelbarer Nähe.
Von Ihrer privaten Terrasse haben Sie die Umgebung stets im Blick und können sicham fantastischen Ausblick auf die Weinlandschaft undWien erfreuen.

Wenige Gehminuten entfernt verkehrt die Buslinie 35A, mit dieser erreichen Sie die Schnellbahnstation "Krottenbachstraße" der Linie S45 sowie die U-Bahn-Station "Nußdorferstraße" der Linie U6.

Hier auch der Link zum YouTube-Video:

https://www.youtube.com/watch?v=IjvhaP0AHQI

Nebenkosten:
Grunderwerbssteuer: 3,5% vom Kaufpreis
Grundbucheintragungsgebühr: 1,1% vom Kaufpreis
Kosten der Vertragserrichtung: nur 1,5% vom Kaufpreis + Ust. (Anwaltsgebunden)
Maklerprovision: PROVISIONSFREI für den KÄUFER

Ansprechpartnerin:
Frau Franziska Schmutz
Tel: 0664 346 13 11
Mail: office@ps-immo.co.at
Homepage: www.ps-immo.co.at

Wir halten fest, dass ein wirtschaftliches Naheverhältnis zum Abgeber besteht - eine Weitergabe an andere Interessenten ohne Rücksprache mit uns ist nicht gestattet.
Prima Service PS Immobilien tritt als Doppelmakler auf. Alle Angaben sind ohne Gewähr und basieren ausschließlich auf Informationen, die uns von unserem Auftraggeber zur Verfügung gestellt wurden.
Wir übernehmen keine Gewähr für die Vollständigkeit, Richtigkeit und Aktualität dieser Angaben.Barrierefrei: JA
Provision: provisionsfrei


Alle Details anzeigen

KONTAKT






 

Lasse dich kostenlos vom Anbieter dieser Immobilie zurückrufen.







 


 
Prima Service PS Immobilien
PS Immo
Telefonnummer anzeigen Handy Bearbeiter: +436643461311
 
Bitte dem Makler die FindMyHome.at - ID bekanntgeben: 5649391

Bewertungen dieses Anbieters
Qualitätsmakler
Qualitätsmakler:
Freundlichkeit

BEWERTUNGEN DIESES ANBIETERS

 
Qualitätsmakler
UNSERE HALL OF FAME DER BESTEN ANBIETER
Qualit�tsmakler

Freundlichkeit
BESONDERS
FREUNDLICH
Auch du kannst bewerten! 7 Tage nach deiner Anfrage erhältst du dafür von uns ein Bewertungsmail.
Alle Infos zu unseren Auszeichnungen und dem FINDMYHOME.AT Qualitätsprogramm findest du hier: Übersicht anzeigen

FINANZIERUNG
?>

Du willst wissen, wie viel dein Umzug kosten wird?

Mach gleich den kostenlosen Preisvergleich und schau, welche seriösen Anbieter in deiner Region günstig deinen Umzug organisieren


ZUM UMZUGS-VERGLEICH
-->

MYHOME BLOG
SuchAgentin auf FindMyHome.at
Unterschiedlichen Rechtsthemen, köstliche Rezepte, neueste Design-Highlights, sowie aktuelle Technik-Tools für Ihr Eigenheim.


FINDMYHOME.AT SUCHAGENTIN
SuchAgentin auf FindMyHome.at
Hallo, soll ich dir ähnliche Immobilien kostenfrei per E-Mail schicken?


ÄHNLICHE IMMOBILIEN
Aehnliche Immobilie - Vorschaubild 1

++ LUXUS auf HÖCHSTEM NIVEAU ++ PENTHOUSE mit WIENBLICK... - Objektnr. 5649390

149,08 m² - 4 Zimmer
1900000 €
PLZ: 1190

Mehr anzeigen

Aehnliche Immobilie - Vorschaubild 2

Penthousetraum mit Blick in die Weingärten - Objektnr. 5614137


165,67 m² - 3 Zimmer
1990000 €
PLZ: 1190

Mehr anzeigen

Aehnliche Immobilie - Vorschaubild 3

SieVienne - Living - Top 2 - Magnolia Garden - Objektnr. 5649188

137,24 m² - 5 Zimmer
1635000 €
PLZ: 1190

Mehr anzeigen

Durch die Nutzung unserer Seite erklären Sie sich mit der Verwendung von Cookies zur Verbesserung Ihres Online-Erlebnisses einverstanden. Detaillierte Informationen zu diesem und weiteren Themen erhalten Sie in unserer Datenschutzerklärung.