Willkommen in Ihrem potenziellen neuen Zuhause, einer charmanten Dachgeschosswohnung, die sowohl durch ihre beeindruckende Raumhöhe im Wohnbereich, als auch durch eine durchdachte Raumaufteilung besticht.
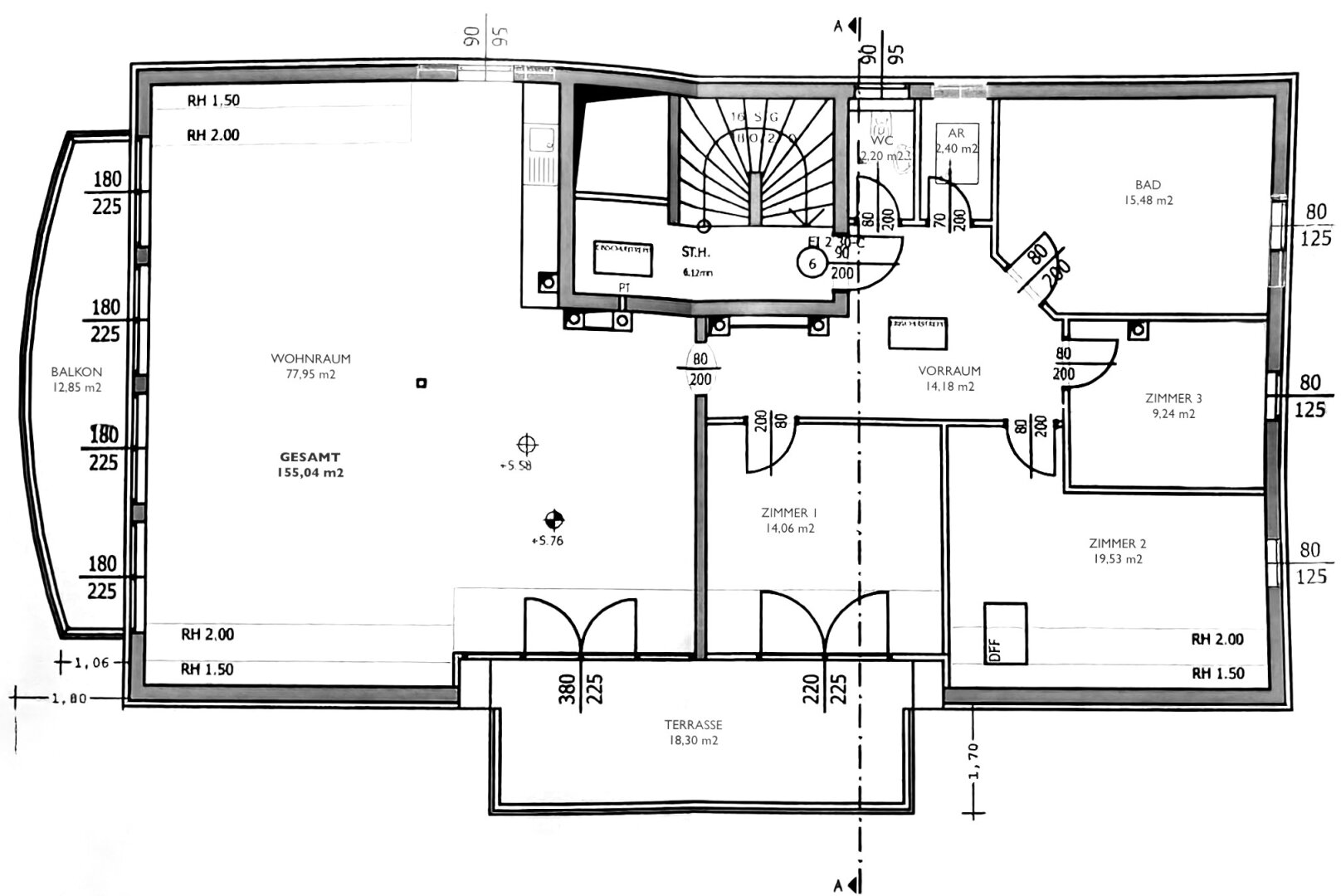
Diese außergewöhnliche Immobilie mit Ateliercharakter vereint modernes Design, offene Raumgestaltung und luxuriösen Wohnkomfort auf insgesamt 155 m².
Besonders beeindruckend ist der weitläufige Wohnbereich mit einer atemberaubenden Deckenhöhe von über 5 Metern, der eine unvergleichliche Großzügigkeit vermittelt.
Bodentiefe Fenster durchfluten die Räume mit natürlichem Licht und schaffen eine angenehme Wohnatmosphäre.
Die Kombination aus großzügigen Wohnräumen, zwei Außenbereichen und modernen Annehmlichkeiten machen dieses Objekt zu einer seltenen Gelegenheit auf dem Immobilienmarkt.
Ausstattung:
Großzügiger Wohn/Essraum mit 78 m2
Raumhöhe von über 5 Meter im Wohnraum
3 Schlafzimmer
Großes Badezimmer mit Fenster und Badewanne
Terrasse mit 18 m2
Balkon mit 13 m2
Südwestliche Ausrichtung
Separate Toilette mit Fenster
Pelletsheizung
Fußbodenheizung
Kaminofen
2 Parkplätze (1 x Tiefgaragenplatz, 1 x Aussenstellplatz)
Kellerraum mit 10 m2
Infina, Österreichs beliebtester Wohnbau-Finanz-Experte, begleitet Sie ganzheitlich rund um Ihr Immobilienvorhaben.
Unser Team von Immobilienexperten unterstützt Sie beim geplanten Kauf als auch bei einem möglichen Verkauf Ihrer bestehenden Immobilie. Zudem bieten unsere Finanzierungsexperten auf Wunsch maßgeschneiderte Finanzierungslösungen durch den Vergleich der besten Kredite von über 120 Banken in Österreich und Deutschland.
Wir möchten Sie unabhängig, transparent und flexibel als starker Partner in allen Immobilienangelegenheiten unterstützen.
Kontaktieren Sie uns für einen persönlichen Besichtigungstermin oder eine unverbindliche und kostenfreie Finanzierungsberatung.
Was kann Infina noch für Sie tun?
Wenn Sie eine Finanzierung für Ihre Traumimmobilie wünschen, begleiten wir Sie gerne von der strategischen Planung bis zur Realisierung und darüber hinaus. Wir sind Österreichs beliebtester Wohnbau-Finanz-Experte und unsere Mission lautet: Jeder Kunde hat das Recht auf den besten Kredit.
- Infina kooperiert mit über 120 Banken in Österreich und Deutschland
- Über 600 Kreditprodukte im Vergleich
- Über 100-mal vor Ort in ganz Österreich
Ebenso unterstützen wir unsere Kunden beim Verkauf und der Vermietung Ihrer Immobilien sowie bei der Immobiliensuche durch unsere Immobilienexperten.
Wir weisen Sie darauf hin, dass die gemachten Angaben und Informationen lediglich unverbindliche Vorabinformationen sind und daher ohne Gewähr erfolgen. Der Vermittler ist als Doppelmakler tätig.
Neumarkt am Wallersee ist eine charmante Stadt im Salzburger Land, die durch ihre hohe Lebensqualität und naturnahe Umgebung auszeichnet.
Die Lage vereint ländliche Idylle mit einer ausgezeichneten Infrastruktur und einer schnellen Anbindung an die Stadt Salzburg.
Neumarkt bietet eine Vielzahl an Freizeit- und Erholungsmöglichkeiten € allen voran den wunderschönen Wallersee, der mit seinen Badeplätzen, Segel- und Surfmöglichkeiten ein Paradies für Wassersportler und Naturliebhaber ist.
Zahlreiche Rad- und Wanderwege durchziehen die malerische Landschaft und laden zu erholsamen Touren ein.
Wichtige Punkte in der Umgebung (POIs):
Wallersee € Baden, Segeln, Wandern
Sportzentrum Neumarkt € Tennis, Fußball, Fitness
Golfclub Gut Altentann € Einer der schönsten Golfplätze Österreichs
Einkaufs- und Nahversorgungsmöglichkeiten € Supermärkte, Fachgeschäfte, Wochenmarkt
Bildungseinrichtungen € Kindergärten, Volksschule, Gymnasium
Bahnhof Neumarkt-Köstendorf € Direkte Anbindung nach Salzburg
Dank der ausgezeichneten Verkehrsanbindung über die Westbahnstrecke sowie die nahegelegene Autobahn A1 ist Salzburg in ca. 20 Minuten erreichbar.
Diese Kombination aus Natur, Freizeitmöglichkeiten und urbaner Nähe macht Neumarkt am Wallersee zu einem begehrten Wohnort für Familien, Berufspendler und Naturliebhaber.
Provision: 3,00 % des Kaufpreises zzgl. 20 % USt.