MEIN ERGEBNIS ANPASSEN

30m² TERRASSENFLÄCHE - klimatisierte 3 Zimmer Neubauwohnung in der Koloniestraße - Objektnr. 5649084

  • Bild (7)
  • xxx
  • Bild (8)
  • Bild (3)
  • Bild (1)
  • Bild (2)
  • Bild (4)
  • Bild (5)
  • Bild (6)
  • Bild (9)
  • Bild (11)
  • Bild (12)
  • Top 20 Stiege 2
  • digitales Raumthermostat + Videogegensprechanlage
1210
Ort
€ 1.299,00
Gesamtkosten
70,00 m²
Fläche
3.0
Zimmer

ECKDATEN
FindMyHome.at // Externe Immobilien-ID5649084 // 3610/4855
ImmobilienartWohnung - Miete
Anschrift1210 Wien
Baujahr2021
NäheShopping Center Nord, FAC Platz
HeizungFußbodenheizung
Stock2.DG
Liftja
KellerJa
Beziehbar ab01.06.2026
Mietdauer5.0
Fläche70,00 m²
Terrassen2 (30,00 m²)
Zimmer3.0
Bad1
WC1
Kaution:€ 4.000,00
sonstige Kosten (inkl. MwSt):€ 157,59
Mehrwertsteuer:€ 1.298,00
Monatliche Gesamtkosten:€ 1.299,00




BESCHREIBUNG

30m² TERRASSENFLÄCHE - klimatisierte 3 Zimmer Neubauwohnung in der Koloniestraße

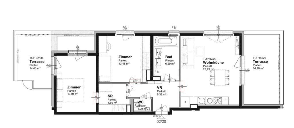
Koloniestraße beim FAC-Platz: 3-Zimmer Neubauwohnung (68,22m²)! Große Außenfläche (14,40m² Terrasse) + (14,46m² Terrasse)! Top-Ausstattung! Optimale Infrastruktur!!

RAUMAUFTEILUNG IN STICHWORTEN
? Vorraum
? Wohnzimmer mit offener Küche
? 1 Schlafzimmer
? 1 Schlafzimmer mit Schrankraum
? Bad mit Badewanne inkl. Duschmöglichkeit, Waschtisch, Waschmaschinenanschluss und Handtuchheizkörper
? WC mit Waschbecken
? 2 Terrassen
? Kellerabteil

HIGHLIGHTS AUF EINEN BLICK
? KLIMAANLAGE
? Fußbodenheizung (Gaszentralheizung, keine Therme!)
? jeder Raum verfügt über ein Raumthermostat
? Außenrollläden
? Sicherheitswohnungseingangstüren
? hochwertiger Parkettboden (Eiche)
? EWE-Küche mit hochwertigen Elektrogeräten (E-Herd, Cerankochfeld, Geschirrspüler, Kühl-Gefrier-Kombination, Dunstabzug und Spüle)
? hochwertige Ausstattung auch im Badezimmer / WC (Laufen, Grohe), Badwannen mit Glasduschwänden
? sehr gute Raumaufteilung
? effiziente Grundrisse
? frostsicherer Wasseranschluss auf jeder Außenfläche
? Paketboxen im Eingangsbereich
? zentrale Schließanlage
? mehrere Fahrrad- und Kinderwagenabstellräume
? Waschküche mit 2 hochwertigen Waschmaschinen und Trocknern mit NFC-Bezahlsystem
? Pucksystem (digitales Schwarzes Brett) inkl. Hausverwaltungs-App
? großzügige Aufzüge
? Kleinkinderspielplatz mit Sandkiste und Sitzgelegenheit
? Gemeinschafts-/Jugendspielraum (Stiege 4) mit eigener Terrasse
? sehr gute Energiekennzahlen
? optimale Infrastruktur

GARAGENPLÄTZE DIREKT IM HAUS
? € 103,-- brutto pro Monat:
? Kaution € 400,--
? Mindestlaufzeit 6 Monate, danach beidseitig monatlich kündbar

UMGEBUNG UND INFRASTRUKTUR
? diverse Supermärkte in Gehnähe (Hofer, Billa, Interspar etc.)
? Trillerpark & Shopping Center Nord mit unzähligen Einkaufsmöglichkeiten zu Fuß erreichbar
? Freizeiteinrichtungen: Kino, Fitnessstudio, Fußball, Tennis etc.
? Naherholungsgebiet Donauinsel
? gute Erreichbarkeit in die Innenstadt

SEHR GUTE ÖFFENTLICHE VERKEHRSANBINDUNG
? S-Bahn: Jedlersdorf (<5min)
? WIEN MITTE in 17min (S3)
? Autobuslinie: 36A, 36B
? Straßenbahnlinie: 26
? Regionalbus: 850
? U-Bahn: U6 Floridsdorf (ca. 12min mit Linie 26)

ERSTZAHLUNG
? 3 BMM Kaution
? Vertragserrichtungsgebühr EUR 349 bto
? erste Monatsmiete im Voraus

ZUSÄTZLICHE MONATLICHE KOSTEN
? Wasser, Heizung... werden von der ISTA nach tatsächlichem Verbrauch abgerechnet
? Strom - wird direkt nach Verbrauch abgerechnet (Wien Energie bzw. Netznutzung Wiener Netze)
? ggf. TV/Internet, Haushaltsversicherung, GIS, o.Ä.

VERTRAGSBEDINGUNGEN
? Befristung: 5 Jahre
? Kündigungsverzicht: 12 Monate (mieterseitig)
? Kündigungsfrist: 3 Monate
? gefordertes Mindestnettoeinkommen (Haushalt): EUR 3250

BENÖTIGTE UNTERLAGEN FÜR ANMIETUNG
? Mietanbot (Vorlage erhalten Sie von uns)
? Selbstauskunft (Vorlage erhalten Sie von uns)
? Kopie Reisepass oder Personalausweis
? Kopie Bankomatkarte (nur IBAN relevant)
? Einkommensnachweis (letzte 3 Lohnzettel, Einkommenssteuerbescheid oder bei Berufswechsel unterzeichneter Dienstvertrag)
? Meldezettel
? Haushaltsrechnung (Vorlage erhalten Sie von uns)Angaben gemäß gesetzlichem Erfordernis:
Miete €1037,65 zzgl 10% USt.Betriebskosten €143,26 zzgl 10% USt.Umsatzsteuer €118,1------------------------------------------------------------------Gesamtbetrag €1299,01------------------------------------------------------------------Heizwärmebedarf:36.73 kWh/(m²a)Klasse Heizwärmebedarf:BFaktor Gesamtenergieeffizienz:0.82Klimaanlage: JA


Alle Details anzeigen

KONTAKT






 

Lasse dich kostenlos vom Anbieter dieser Immobilie zurückrufen.







 


 
Hubner Immobilien GmbH
Kerstin Fried
Telefonnummer anzeigen Telefon Allgemein: +4315121956
Handy Bearbeiter: +4366488730881
 
Bitte dem Makler die FindMyHome.at - ID bekanntgeben: 5649084

Bewertungen dieses Anbieters
Qualitätsmakler
Qualitätsmakler:
2014, 2015, 2016, 2018, 2019, 2020, 2021 , 2025, 2026,
Netiquette
Freundlichkeit
84 %

BEWERTUNGEN DIESES ANBIETERS

 
Qualitätsmakler
UNSERE HALL OF FAME DER BESTEN ANBIETER
Qualit�tsmakler
Qualitätsmakler
2014, 2015, 2016, 2018, 2019, 2020, 2021, 2025, 2026
Weiterempfehlung
WIRD GERNE

Freundlichkeit
BESONDERS
FREUNDLICH
Netiquette
FINDMYHOME
NETIQUETTE
Auch du kannst bewerten! 7 Tage nach deiner Anfrage erhältst du dafür von uns ein Bewertungsmail.
Alle Infos zu unseren Auszeichnungen und dem FINDMYHOME.AT Qualitätsprogramm findest du hier: Übersicht anzeigen


Du willst wissen, wie viel dein Umzug kosten wird?

Mach gleich den kostenlosen Preisvergleich und schau, welche seriösen Anbieter in deiner Region günstig deinen Umzug organisieren


ZUM UMZUGS-VERGLEICH
-->

MYHOME BLOG
SuchAgentin auf FindMyHome.at
Unterschiedlichen Rechtsthemen, köstliche Rezepte, neueste Design-Highlights, sowie aktuelle Technik-Tools für Ihr Eigenheim.


FINDMYHOME.AT SUCHAGENTIN
SuchAgentin auf FindMyHome.at
Hallo, soll ich dir ähnliche Immobilien kostenfrei per E-Mail schicken?


ÄHNLICHE IMMOBILIEN
Aehnliche Immobilie - Vorschaubild 1

360° TOUR // BALKON WOHNUNG / BALCONY APARTMENT... - Objektnr. 5646917

78,44 m² - 3.0 Zimmer
1298.97 €
PLZ: 1210

Mehr anzeigen

Aehnliche Immobilie - Vorschaubild 2

Exklusive 3-Zimmer-Neubauwohnung mit hochwertiger Ausstattun... - Objektnr. 5644104

65,27 m² - 3 Zimmer
1250 €
PLZ: 1210

Mehr anzeigen

Aehnliche Immobilie - Vorschaubild 3

Sky Apartment | hell&modern | DONAUSTADT - Objektnr. 5641856


66,04 m² - 3.0 Zimmer
1306.68 €
PLZ: 1210

Mehr anzeigen

Durch die Nutzung unserer Seite erklären Sie sich mit der Verwendung von Cookies zur Verbesserung Ihres Online-Erlebnisses einverstanden. Detaillierte Informationen zu diesem und weiteren Themen erhalten Sie in unserer Datenschutzerklärung.