MEIN ERGEBNIS ANPASSEN

Mondäne Wienerwaldvilla - Eleganz, Privatsphäre und repräsentativer Luxus vereint - Objektnr. 5648469


ökologisch beheizt
  • Ansicht vom Garten aus
  • Straßenseitige Hausansicht
  • Gesamte Liegenschaft mit Schwimmhalle links
  • Gemütliches Gartenhaus mit Schwedenofen
  • Verbindungsgang zur Schwimmhalle
  • Beheizbare Schwimmhalle mit großflächigen Schiebefenstern
  • Repräsentatives Turmzimmer mit Ausgang auf die riesige Terra
  • Bogenfenster aus Holz mit Sprossenteilung und buntem Struktu
  • Terrasse zwischen Turm und 1. Stock des Haupthauses
  • schachbrettartiger Fliesenboden
  • Turm und Terrasse mit offenem Kamin
  • Verglaste Veranda  mit schmiedeeisernen Gittern
  • Vorraum mit Aufgang in den 1. Stock
  • Gemütlicher Barbereich
  • Wohn- und Esszimmer
  • Wohnbereich
  • Esszimmer
  • Kastenfenster mit innenliegenden Holzfenstern mit Buntglas-B
  • Vorraum im 1. Stock
  • privater Wohnsalon
  • Master Bedroom mit En-Suite Badezimmer
  • Terrasse
  • Blick über den Garten
  • Vorraum im Dachgeschoß
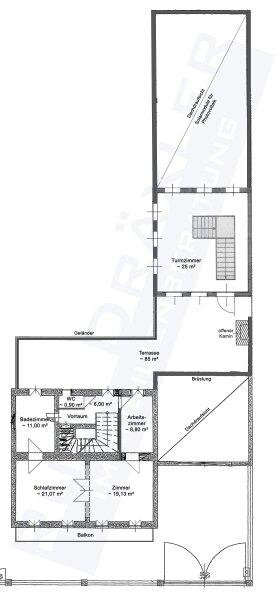
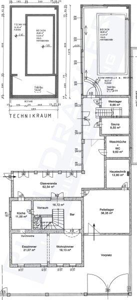
  • Erdgeschoß Skizze
  • 1. Stock Skizze
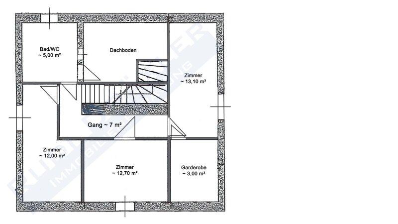
  • Dachgeschoß Skizze
3003
Ort
247,00 m²
Fläche
7.0
Zimmer

ECKDATEN
FindMyHome.at // Externe Immobilien-ID5648469 // 95381
ImmobilienartHaus - Eigentum
Anschrift3003 Gablitz
Baujahr1929
Befeuerung
Pellets
Geschosse3
Fläche247,00 m²
Grundfläche989,00 m²
Terrassen2 (185,00 m²)
Zimmer7.0
Bad2
WC4
Kaufpreis:€ 1.960.000,00
Ratenzahlung:Finanzierungsmöglichkeiten für diese Immobilie anzeigen
Provision: 3% des Kaufpreises zzgl. 20% USt.







BESCHREIBUNG

Mondäne Wienerwaldvilla - Eleganz, Privatsphäre und repräsentativer Luxus vereint

In ruhiger Lage unweit des Zentrums von Gablitz erwartet Sie diese außergewöhnliche Villa mit historischem Charme und eindrucksvoller Architektur. Einst Rückzugsort des Wiener Bürgertums zur Sommerfrische, vereint die Liegenschaft bis heute Eleganz, Großzügigkeit und eine besondere Aura.

Das Anwesen besticht durch seine repräsentative Erscheinung mit kaisergelber Fassade, Rundbogenfenstern, Stuckverzierungen, Walmdach und liebevoll erhaltenen Details. Ein großzügiger Innenhof sowie der parkähnliche Garten schaffen ideale Voraussetzungen für stilvolle Empfänge und private Rückzugsorte.

Im Inneren erwarten Sie ein beeindruckendes Foyer mit Glasveranda, ein Wohnbereich mit Bar, Esszimmer, Küche sowie zahlreiche geschmackvolle Räume mit historischen Elementen. Der private Bereich im 1. Stock bietet Schlafzimmer mit Salon, Bad und Arbeitszimmer, ergänzt durch weitere Zimmer im Dachgeschoß.

Ein besonderes Highlight ist die Schwimmhalle mit Gegenstromanlage und direktem Gartenbezug. Ergänzt wird das Angebot durch Sauna, Vinothek, großzügige Terrassenflächen und ein charmantes Turmzimmer.

Der uneinsehbare Garten mit großer Terrasse, Spielbereich und gemütlicher Gartenhütte bietet viel Raum für Erholung und gesellige Stunden.

Moderne Technik wie Pelletheizung (2022) und Photovoltaikanlage mit Speicher sorgen für nachhaltige Energieversorgung.

Perfekte Lage: ruhig im Grünen und dennoch fußläufig ins Ortszentrum, mit guter Anbindung Richtung Wien.

Ein einzigartiges Zuhause für Menschen mit Sinn für Stil, Geschichte und Lebensqualität.

Der Vermittler ist als Doppelmakler tätig.


Infrastruktur / Entfernungen

Gesundheit
Arzt <500m
Apotheke <500m
Krankenhaus <9.500m
Klinik <8.500m

Kinder & Schulen
Schule <500m
Kindergarten <500m
Universität <7.500m

Nahversorgung
Supermarkt <1.000m
Bäckerei <2.000m
Einkaufszentrum <6.000m

Sonstige
Bank <2.500m
Geldautomat <2.500m
Post <1.000m
Polizei <1.000m

Verkehr
Bus <500m
U-Bahn <9.000m
Straßenbahn <8.500m
Bahnhof <3.500m
Autobahnanschluss <6.500m

Angaben Entfernung Luftlinie / Quelle: OpenStreetMap

Kabel/SAT/TV: JA
Swimmingpool: JA
Provision: 3% des Kaufpreises zzgl. 20% USt.


Alle Details anzeigen

KONTAKT






 

Lasse dich kostenlos vom Anbieter dieser Immobilie zurückrufen.







 


 
Rudi Dräxler Immobilientreuhand GesmbH
Verde Lenz
Telefonnummer anzeigen Handy Bearbeiter: +436648407980
 
Bitte dem Makler die FindMyHome.at - ID bekanntgeben: 5648469

Bewertungen dieses Anbieters
Qualitätsmakler
Qualitätsmakler:
2012, 2013, 2014, 2015, 2016, 2017, 2018 , 2019, 2021, 2023, 2024, 2026,
Netiquette
Freundlichkeit
88 %

BEWERTUNGEN DIESES ANBIETERS

 
Qualitätsmakler
UNSERE HALL OF FAME DER BESTEN ANBIETER
Qualit�tsmakler
Qualitätsmakler
2012, 2013, 2014, 2015, 2016, 2017, 2018, 2019, 2021, 22/23, 2024, 2026
Antwortzeit
ø 48h ANTWORT
Weiterempfehlung
WIRD SEHR GERNE

Freundlichkeit
BESONDERS
FREUNDLICH
Netiquette
FINDMYHOME
NETIQUETTE
Auch du kannst bewerten! 7 Tage nach deiner Anfrage erhältst du dafür von uns ein Bewertungsmail.
Alle Infos zu unseren Auszeichnungen und dem FINDMYHOME.AT Qualitätsprogramm findest du hier: Übersicht anzeigen

FINANZIERUNG
?>

Du willst wissen, wie viel dein Umzug kosten wird?

Mach gleich den kostenlosen Preisvergleich und schau, welche seriösen Anbieter in deiner Region günstig deinen Umzug organisieren


ZUM UMZUGS-VERGLEICH
-->

MYHOME BLOG
SuchAgentin auf FindMyHome.at
Unterschiedlichen Rechtsthemen, köstliche Rezepte, neueste Design-Highlights, sowie aktuelle Technik-Tools für Ihr Eigenheim.


FINDMYHOME.AT SUCHAGENTIN
SuchAgentin auf FindMyHome.at
Hallo, soll ich dir ähnliche Immobilien kostenfrei per E-Mail schicken?


ÄHNLICHE IMMOBILIEN
Aehnliche Immobilie - Vorschaubild 1

Neuwertiges Niedrigenergiehaus mit maximaler Flexibilität - ... - Objektnr. 5581118

259,00 m² - 6.0 Zimmer
1980000 €
PLZ: 3003

Mehr anzeigen

Durch die Nutzung unserer Seite erklären Sie sich mit der Verwendung von Cookies zur Verbesserung Ihres Online-Erlebnisses einverstanden. Detaillierte Informationen zu diesem und weiteren Themen erhalten Sie in unserer Datenschutzerklärung.