MEIN ERGEBNIS ANPASSEN

NEUER PREIS! AUSSERGEWÖHNLICHES JUWEL! Exklusiver Vierkanthof im Thermenland Steiermark - Wohnen, Reiten & Leben mit Pool und Natur! - Objektnr. 5648171

8282
Ort
380,00 m²
Fläche
6.0
Zimmer

ECKDATEN
FindMyHome.at // Externe Immobilien-ID5648171 // 297182
ImmobilienartHaus - Eigentum
AnschriftOberbergstraße
8282 Bad Loipersdorf
Baujahr1923
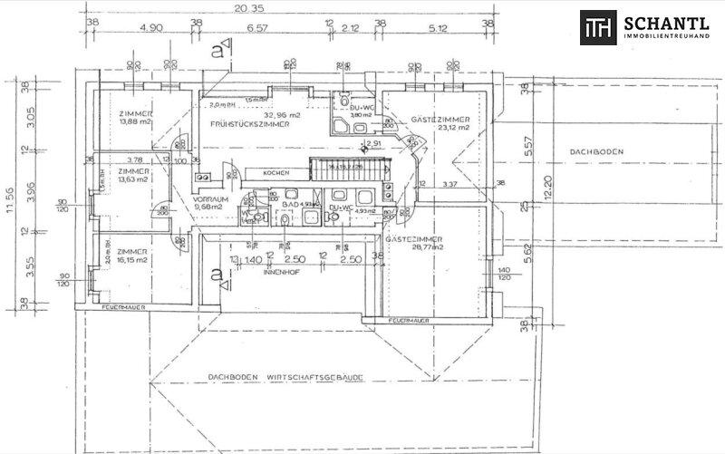
Fläche380,00 m²
Grundfläche41.639,00 m²
Terrassen2
Zimmer6.0
Bad4
WC5
 Abstellraum
Kaufpreis:€ 999.000,00
Ratenzahlung:Finanzierungsmöglichkeiten für diese Immobilie anzeigen
Provision: 3% des Kaufpreises zzgl. 20% USt.







BESCHREIBUNG

NEUER PREIS! AUSSERGEWÖHNLICHES JUWEL! Exklusiver Vierkanthof im Thermenland Steiermark - Wohnen, Reiten & Leben mit Pool und Natur!

NEUER PREIS! AUSSERGEWÖHNLICHES JUWEL! Exklusiver Vierkanthof im Thermenland Steiermark Wohnen, Reiten & Leben mit Pool und Natur!

Willkommen in 8282 Loipersdorf wo Tradition, Natur und moderner Luxus in perfekter Harmonie zusammentreffen. Dieser 2012 kernsanierte Vierkanthof bietet nicht nur ein Zuhause, sondern ein einzigartiges Lebensgefühl für Menschen, die das Besondere suchen.

Wohnen mit Stil & Komfort

  • 380 m² Wohnfläche, großzügig und lichtdurchflutet
  • Edle hochwertige Böden, traditioneller Kachelofen und zusätzlicher Kaminofen für behagliche Wärme
  • Fußbodenheizung und nachhaltige Photovoltaikanlage
  • Glasfaseranschluss
  • Separate Ferienwohnung mit 74 m² ideal für Gäste oder Vermietung
  • Highlight für den Sommer: ein großer Swimmingpool, eingebettet in den idyllischen Garten

Tierhaltung & Landwirtschaft ein Paradies für Mensch und Tier

  • 4,5 Hektar Grund mit Wiesen und Freiflächen
  • Zwei Pferdeboxen plus Stall für Esel
  • Professioneller Reitplatz (25 x 45 m)
  • Umfangreicher Fuhrpark für die Landwirtschaft bereits vorhanden

HIGHLIGHTS:

  • 2012 kernsanierter Vierkanthof traditioneller Charme trifft modernen Wohnkomfort
  • 380 m² Wohnfläche mit hochwertigen Böden, Kachelofen & Kaminofen
  • Separate Ferienwohnung (74 m²) ideal für Gäste oder Vermietung
  • Fußbodenheizung & Photovoltaikanlage für nachhaltiges Wohnen
  • Swimmingpool für erfrischende Sommermomente
  • 4,5 Hektar Grund mit Wiesen, Freiflächen & landwirtschaftlicher Nutzung
  • Pferdehaltung vom Feinsten 2 Pferdeboxen, Eselstall & Reitplatz (25 x 45 m)
  • Umfangreicher Fuhrpark für die Landwirtschaft bereits vorhanden und im Kaufpreis inkludiert!
  • Top-Lage im Thermen- und Golfregion Loipersdorf absolute Ruhelage mit schneller Anbindung

Lage mit Lebensqualität

Der Vierkanthof thront in ruhiger, sonniger Lage mit weitem Blick über die sanfte Hügellandschaft der Südoststeiermark. Die bekannte Therme Loipersdorf sowie der Golfplatz sind in wenigen Minuten erreichbar. Gleichzeitig bietet die Nähe zu Fürstenfeld (10 km) und die gute Anbindung nach Graz (ca. 45 Min.) eine perfekte Balance zwischen Natur und Infrastruktur.

Vielseitige Nutzungsmöglichkeiten

Dieses Anwesen eignet sich ideal als:

  • exklusiver Familienwohnsitz
  • Reiterhof & Pferdeparadies
  • Ferien- und Gästehaus mit Alleinstellungsfaktor
  • nachhaltiger Landwirtschaftsbetrieb
  • Wohlfühl-Refugium mit touristischem Potenzial

Exklusiv bei Schantl ITH.

Kontaktieren Sie uns für weitere Informationen oder zur Vereinbarung eines privaten Besichtigungstermins. Auf Wunsch unterstützen unsere erfahrenen Experten auch bei Konzept & Betreuung für die touristische Nutzung.

Worauf noch warten

Vereinbaren Sie noch heute eine Besichtigung oder eine persönliche Beratung mit uns!

Sie wollen Ihre Immobilie verkaufen Dann sind Sie bei uns goldrichtig!
Wir sind gerne für Sie da und unterstützen Sie unverbindlich bei der Bewertung Ihrer Immobilie. Mit viel Sorgfalt stellen wir Ihnen alle wichtigen Informationen und Unterlagen zusammen, damit Sie die besten Entscheidungen treffen können.

In Kooperation mit unserer SFI Vermögenstreuhand begleiten wir Sie bei der Verwirklichung Ihres Traumobjekts und unterstützen Sie beim nachhaltigen Vermögensaufbau. Mit unseren erfahrenen Experten sorgen wir dafür, dass Sie die besten Konditionen erhalten damit Ihre Träume Wirklichkeit werden!

http://www.schantl-ith.at in Kooperation mit www.sfi-invest.com 

Die Angaben über das angebotene Objekt erfolgen mit der Sorgfalt eines ordentlichen Immobilienmaklers; für die Richtigkeit solcher Angaben, die auf Informationen der über das Objekt Verfügungsberechtigten beruhen, wird keine Gewähr geleistet!

Der Vermittler ist als Doppelmakler tätig.


Infrastruktur / Entfernungen

Gesundheit
Arzt <2.250m
Apotheke <4.250m
Krankenhaus <4.250m

Kinder & Schulen
Schule <1.750m
Kindergarten <1.500m

Nahversorgung
Supermarkt <1.500m
Einkaufszentrum <5.500m
Bäckerei <4.500m

Sonstige
Bank <3.500m
Geldautomat <4.250m
Post <4.750m
Polizei <6.500m

Verkehr
Bus <1.250m
Bahnhof <3.000m
Autobahnanschluss <5.500m
Flughafen <5.750m

Angaben Entfernung Luftlinie / Quelle: OpenStreetMap

Kabel/SAT/TV: JA
Swimmingpool: JA
Provision: 3% des Kaufpreises zzgl. 20% USt.


Alle Details anzeigen

KONTAKT






 

Lasse dich kostenlos vom Anbieter dieser Immobilie zurückrufen.







 


 
Schantl ITH Immobilientreuhand GmbH
Nikolaus Kronabitter
Telefonnummer anzeigen Handy Bearbeiter: +436642540410
 
Bitte dem Makler die FindMyHome.at - ID bekanntgeben: 5648171

Bewertungen dieses Anbieters
Qualitätsmakler
Qualitätsmakler:
2015, 2016, 2018, 2019, 2020, 2021, 2023 , 2024, 2025, 2026,
Netiquette
Freundlichkeit
80 %

BEWERTUNGEN DIESES ANBIETERS

 
Qualitätsmakler
UNSERE HALL OF FAME DER BESTEN ANBIETER
Qualit�tsmakler
Qualitätsmakler
2015, 2016, 2018, 2019, 2020, 2021, 22/23, 2024, 2025, 2026
Antwortzeit
ø 48h ANTWORT
Weiterempfehlung
WIRD GERNE

Freundlichkeit
BESONDERS
FREUNDLICH
Netiquette
FINDMYHOME
NETIQUETTE
Auch du kannst bewerten! 7 Tage nach deiner Anfrage erhältst du dafür von uns ein Bewertungsmail.
Alle Infos zu unseren Auszeichnungen und dem FINDMYHOME.AT Qualitätsprogramm findest du hier: Übersicht anzeigen

FINANZIERUNG
?>

Du willst wissen, wie viel dein Umzug kosten wird?

Mach gleich den kostenlosen Preisvergleich und schau, welche seriösen Anbieter in deiner Region günstig deinen Umzug organisieren


ZUM UMZUGS-VERGLEICH
-->

MYHOME BLOG
SuchAgentin auf FindMyHome.at
Unterschiedlichen Rechtsthemen, köstliche Rezepte, neueste Design-Highlights, sowie aktuelle Technik-Tools für Ihr Eigenheim.


FINDMYHOME.AT SUCHAGENTIN
SuchAgentin auf FindMyHome.at
Hallo, soll ich dir ähnliche Immobilien kostenfrei per E-Mail schicken?


Durch die Nutzung unserer Seite erklären Sie sich mit der Verwendung von Cookies zur Verbesserung Ihres Online-Erlebnisses einverstanden. Detaillierte Informationen zu diesem und weiteren Themen erhalten Sie in unserer Datenschutzerklärung.