MEIN ERGEBNIS ANPASSEN

PROVISIONSFREI - Modernes wohnen am Donauufer mit Donaublick! - Objektnr. 5647818

1200
Ort
38,44 m²
Fläche
2.0
Zimmer

ECKDATEN
FindMyHome.at // Externe Immobilien-ID5647818 // 1240/236632
ImmobilienartWohnung - Eigentum
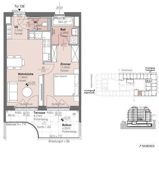
AnschriftTraisengasse 20-22/1-136
1200 Wien
Baujahr2026
Stock6
Geschosse9
Fläche38,44 m²
Terrassen1 (10,00 m²)
Zimmer2.0
Bad1
WC1
Kaufpreis:€ 316.200,00
Ratenzahlung:Finanzierungsmöglichkeiten für diese Immobilie anzeigen
Provision: Provision bezahlt der Abgeber







BESCHREIBUNG

PROVISIONSFREI - Modernes wohnen am Donauufer mit Donaublick!

Urbanes Lebensgefühl mit Donaublick

Direkt am malerischen Donauufer entfaltet sich das prestigeträchtige Wohnprojekt, Traisengasse 2022. Der moderne Neubau beeindruckt mit eleganter Architektur, begrüntem Innenhof und spektakulärem Donaublick. 269 Eigentumswohnungen bieten vielfältige Wohnungsvarianten für alle Lebensstile und Generationen. Die Nähe zur Donauinsel und die schnelle Anbindung ans Stadtzentrum versprechen ein privilegiertes Lebensgefühl in einem der lebendigsten Bezirke Wiens.

Die modernen 2-Zimmer-Wohnungen sind ideal für Singles und Paare. Mit 37 bis 45 m² vereinen sie einen offenen Wohn-/Essbereich, ein separates Schlafzimmer sowie Zugang zur Terrasse oder zum eigenen Garten. Höchsten Wohnkomfort bieten auch die Maisonette-, Garten- und Hofwohnungen mit 3 oder 4 Zimmern. Die Gartenwohnungen verfügen über private Grünflächen, während Hofwohnungen direkten Zugang zum begrünten Innenhof haben. Die Dachgeschoßwohnungen und Penthouses bieten luxuriöses Wohnen mit 43 bis 126 m² und 2 bis 4 Zimmern. Atemberaubende Ausblicke und ein begehrter Rückzugsort im Herzen der Stadt zeichnen diese Einheiten aus.

 

Nachhaltigkeit durch Qualität

Im Mittelpunkt dieses Neubauprojekts stehen die Erschaffung von nachhaltigem Lebensraum und das Wohlbefinden der zukünftigen Bewohner. Die DGNB GOLD Nachhaltigkeits-Zertifikat und die angestrebte EU-Taxonomie-Verifizierung unterstreichen unser Engagement für umweltgerechtes Bauen.

 

Provisionsfrei bis zum Baustart!

Kaufen Sie Ihr zukünftiges Zuhause bereits vor dem Baustart und sparen dabei die Provision! Gerne steht Ihnen unser Vertrieb für Informationen zur Verfügung.

 

Alle Infos zu diesem Projekt finden Sie unter www.traisengasse20.at

 

Sparen Sie jetzt bis zu 5,9% Nebengebühren!

Ihr Vorteil beim Erwerb einer Haring Group Immobilie:

- Provisionsfrei! Alle Eigentumsobjekte werden ohne Provision (3,6% inkl. MwSt.) angeboten!
- Keine Eintragungsgebühr: Von 1.7.2024 bis 1.7.2026 entfallen die Gebühren für die Grundbucheintragung (1,1%) und die Eintragungsgebühren des Pfandrechts (1,2%).*

 

* Laut Wohn- & Baupaket der Regierung entfallen die Eintragungsgebühren ins Grundbuch bei einem Kaufpreis von bis zu € 500.000,- pro Käufer:in komplett, wenn der Immobilienerwerb für den Hauptwohnsitz dient. Kaufen zwei Personen eine Immobilie, verdoppelt sich die Obergrenze auf € 1.000.000,-.

 

Renderings: Symbolbilder Außenansichten (c) zoom.at, Innenraumansichten (c) JAMJAM - Kreativagentur für Immobilien

Wir weisen darauf hin, dass zwischen dem Vermittler und dem zu vermittelnden Dritten ein familiäres oder wirtschaftliches Naheverhältnis besteht.

Der Vermittler ist als Doppelmakler tätig.


Infrastruktur / Entfernungen

Gesundheit
Arzt <250m
Apotheke <450m
Klinik <550m
Krankenhaus <550m

Kinder & Schulen
Schule <225m
Kindergarten <250m
Universität <1.025m
Höhere Schule <1.825m

Nahversorgung
Supermarkt <25m
Bäckerei <200m
Einkaufszentrum <600m

Sonstige
Geldautomat <525m
Bank <600m
Post <700m
Polizei <475m

Verkehr
Bus <100m
U-Bahn <675m
Straßenbahn <625m
Bahnhof <600m
Autobahnanschluss <1.000m

Angaben Entfernung Luftlinie / Quelle: OpenStreetMap

Provision: Provision bezahlt der Abgeber


Alle Details anzeigen

KONTAKT






 

Lasse dich kostenlos vom Anbieter dieser Immobilie zurückrufen.







 


 
Haring Group Bauträger GmbH
Haring Immobilien Treuhand GmbH
Telefonnummer anzeigen Telefon Allgemein: +4312035700
 
Bitte dem Makler die FindMyHome.at - ID bekanntgeben: 5647818

Bewertungen dieses Anbieters
Netiquette
Freundlichkeit
77 %

BEWERTUNGEN DIESES ANBIETERS

 
Weiterempfehlung
WIRD GERNE

Freundlichkeit
BESONDERS
FREUNDLICH
Netiquette
FINDMYHOME
NETIQUETTE
Auch du kannst bewerten! 7 Tage nach deiner Anfrage erhältst du dafür von uns ein Bewertungsmail.
Alle Infos zu unseren Auszeichnungen und dem FINDMYHOME.AT Qualitätsprogramm findest du hier: Übersicht anzeigen

FINANZIERUNG
?>

Du willst wissen, wie viel dein Umzug kosten wird?

Mach gleich den kostenlosen Preisvergleich und schau, welche seriösen Anbieter in deiner Region günstig deinen Umzug organisieren


ZUM UMZUGS-VERGLEICH
-->

MYHOME BLOG
SuchAgentin auf FindMyHome.at
Unterschiedlichen Rechtsthemen, köstliche Rezepte, neueste Design-Highlights, sowie aktuelle Technik-Tools für Ihr Eigenheim.


FINDMYHOME.AT SUCHAGENTIN
SuchAgentin auf FindMyHome.at
Hallo, soll ich dir ähnliche Immobilien kostenfrei per E-Mail schicken?


ÄHNLICHE IMMOBILIEN
Aehnliche Immobilie - Vorschaubild 1

PROVISIONSFREI - Modernes wohnen am Donauufer mit Donaublick... - Objektnr. 5646957

38,33 m² - 2.0 Zimmer
301800 €
PLZ: 1200

Mehr anzeigen

Aehnliche Immobilie - Vorschaubild 2

PROVISIONSFREI - Modernes wohnen am Donauufer mit Donaublick... - Objektnr. 5476363

45,09 m² - 2.0 Zimmer
372800 €
PLZ: 1200

Mehr anzeigen

Aehnliche Immobilie - Vorschaubild 3

PROVISIONSFREI - Modernes wohnen am Donauufer mit Donaublick... - Objektnr. 5492940

42,30 m² - 2.0 Zimmer
315700 €
PLZ: 1200

Mehr anzeigen

Durch die Nutzung unserer Seite erklären Sie sich mit der Verwendung von Cookies zur Verbesserung Ihres Online-Erlebnisses einverstanden. Detaillierte Informationen zu diesem und weiteren Themen erhalten Sie in unserer Datenschutzerklärung.