" Künstlerisches Zuhause mit Seele " - Objektnr. 5647813
WEITERE MEDIEN
ECKDATEN
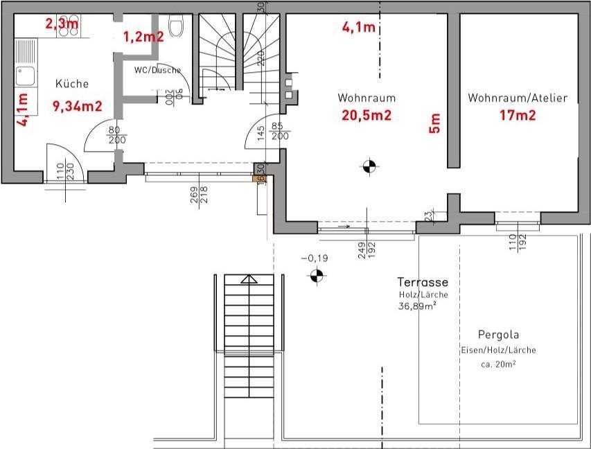
BESCHREIBUNG
KONTAKT
Lasse dich kostenlos vom Anbieter dieser Immobilie zurückrufen.
RE/MAX Elite
Oliver Graf
Oliver Graf
Telefonnummer anzeigen
Telefon Allgemein: +436606684706
Handy Bearbeiter: +436606684706
Bitte dem Makler die FindMyHome.at - ID bekanntgeben: 5647813
Handy Bearbeiter: +436606684706
Bitte dem Makler die FindMyHome.at - ID bekanntgeben: 5647813
Bewertungen dieses Anbieters
Qualitätsmakler:
2012, 2015, 2017, 2018, 2019, 2020, 2021 , 2023, 2024, 2025,
2012, 2015, 2017, 2018, 2019, 2020, 2021 , 2023, 2024, 2025,
BEWERTUNGEN DIESES ANBIETERS
Qualitätsmakler
2012, 2015, 2017, 2018, 2019, 2020, 2021, 22/23, 2024, 2025
2012, 2015, 2017, 2018, 2019, 2020, 2021, 22/23, 2024, 2025
BESONDERS
FREUNDLICH
FREUNDLICH
FINDMYHOME.AT
NETIQUETTE
NETIQUETTE
Auch du kannst bewerten! 7 Tage nach deiner Anfrage erhältst du dafür von uns ein Bewertungsmail.
Alle Infos zu unseren Auszeichnungen und dem FINDMYHOME.AT Qualitätsprogramm findest du hier: Übersicht anzeigen
Alle Infos zu unseren Auszeichnungen und dem FINDMYHOME.AT Qualitätsprogramm findest du hier: Übersicht anzeigen
FINANZIERUNG
Du willst wissen, wie viel dein Umzug kosten wird?
Mach gleich den kostenlosen Preisvergleich und schau, welche seriösen Anbieter in deiner Region günstig deinen Umzug organisieren
ZUM UMZUGS-VERGLEICH

























