MEIN ERGEBNIS ANPASSEN

CLOUD 9 - Nachhaltig wohnen. Wertvoll leben. - Objektnr. 5647608

  • Hausansicht
  • Hausansicht 2
  • Hausansicht 3
  • Hausansicht 4
  • Visualisierung Wohnraum
  • Visualisierung Wohnraum
  • Visualisierung Schlafzimmer
  • Visualisierung Wohnraum 2
  • Visualisierung Badezimmer
  • Visualisierung Terrasse
  • Visualisierung Fitnessraum
  • Visualisierung
1190
Ort
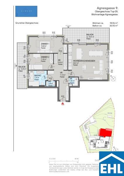
94,96 m²
Fläche
3.0
Zimmer
WEITERE MEDIEN

ECKDATEN
FindMyHome.at // Externe Immobilien-ID5647608 // 86315
ImmobilienartWohnung - Eigentum
AnschriftAgnesgasse
1190 Wien
Stock1
Geschosse5
Fläche94,96 m²
Zimmer3.0
Bad1
WC2
Kaufpreis:€ 997.000,00
Ratenzahlung:Finanzierungsmöglichkeiten für diese Immobilie anzeigen
Provision: Provision bezahlt der Abgeber







BESCHREIBUNG

CLOUD 9 - Nachhaltig wohnen. Wertvoll leben.

Agnesgasse 9 Exklusiv wohnen über der Stadt

In erhöhter Grünlage des noblen 19. Bezirks, zwischen Weingärten und Wienerwald, entsteht mit CLOUD 9 ein Rückzugsort für Menschen mit höchsten Ansprüchen. In der Agnesgasse 9, umgeben von eleganten Villen und gepflegten Gärten, verbinden sich Ruhe, Natur und Stadtblick zu einem einzigartigen Lebensgefühl. Die Innenstadt ist nur 15 Fahrminuten entfernt der Wienerwald beginnt direkt vor der Haustür.

CLOUD 9 umfasst 11 hochwertig ausgestattete Eigentumswohnungen mit Wohnflächen von ca. 65 bis 169m². Jede Einheit verfügt über großzügige Außenflächen Eigengärten, Terrassen oder Balkone mit beeindruckenden Ausblicken. Die durchdachte Architektur sorgt für helle Räume, fließende Übergänge und maximale Privatsphäre. Ein automatisiertes Zufahrtssystem mit Kennzeichenerkennung öffnet die Tiefgarage mit 11 Stellplätzen optional mit E-Ladestationen.

Nachhaltiges Bauen wird hier konsequent umgesetzt diskret und effizient. Eine hauseigene Photovoltaikanlage, Luftwärmepumpe, Deckenkühlung sowie eine Regenwasserzisterne für die Gartenbewässerung schaffen ökologische und ökonomische Vorteile ganz ohne Kompromisse beim Wohnkomfort.

Das barrierefreie Gebäude überzeugt mit einem stilvollen, repräsentativen Entree und exklusiven Gemeinschaftsbereichen. Eine private Yoga- und Fitnesslounge mit Infrarotkabine, ein Kneippbecken im Garten sowie ruhige Rückzugszonen bieten vielfältige Möglichkeiten zur Regeneration. Der Concierge-Service rundet das Angebot ab ob Personal Training, Massage, Tischreservierung oder Besorgungen des täglichen Bedarfs: alles ist nur einen Anruf entfernt.

Diese Wohnungen bieten mehr als nur Raum sie bieten Lebensraum für Menschen mit Anspruch. Architektur, Lage und Ausstattung bilden eine stimmige Einheit. Wer in Wien-Sievering eine Luxusimmobilie kaufen möchte, findet in CLOUD 9 ein seltenes Angebot.

 

Das Projekt - Luxus in Bestlage

  • 11 Eigentumswohnungen (2,5 bis 5 Zimmer)
  • Wohnflächen von  ca. 65 m² bis 169 m²
  • großzügige Freiflächen
  • 11 Kfz-Tiefgaragenstellplätze (E-Ladestationen optional)
  • Fahrrad- und Kinderwagenabstellraum
  • Einlagerungsräume im Gartengeschoß
  • Yoga-/Fitnessraum 
  • Wellnessoase mit Infrarotkabine, Dusche und WC
  • Photovoltaik
  • Regenwasserzisterne

 

Ausstattung auf First-Class-Niveau 

  • Fußbodenheizung mittels Luftwärmepumpe
  • Temperierung (Kühlung) mittels Bauteilaktivierung
  • Holz-Alu-Fenster 3fach verglast
  • Außenraffstores
  • Elegante Landhausdielen (Eiche)
  • Hochwertige Marken-Sanitäreinrichtungsgegenstände
  • Geschmackvolles Feinsteinzeug in den Nassräumen
  • Einbruchshemmende Sicherheitseingangstüren
  • Videosprechanlage

 

Leben in einer der begehrtesten Wohngegenden Wiens 

Sievering steht für Lebensqualität auf höchstem Niveau. Die Umgebung bietet idyllische Spazier- und Laufstrecken, Radwege, elegante Heurige und eine spektakuläre Aussicht über Wien. Der nahegelegene Stadtwanderweg 2, das Areal Am Himmel oder der Cobenzl liegen nur wenige Gehminuten entfernt.

Sievering ist bekannt für seine renommierten Heurigenlokale und gepflegte Gastronomie viele davon fußläufig erreichbar. Der Weinort Grinzing liegt nur wenige Minuten entfernt. Zahlreiche gehobene Nahversorger, Feinkostläden und Supermärkte befinden sich in der nahegelegenen Obkirchergasse und Umgebung. Das Q19 Einkaufsquartier Döbling ist mit dem Auto in ca. 10 Minuten erreichbar. 

In unmittelbarer Nähe befinden sich Kindergärten, Volksschulen und internationale Bildungseinrichtungen, darunter die renommierte American International School und die Schule der Dominikanerinnen. Zahlreiche niedergelassene Ärzte, Apotheken sowie das Krankenhaus Göttlicher Heiland und das Rudolfinerhaus garantieren eine ausgezeichnete medizinische Versorgung.

 

Exzellent angebunden - ruhig gelegen

  • Die Buslinie 39A befindet sich nur wenige Schritte von der Haustür entfernt (Haltestelle Agnesgasse). Sie verbindet Sie bequem mit dem Bahnhof Wien Heiligenstadt (U4, S-Bahn, Regionalzüge) sowie mit dem 19. Bezirkszentrum (Obkirchergasse, Krottenbachstraße).

  • Die Wiener Innenstadt (Stephansplatz) ist mit dem Auto in ca. 1520 Minuten, mit öffentlichen Verkehrsmitteln in rund 30 Minuten erreichbar.

  • Der Flughafen Wien-Schwechat ist über die A23 und S1 in ca. 3035 Minuten erreichbar.

 

Ein detaillierten Überblick finden Sie auf unsere EHL-Projekthomepage.

Provisionsfrei für den Käufer!
Fertigstellung voraussichtlich Q4/2027

Wir weisen darauf hin, dass zwischen dem Vermittler und dem zu vermittelnden Dritten ein familiäres oder wirtschaftliches Naheverhältnis besteht.

Der Vermittler ist als Doppelmakler tätig.


Infrastruktur / Entfernungen

Gesundheit
Arzt <1.000m
Apotheke <1.000m
Klinik <2.500m
Krankenhaus <2.750m

Kinder & Schulen
Schule <1.000m
Kindergarten <750m
Universität <2.250m
Höhere Schule <2.250m

Nahversorgung
Supermarkt <750m
Bäckerei <1.250m
Einkaufszentrum <4.000m

Sonstige
Geldautomat <1.250m
Bank <1.250m
Post <1.000m
Polizei <1.750m

Verkehr
Bus <250m
Straßenbahn <1.500m
U-Bahn <3.500m
Bahnhof <2.500m
Autobahnanschluss <4.000m

Angaben Entfernung Luftlinie / Quelle: OpenStreetMap

Klimaanlage: JA
Provision: Provision bezahlt der Abgeber


Alle Details anzeigen

KONTAKT






 

Lasse dich kostenlos vom Anbieter dieser Immobilie zurückrufen.







 


 
EHL Wohnen GmbH
Ilse Reindl
Telefonnummer anzeigen Telefon Allgemein: +4315127690410
Handy Bearbeiter: +4366488160143
 
Bitte dem Makler die FindMyHome.at - ID bekanntgeben: 5647608

Bewertungen dieses Anbieters
Qualitätsmakler
Qualitätsmakler:
Netiquette
Freundlichkeit
82 %

BEWERTUNGEN DIESES ANBIETERS

 
Qualitätsmakler
UNSERE HALL OF FAME DER BESTEN ANBIETER
Qualit�tsmakler
Qualitätsmakler
2012, 2013, 2014, 2015, 2016, 2017, 2018, 2019, 2020, 2021, 22/23, 2024, 2025
Weiterempfehlung
WIRD GERNE

Freundlichkeit
BESONDERS
FREUNDLICH
Netiquette
FINDMYHOME
NETIQUETTE
Auch du kannst bewerten! 7 Tage nach deiner Anfrage erhältst du dafür von uns ein Bewertungsmail.
Alle Infos zu unseren Auszeichnungen und dem FINDMYHOME.AT Qualitätsprogramm findest du hier: Übersicht anzeigen

FINANZIERUNG
?>

Du willst wissen, wie viel dein Umzug kosten wird?

Mach gleich den kostenlosen Preisvergleich und schau, welche seriösen Anbieter in deiner Region günstig deinen Umzug organisieren


ZUM UMZUGS-VERGLEICH
-->

MYHOME BLOG
SuchAgentin auf FindMyHome.at
Unterschiedlichen Rechtsthemen, köstliche Rezepte, neueste Design-Highlights, sowie aktuelle Technik-Tools für Ihr Eigenheim.


FINDMYHOME.AT SUCHAGENTIN
SuchAgentin auf FindMyHome.at
Hallo, soll ich dir ähnliche Immobilien kostenfrei per E-Mail schicken?


ÄHNLICHE IMMOBILIEN
Aehnliche Immobilie - Vorschaubild 1

Neubauprojekt I 4 Zimmer I Balkon I Erstbezug - Objektnr. 5611349

92,54 m² - 4.0 Zimmer
1005100 €
PLZ: 1190

Mehr anzeigen

Aehnliche Immobilie - Vorschaubild 2

EXKLUSIVES WOHNEN IN OBERDÖBLING - Südseitige 3-Zimmer Wohnu... - Objektnr. 5635298

93,44 m² - 3 Zimmer
875000 €
PLZ: 1190

Mehr anzeigen

Aehnliche Immobilie - Vorschaubild 3

EXKLUSIVES WOHNEN IN OBERDÖBLING - 3-Zimmer Dachgeschoss mit... - Objektnr. 5633199

82,70 m² - 3 Zimmer
999000 €
PLZ: 1190

Mehr anzeigen

Durch die Nutzung unserer Seite erklären Sie sich mit der Verwendung von Cookies zur Verbesserung Ihres Online-Erlebnisses einverstanden. Detaillierte Informationen zu diesem und weiteren Themen erhalten Sie in unserer Datenschutzerklärung.