MEIN ERGEBNIS ANPASSEN

Ihre Kinder studieren - Sie investieren: Eigentum in Hietzing - Objektnr. 5647580

1230
Ort
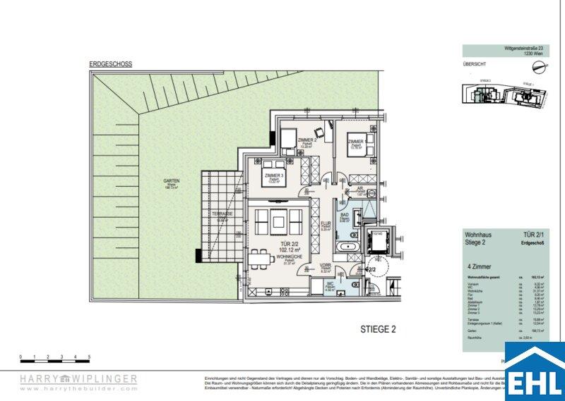
102,11 m²
Fläche
4.0
Zimmer
WEITERE MEDIEN

ECKDATEN
FindMyHome.at // Externe Immobilien-ID5647580 // 90827
ImmobilienartAnlage-Vorsorgewohnung - Eigentum
Anschrift1230 Wien
Baujahr2028
Fläche102,11 m²
Terrassen1 (20,00 m²)
Zimmer4.0
Bad2
WC2
 Abstellraum
Kaufpreis:€ 918.691,59
Ratenzahlung:Finanzierungsmöglichkeiten für diese Immobilie anzeigen
Provision: Provision bezahlt der Abgeber.







BESCHREIBUNG

Ihre Kinder studieren - Sie investieren: Eigentum in Hietzing

Wittgenstein 23 Villenflair trifft Vorsorgepotenzial zwischen Hietzing und Mauer

In einer der begehrtesten Lagen Wiens, wo Hietzings klassisches Villenflair auf das grüne Lebensgefühl von Mauer trifft, entsteht mit Wittgenstein 23 ein Wohnprojekt mit außergewöhnlichem Potenzial für Anleger, Vorsorgedenker und Familien, die in bleibende Werte investieren möchten.

Die Wittgensteinstraße zählt zu den traditionsreichsten Adressen Wiens gesäumt von alten Bäumen, gepflegten Gärten und historischen Villen. Spaziergänge im Lainzer Tiergarten, Radfahrten durch den Wienerwald und der Ausklang des Tages beim Heurigen Wiltschko oder Steinklammer gehören hier zum Lebensstil.

Ein Platz, an dem man investiert, wohnt und Zukunft gestaltet.

 

 

Das Projekt Architektur mit Wert und Weitblick

Wittgenstein 23 umfasst sieben Eigentumswohnungen und ein Doppelhaus mit Wohnflächen von 38 bis 156 m² und großzügigen Freiflächen.
Architektonisch verbindet das Projekt klassischen Villencharakter mit moderner Klarheit und nachhaltiger Technik. Lichtdurchflutete Räume, natürliche Materialien und zeitlose Ästhetik schaffen ein Zuhause mit Zukunft.

Highlights:

  • Tiefgarage mit vorbereiteten E-Ladestationen

  • Stellplatz optional um € 35.000,-

  • Kellerabteil pro Einheit

  • Fahrrad- & Kinderwagenräume im Haus

  • Geothermie (Heizen/Kühlen) & Photovoltaik nachhaltig & effizient

  • Hochwertige Ausstattung mit Fokus auf natürliche Materialien

Wittgenstein 23 steht für Lebensqualität, Wertbeständigkeit und niedrige Betriebskosten ein Projekt, das Wohnen, Wohlfühlen und Vorsorge auf einzigartige Weise vereint.

 

Kaufpreise der Vorsorgewohnungen

von EUR 317.775,01- bis EUR 1.437.383,18- netto zzgl. 20% USt.

Zu erwartender Mietertrag

von ca. EUR 17,00 bis EUR 19,50 netto/m²

Provisionsfrei für den Käufer!
Fertigstellung: voraussichtlich 1. Quartal 2028

 

Bei diesem Angebot handelt es sich um eine Vorsorgewohnung, die zu Vermietungszwecken erworben wird. Der angegebene Kaufpreis versteht sich daher zzgl. 20% USt. Diese Daten sind vorbehaltlich möglicher Änderungen.

Ein detaillierten Überblick finden Sie auf unsere EHL-Projekthomepage: https://www.ehl.at/wohnen/wohnprojekte/wittgensteinstraße 23-1230-wien
 

 

Wir weisen darauf hin, dass zwischen dem Vermittler und dem zu vermittelnden Dritten ein familiäres oder wirtschaftliches Naheverhältnis besteht.

Der Vermittler ist als Doppelmakler tätig.


Infrastruktur / Entfernungen

Gesundheit
Arzt <500m
Apotheke <1.000m
Klinik <1.500m
Krankenhaus <1.000m

Kinder & Schulen
Schule <500m
Kindergarten <500m
Universität <3.500m
Höhere Schule <5.500m

Nahversorgung
Supermarkt <1.000m
Bäckerei <1.000m
Einkaufszentrum <2.500m

Sonstige
Geldautomat <500m
Bank <1.000m
Post <1.000m
Polizei <2.500m

Verkehr
Bus <500m
U-Bahn <4.000m
Straßenbahn <500m
Bahnhof <2.000m
Autobahnanschluss <4.000m

Angaben Entfernung Luftlinie / Quelle: OpenStreetMap

Gartennutzung: JA
Provision: Provision bezahlt der Abgeber.


Alle Details anzeigen

KONTAKT






 

Lasse dich kostenlos vom Anbieter dieser Immobilie zurückrufen.







 


 
EHL Wohnen GmbH
Andrea PÖCHHACKER; MSc
Telefonnummer anzeigen Telefon Allgemein: +4315127690411
Handy Bearbeiter: +436648373481
 
Bitte dem Makler die FindMyHome.at - ID bekanntgeben: 5647580

Bewertungen dieses Anbieters
Qualitätsmakler
Qualitätsmakler:
Netiquette
Freundlichkeit
82 %

BEWERTUNGEN DIESES ANBIETERS

 
Qualitätsmakler
UNSERE HALL OF FAME DER BESTEN ANBIETER
Qualit�tsmakler
Qualitätsmakler
2012, 2013, 2014, 2015, 2016, 2017, 2018, 2019, 2020, 2021, 22/23, 2024, 2025, 2026
Weiterempfehlung
WIRD GERNE

Freundlichkeit
BESONDERS
FREUNDLICH
Netiquette
FINDMYHOME
NETIQUETTE
Auch du kannst bewerten! 7 Tage nach deiner Anfrage erhältst du dafür von uns ein Bewertungsmail.
Alle Infos zu unseren Auszeichnungen und dem FINDMYHOME.AT Qualitätsprogramm findest du hier: Übersicht anzeigen

FINANZIERUNG
?>

Du willst wissen, wie viel dein Umzug kosten wird?

Mach gleich den kostenlosen Preisvergleich und schau, welche seriösen Anbieter in deiner Region günstig deinen Umzug organisieren


ZUM UMZUGS-VERGLEICH
-->

MYHOME BLOG
SuchAgentin auf FindMyHome.at
Unterschiedlichen Rechtsthemen, köstliche Rezepte, neueste Design-Highlights, sowie aktuelle Technik-Tools für Ihr Eigenheim.


FINDMYHOME.AT SUCHAGENTIN
SuchAgentin auf FindMyHome.at
Hallo, soll ich dir ähnliche Immobilien kostenfrei per E-Mail schicken?


ÄHNLICHE IMMOBILIEN
Aehnliche Immobilie - Vorschaubild 1

Villenflair zwischen Hietzing & Mauer - Wohnen mit Weitblick... - Objektnr. 5647579

102,03 m² - 4.0 Zimmer
793457.94 €
PLZ: 1230

Mehr anzeigen

Aehnliche Immobilie - Vorschaubild 2

Wittgenstein 23 - Ihre stilvolle Vorsorge im Villenviertel... - Objektnr. 5647575

99,54 m² - 3.0 Zimmer
872897.2 €
PLZ: 1230

Mehr anzeigen

Aehnliche Immobilie - Vorschaubild 3

Vorsorgen mit Stil - Eigentum in Wiens grünster Lage... - Objektnr. 5647576

104,77 m² - 3.0 Zimmer
931775.7 €
PLZ: 1230

Mehr anzeigen

Durch die Nutzung unserer Seite erklären Sie sich mit der Verwendung von Cookies zur Verbesserung Ihres Online-Erlebnisses einverstanden. Detaillierte Informationen zu diesem und weiteren Themen erhalten Sie in unserer Datenschutzerklärung.