MEIN ERGEBNIS ANPASSEN

Erstbezugs Gartenwohnung - Qualität auf höchstem Niveau - Hietzing / Hacking - Objektnr. 5646901

1130
Ort
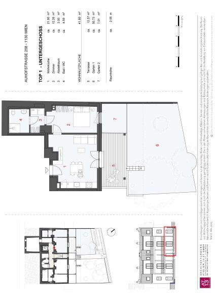
41,80 m²
Fläche
2.0
Zimmer

ECKDATEN
FindMyHome.at // Externe Immobilien-ID5646901 // 19801
ImmobilienartWohnung - Eigentum
Anschrift1130 Wien
Baujahr2025
Stock-1
Geschosse3
Fläche41,80 m²
Zimmer2.0
Bad1
WC1
 Abstellraum
Kaufpreis:€ 388.000,00
Ratenzahlung:Finanzierungsmöglichkeiten für diese Immobilie anzeigen
Provision: 3% des Kaufpreises zzgl. 20% USt.







BESCHREIBUNG

Erstbezugs Gartenwohnung - Qualität auf höchstem Niveau - Hietzing / Hacking

Dieses Erstbezugshaus (2025 fertiggestellt) befindet sich einer Lage, die fast keine Wünsche offen lässt: unmittelbar neben dem herrlichen Waldgebiet des Lainzer Tiergartens (lediglich ca. 1 Gehminute zum Nikolaitor) und gleichzeitig optimal an das Verkehrsnetz angebunden (ca. 9 Gehminuten zum Bahnhof Hütteldorf - UBahn/Schnellbahn).

Das ehemalige Vorstadthaus aus der Gründerzeit (spätes 19. Jahrhundert) wurde in seiner Grundsubstanz generalsaniert, mit dem Ziel das Haus (und den Garten mit wunderbaren Altbaumbestand) komplett zu erhalten. Daraus entstanden 6 exklusive Wohneinheiten samt großzügigen Freiflächen auf höchstem Niveau!

Diese exklusive 2 Zimmer Gartenwohnung ist gänzlich nach Nordosten ausgerichtet und hat sowohl vom Schlafzimmer als auch von der Wohnküche aus einen direkten Zugang zu einem ca. 70 m² Eigengarten, inkl. ca. 12,5 m² Terrasse. Ein Gartenzaum kann gerne auf Wunsch errichtet werden. 

Verschaffen Sie sich hier einen Überblick - VIDEO UNTER:  https://youtu.be/V8xE40MpaDU

Die Lage vereint auf einzigartige Weise mehrere Vorzüge: Freizeit, Natur, Nahversorgung, (Parkmöglichkeiten - befinden sich gerade im Umbau) sowie die Anbindung an öffentliche Verkehrsmittel, Straßen und Radwege. 
Durch die verkehrsgünstige Lage nahe der Bahnlinie sowie der Wientalstraße ist ein erhöhter, jedoch stadtüblicher Geräuschpegel gegeben. Dieser steht im Einklang mit den Vorteilen der ausgezeichneten Infrastruktur und Anbindung.

Bauliche Maßnahmen sorgen für ein ruhiges Wohngefühl innerhalb der Wohnung. Des weiteren wurden vor ein paar Monaten auch 2 Lärmschutzwände errichtet, die zu einer Geräuschreduktion beitragen.

Weitere Highlights der Wohnung: 
Edler Parkettboden aus geölter Eiche (aus österreichischer Produktion); stilvolle Fliesen in Bad und WC; Hochwertige Sanitärausstattung; Holz-Alu-Fenster mit 3-fach-Isolierverglasung; Fußbodenheizung; Luftwärmepumpe für Heizung und Warmwasser; Vollmassive Eingangstüren im Alt Wien-Stil; Zentralschließanlage; TV-/Internetanschluss (A1); Video-Gegensprechanlage

Die Allgemeinbereiche überzeugen durch:
Elegantes Entree; Barrierefreier Lift; Kinderwagenraum; Überdachte Fahrradstellplätze im Garten mit direktem Ausgang zum Wiental-Radweg; Außenliegender, versperrbarer Müllraum; Heizung und Warmwasser mittels umwelt­freundlicher Luft-Wasser-Wärmepumpe

Angenommene Brutto Kosten/Monat:
Reparaturrücklage: EURO 47,23
Betriebskosten (inkl. Lift): EURO 128,74
Heizung: EURO 60,19
Warmwasser/Kaltwasserkosten: EURO 36,78
GESAMT: EURO 272,94

ALLES WAS DAS HERZ BEGEHRT befindet sich in 0,1 - 1 km Entfernung
Öffentliche Verkehrsanbindung: UBahn und SBahn Station Hütteldorf (Hütteldorf Bahnhof), ca. 650 m 
Auto: Auf- und Abfahrt zur Westautobahn sofort erreichbar
Fahrrad: Der Wiental-Radweg (ca. 12 km zum Stephansplatz) führt direkt an der Liegenschaft vorbei

Lebensmittel: Billa Plus, ca. 300 m; Spar, ca. 700 m; Fressnapf, ca. 400 m
Drogerie: Bipa, ca. 400 m, DM, ca. 800 m
Einkaufszentrum: Auhofcenter ca. 3 km
Bauhaus ca. 250 m
Apotheke: Belladonna Apotheke, ca. 800 m; St.-Nikolai-Apotheke, ca. 1 km
Spital: St. Josef-Krankenhaus ca. 900 m; Standort Penzing der Klinik Ottakring, ca. 2 km; Hanusch Krankenhaus, ca. 3,4 km; Klinik Hietzing, ca. 4,3 km 
Ärzte: ca. 400 m; 450 m; 750 m; 900 m; 1 km, usw.
Tierärzte: Tierpraxis Auhof, ca. 700 m; weitere ca. 700 m; 750 m; 950 m usw.
Freizeit/Natur: Lainzer Tiergarten (Nikolaitor), ca. 100 m; Wienfluss samt Wiental-Radweg, ca. 150 m; Hütteldorfer Bad, ca. 1,2 km

Kindergärten: Städtischer Kindergarten und Hort, ca. 550 m; Kindergarten Heidi - Hort Pädagogischer Verein, ca. 550 m; Kindergarten Hütteldorf, St. Nikolausstiftung, ca. 650 m; Pfarrkindergarten und Hort St. Andreas Hütteldorf, ca. 650 m; Kindergruppe Schäfchen Wolliweiss, ca. 650 m; Hort & Tagesheim der Dominikanerinnen, ca. 1 km; Kindergruppe Kükennest, ca. 1,1 km usw.
Volkschule: Volksschule Hütteldorf, ca. 600 m; Volksschule Hackinger Kai, ca. 750 m;  Volksschule der Dominikanerinnen, ca. 1,3 km
Mittelschule: Deutschordenstraße 4 mittelschule, ca. 1,3 km; Mittelschule der Dominikanerinnen, ca. 1,4 km; 
Gymnasium: Gymnasium u. wirtschaftskundliches Realgymnasium der Dominikanerinnen, ca. 1,4 km; Bundesinternat und Realgymnasium "Am Himmelhof", ca. 1,4 km
Montessori Schule: Montessori Campus Wien - Kinderhaus, ca. 700 m; Montessori Campus Wien - Primarstufe 1, ca. 700m; Montessori Campus Wien - Sekundarstufe 2, ca. 750 m
HTL: Fachschule und Aufbaulehrgang für wirtschaftliche Berufe der Dominikanerinnen, ca. 1.2 km

Energieausweisdaten: HWB B 40,20 und fGEE A 0,826

Wir weisen darauf hin, dass zwischen dem Vermittler und dem zu vermittelnden Dritten ein familiäres oder wirtschaftliches Naheverhältnis besteht.

Der Vermittler ist als Doppelmakler tätig.

Kabel/SAT/TV: JA
Barrierefrei: JA
Provision: 3% des Kaufpreises zzgl. 20% USt.


Alle Details anzeigen

KONTAKT






 

Lasse dich kostenlos vom Anbieter dieser Immobilie zurückrufen.







 


 
IMMO AGENCY GmbH
Tania Oppel
Telefonnummer anzeigen Handy Bearbeiter: +436506080668
 
Bitte dem Makler die FindMyHome.at - ID bekanntgeben: 5646901

Bewertungen dieses Anbieters
Qualitätsmakler
Qualitätsmakler:
2015, 2016, 2017, 2019, 2020, 2021, 2023 , 2024,
Netiquette
Freundlichkeit
76 %

BEWERTUNGEN DIESES ANBIETERS

 
Qualit�tsmakler
Qualitätsmakler
2015, 2016, 2017, 2019, 2020, 2021, 22/23 2024
Weiterempfehlung
WIRD GERNE

Freundlichkeit
BESONDERS
FREUNDLICH
Netiquette
FINDMYHOME
NETIQUETTE
Auch du kannst bewerten! 7 Tage nach deiner Anfrage erhältst du dafür von uns ein Bewertungsmail.
Alle Infos zu unseren Auszeichnungen und dem FINDMYHOME.AT Qualitätsprogramm findest du hier: Übersicht anzeigen

FINANZIERUNG
?>

Du willst wissen, wie viel dein Umzug kosten wird?

Mach gleich den kostenlosen Preisvergleich und schau, welche seriösen Anbieter in deiner Region günstig deinen Umzug organisieren


ZUM UMZUGS-VERGLEICH
-->

MYHOME BLOG
SuchAgentin auf FindMyHome.at
Unterschiedlichen Rechtsthemen, köstliche Rezepte, neueste Design-Highlights, sowie aktuelle Technik-Tools für Ihr Eigenheim.


FINDMYHOME.AT SUCHAGENTIN
SuchAgentin auf FindMyHome.at
Hallo, soll ich dir ähnliche Immobilien kostenfrei per E-Mail schicken?


ÄHNLICHE IMMOBILIEN
Aehnliche Immobilie - Vorschaubild 1

Leistbares Wohnen mit Freifläche und einer Hochwertigen Auss... - Objektnr. 5523649

49,13 m² - 2.0 Zimmer
349000 €
PLZ: 1130

Mehr anzeigen

Aehnliche Immobilie - Vorschaubild 2

PROVISIONSFREI: Generalsanierte 2-Zimmer-Wohnung in Ruhelage... - Objektnr. 5523102

48,86 m² - 2.0 Zimmer
350000 €
PLZ: 1130

Mehr anzeigen

Aehnliche Immobilie - Vorschaubild 3

STOCK IM WEG - Sonnenstunden & Stilgefühl - Stilvolles Dachg... - Objektnr. 4703885

48,91 m² - 2 Zimmer
459000 €
PLZ: 1130

Mehr anzeigen

Durch die Nutzung unserer Seite erklären Sie sich mit der Verwendung von Cookies zur Verbesserung Ihres Online-Erlebnisses einverstanden. Detaillierte Informationen zu diesem und weiteren Themen erhalten Sie in unserer Datenschutzerklärung.