MEIN ERGEBNIS ANPASSEN

EXKLUSIVES LOFT-AMBIENTE für Singles, oder Paare mit Panorama - Objektnr. 5646900

1130
Ort
€ 1.590,00
Gesamtkosten
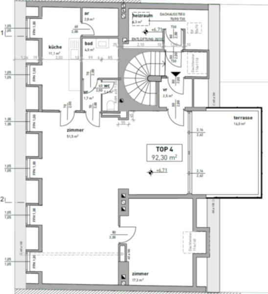
92,00 m²
Fläche
2.0
Zimmer

ECKDATEN
FindMyHome.at // Externe Immobilien-ID5646900 // 19802
ImmobilienartWohnung - Miete
AnschriftSpeisinger Straße
1130 Wien,Hietzing
Geschosse2
Mietdauer42
Fläche92,00 m²
Terrassen1 (16,00 m²)
Zimmer2.0
Bad1
WC1
Brutto-Miete:€ 1.590,00
Betriebskosten (inkl. MwSt):€ 178,60
Mehrwertsteuer:€ 144,55
Monatliche Gesamtkosten:€ 1.590,00
Provision: Gemäß Erstauftraggeberprinzip bezahlt der Abgeber die Provision.




BESCHREIBUNG

EXKLUSIVES LOFT-AMBIENTE für Singles, oder Paare mit Panorama

Willkommen in Ihrem neuen Zuhause einer einzigartigen, loftartig gestalteten Dachgeschosswohnung im Herzen des 13. Bezirks, in begehrter Lage von Speising.

 

RAUMAUFTEILUNG:

Auf rund 92 m² Wohnfläche und 16 m² Terrasse vereinen sich Großzügigkeit, Eleganz und hochwertiger Wohnkomfort zu einem Ambiente, das höchsten Ansprüchen gerecht wird.

Die Wohnung ist klimatisiert, exquisit und ab sofort bezugsfertig.

Bereits beim Betreten eröffnet sich ein offenes, lichtdurchflutetes Wohnkonzept, das mit seiner außergewöhnlichen Raumhöhe und den edlen Materialien ein luxuriöses Wohngefühl schafft.

Der großzügige Wohn- und Essbereich bietet vielfältige Gestaltungsmöglichkeiten und geht harmonisch in eine moderne, hochwertig ausgestattete Küche über ideal für Designliebhaber und alle, die Wert auf exklusives Wohnen legen.

Das elegante Schlafzimmer samt Garderobe sorgt für Ruhe und Erholung, während das stilvolle Badezimmer mit einer Walk-in-Dusche überzeugt.

Ein besonderes Highlight ist die ca. 16 m² große, südostseitige Terrasse: sonnig, geschützt und perfekt für entspannte Momente im Freien oder stilvolle Abende mit Blick über die Dächer Speisings.

 

LAGEBESCHREIBUNG:

Wohnen in einer der begehrtesten Adressen Wiens im 13. Bezirk.

Die hervorragende Infrastruktur lässt keine Wünsche offen:

  • Direkte Nähe zum Orthopädischen Spital Speising sowie zum Lainzer Spital
  • Schulen, Einkaufsmöglichkeiten und Nahversorger liegen nur wenige Gehminuten entfernt
  • Sport- und Freizeitmöglichkeiten wie Tennisplätze, Fußballanlagen und Parks befinden sich in unmittelbarer Umgebung
  • Öffentliche Verkehrsanbindung (Straßenbahn Nr 60, 62, Bus 58B, 63A, 60A, S-Bahn S1, S2, S3, S80, U-Bahn: U4 mit der Straßenbahn Nr. 60 in 10 Min erreichbar) ist ausgezeichnet Sie erreichen die Innenstadt ebenso schnell wie das Umland.

Diese außergewöhnliche Dachgeschosswohnung verbindet anspruchsvolle Ausstattung, stilvolles Design und beste Lage zu einem Wohnangebot, das in dieser Form nur selten verfügbar ist.

 

VERMIETUNG:

Die Wohnung kann ab sofort angemietet werden, der Mietvertrag wird vorerst auf 3,5 Jahre befristet (Verlängerung bei gutem Mietverhältnis möglich).

Die monatliche Bruttomiete inklusive Betriebskosten und USt. beträgt EUR 1.590,-.

Als Kaution bei Anmietung sind 3 BMM in der Höhe von EUR 4.770,-- zu hinterlegen.

Die monatliche Akontozahlung für Heizung, Warmwasser und Kaltwasser beträgt derzeit EUR 250,-- und ist zusätzlich zur Miete zu entrichten

Somit beträgt die monatliche Gesamtmiete 1.840,- EUR

Bitte beachten Sie, dass ein ausreichendes Einkommen (mind. netto EUR 2.500,--/Monat) aus einer Erwerbstätigkeit nachzuweisen und Voraussetzung für die Anmietung ist!

 

ENERGIEAUSWEIS:

Gültig bis 1.12.2030, HWB D 119,00 kWh/m²a, fGEE A 2,10

 

Ich freue mich auf Ihre Anfrage und stehen für Besichtigungstermine gerne zur Verfügung!

 

Wir weisen darauf hin, dass zwischen dem Vermittler und dem zu vermittelnden Dritten ein familiäres oder wirtschaftliches Naheverhältnis besteht.

Der Immobilienmakler erklärt, dass er entgegen dem in der Immobilienwirtschaft üblichen Geschäftsgebrauch des Doppelmaklers einseitig nur für den Vermieter tätig ist.

Klimaanlage: JA
Provision: Gemäß Erstauftraggeberprinzip bezahlt der Abgeber die Provision.


Alle Details anzeigen

KONTAKT






 

Lasse dich kostenlos vom Anbieter dieser Immobilie zurückrufen.







 


 
IMMO AGENCY GmbH
Ottilia Ziegler
Telefonnummer anzeigen Telefon Allgemein: +4369917677889
 
Bitte dem Makler die FindMyHome.at - ID bekanntgeben: 5646900

Bewertungen dieses Anbieters
Qualitätsmakler
Qualitätsmakler:
2015, 2016, 2017, 2019, 2020, 2021, 2023 , 2024,
Netiquette
Freundlichkeit
76 %

BEWERTUNGEN DIESES ANBIETERS

 
Qualit�tsmakler
Qualitätsmakler
2015, 2016, 2017, 2019, 2020, 2021, 22/23 2024
Weiterempfehlung
WIRD GERNE

Freundlichkeit
BESONDERS
FREUNDLICH
Netiquette
FINDMYHOME
NETIQUETTE
Auch du kannst bewerten! 7 Tage nach deiner Anfrage erhältst du dafür von uns ein Bewertungsmail.
Alle Infos zu unseren Auszeichnungen und dem FINDMYHOME.AT Qualitätsprogramm findest du hier: Übersicht anzeigen


Du willst wissen, wie viel dein Umzug kosten wird?

Mach gleich den kostenlosen Preisvergleich und schau, welche seriösen Anbieter in deiner Region günstig deinen Umzug organisieren


ZUM UMZUGS-VERGLEICH
-->

MYHOME BLOG
SuchAgentin auf FindMyHome.at
Unterschiedlichen Rechtsthemen, köstliche Rezepte, neueste Design-Highlights, sowie aktuelle Technik-Tools für Ihr Eigenheim.


FINDMYHOME.AT SUCHAGENTIN
SuchAgentin auf FindMyHome.at
Hallo, soll ich dir ähnliche Immobilien kostenfrei per E-Mail schicken?


Durch die Nutzung unserer Seite erklären Sie sich mit der Verwendung von Cookies zur Verbesserung Ihres Online-Erlebnisses einverstanden. Detaillierte Informationen zu diesem und weiteren Themen erhalten Sie in unserer Datenschutzerklärung.